
Predaj domu 4+1 • 114 m² bez realitkyBremerhaven Geestemünde-Süd Bremen 27570
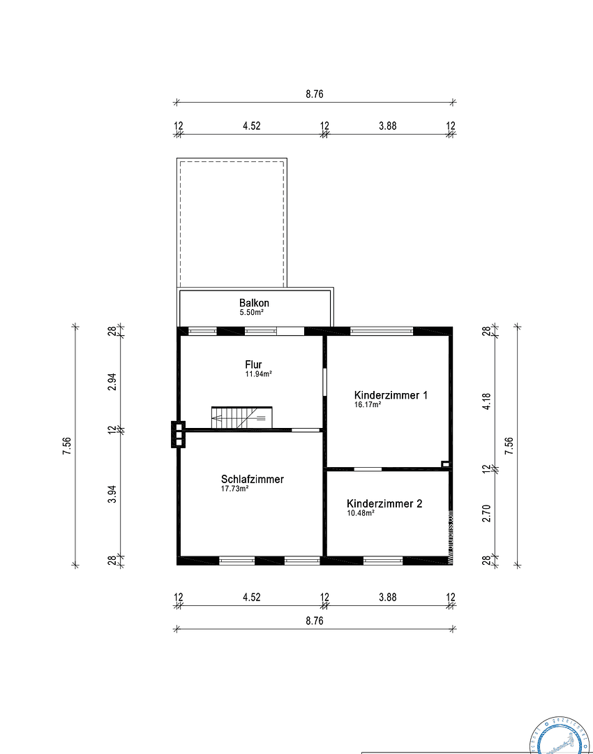
Tento zmodernizovaný riadový dom v Bremerhavene spája súčasné bývanie na dvoch podlažiach s kvalitným vybavením, priestrannými vonkajšími plochami a udržateľným energetickým riešením. Je ideálny pre rodiny alebo páry, ktoré hľadajú dom pripravený na nasťahovanie s veľkým priestorom v kľudnej lokalite. Na približne 114 m² obytného priestoru sa rozprestierajú štyri optimálne dispozíciou zaistené izby. Tri spálne ponúkajú dostatočné možnosti ústupu pre celú rodinu, zatiaľ čo malá predsieň na hornom poschodí je výborná ako domáca kancelária alebo pracovný priestor.
Komplexná rekonštrukcia v roku 2025 kladie dôraz na bývací komfort a energetickú efektívnosť. Patrí sem nová fasádna izolácia v moderných odtieňoch, jednotná vinylová podlaha s drevenou textúrou, svetlé dlaždice v kúpeľniach a nové biele vnútorné dvere z dreva, ktoré vytvárajú príjemnú atmosféru. Celok dopĺňa zmodernizovaná kúpeľňa s prirodzeným osvetlením a samostatná toaleta pre hostí, ktoré poskytujú dodatočný každodenný komfort.
Aj technicky dom presvedčí: Elektroinštalácia bola obmenená a vybavená prúdovým chráničom, efektívne plynové centrálne kúrenie z roku 2025 zabezpečuje príjemné teplo a v celom dome sú inštalované nové, trojnásobne zasklené plastové okná.
Priestranná záhrada so slnečnou terasou je nenáročná na údržbu a vyzýva k oddychu v zelene. Na približne 290 m² pozemku majú deti aj záhradkári veľa možností aranžovania. Časť sklepa s približne 7 m² využiteľnej plochy ponúka ďalší úložný priestor.
Lokalita sa vyznačuje kľudným obytným prostredím a veľmi dobrou dostupnosťou. Obchody, školy a verejná doprava sú rýchlo dostupné, takže sa tu výhody pokoja a kvalitnej infraštruktúry dokonale spájajú. Celkovo ide o premyslený balík s pevnou konštrukciou, udržateľným vybavením a moderným bývacím komfortom – okamžite k nasťahovaniu a pripravený na ďalší krok.
Riadový dom sa nachádza v pokojnej lokalite Bremerhavenu v mestskej časti Geestemünde. Priamo pri ulici sa nachádza skvelé ihrisko a plavecké centrum Bad 2. Zariadenia pre starostlivosť o deti a školy sú v bezprostrednej blízkosti.
• Zmodernizovaný riadový dom s veľkou záhradou a novou izoláciou
• Rok výstavby: cca 1921
• Obytná plocha: cca 114 m²
• Využiteľná plocha: cca 24 m²
• Pozemková plocha: cca 289 m²
• Počet izieb: 4
• Tri svetlé spálne s ideálnym dispozíciou
• Dodatočný pracovný priestor na hornom poschodí
• Zrekonštruovaná kúpeľňa (cca 2025)
• Podlahové krytiny: vinyl s drevenou textúrou a svetlé dlaždice (cca 2025)
• Nové biele vnútorné dvere z dreva v modernom dizajne (cca 2025)
• Nové trojnásobne zasklené plastové okná v celom dome (cca 2025)
• Efektívne plynové centrálne kúrenie – kotol s nízkou kondenzáciou (cca 2025)
• Nová elektroinštalácia s FI chráničom (trojdrôtová, cca 2025)
• Náročná rekonštrukcia dokončená cca 2025
• Časť sklepa s veľkým doplnkovým úložným priestorom
• Terasa so slnečnou orientáciou
• Kľudná a zároveň dobre napojená lokalita v Bremerhavene
Dom sa predáva bez nábytku a kuchyne.
Dopyty od maklérov nie sú vítané.
Parametre nehnuteľnosti
| Vek | Nad 50 rokov |
|---|---|
| Stav | Po rekonštrukcii |
| Číslo inzerátu | 974413 |
| Úžitková plocha | 114 m² |
| Celkové poschodia | 2 |
| Dostupné od | 19. 12. 2025 |
|---|---|
| Dispozícia | 4+1 |
| PENB | C - Hospodárne |
| Plocha pozemku | 289 m² |
| Cena za jednotku | 2 192 € / m2 |
Čo táto nehnuteľnosť ponúka?
| Garáž | |
| Terasa |
| MHD 1 minúta pešo |
V okolí nehnuteľnosti nájdete
Stále hľadáte to pravé?
Nastavte si strážneho psa. Ponuky vybrané na mieru dostanete súhrnne 1× denne e-mailom. S Premium profilom máte po ruke rovno 5 strážcov a keď sa niečo objaví, informujú vás obratom.














