
Predaj bytu 1+1 • 44 m² bez realitkyJenullgasse 10 Wien 14. Bezirk Wien 1140
Byt v blízkosti stanice U4 Braunschweiggasse
pre investorov alebo ako štartovací byt
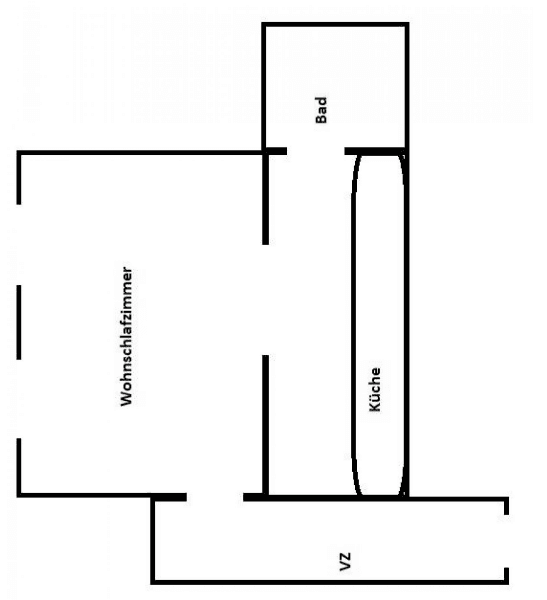
Tento byt sa nachádza v 1. poschodí s výťahom malej bytovej kompexu.
Byt disponuje:
priestrannou predsieňou
plne vybavenou kuchyňou so všetkými spotrebičmi
kúpeľňou s toaletou
obytnou spálňou
V dome je k dispozícii aj vnútorné nádvorie – záhrada.
Tento byt má ideálne dopravné spojenie so stanicou U4 Braunschweiggasse, alebo S45 Penzing, ako aj so západnou diaľnicou.
Byt je momentálne prenajatý do 31.3.2026 za približne 10 € za m².
Nájomca má záujem o predĺženie zmluvy.
Kúrenie je zabezpečené plynom a teplá voda sa ohrieva elektricky.
Prenájom prostredníctvom platforiem ako Airbnb nie je podľa WE protokolu povolený.
Vynikajúce spojenie s verejnou dopravou pešo, so stanicou U4 Braunschweiggasse a S45 Penzing, je zaručené.
Infraštruktúra je dobrá. Na voľný čas ponúka blízky zámok Schönbrunn alebo cyklotrasa pozdĺž Viedenského prúdu.
ZÁKLADNÉ ÚDAJE
Adresa: 1140 Viedeň, Jenullgasse 10/5
Rok výstavby: 1969 – rekonštrukcia
Stav bytu: obytný, ale vyžaduje renováciu.
Užitná plocha: 44 m²
Poschodie: 1. poschodie s výťahom
Verejné spojenie: U4 Braunschweiggasse, S45 Penzing, západná diaľnica
Mesačné prevádzkové náklady: 223,05 € vrátane rezervy a DPH.
Rozloženie miestností: predsieň, obytná spálňa, kuchyňa, kúpeľňa s WC
Prevádzkové náklady: 160,71 € (+10 % DPH)
Celkové náklady: 223,05 € vrátane DPH.
Rezerva na opravy: 46,27 € Celková rezerva: cca 100 000,--
Parametre nehnuteľnosti
| Vek | Nad 50 rokov |
|---|---|
| Poschodie | 1. poschodie z 3 |
| Úžitková plocha | 44 m² |
| Dispozícia | 1+1 |
|---|---|
| Číslo inzerátu | 973881 |
| Cena za jednotku | 4 295 € / m2 |
Čo táto nehnuteľnosť ponúka?
| Pivnica |
| MHD 3 minúty pešo |
V okolí nehnuteľnosti nájdete
Stále hľadáte to pravé?
Nastavte si strážneho psa. Ponuky vybrané na mieru dostanete súhrnne 1× denne e-mailom. S Premium profilom máte po ruke rovno 5 strážcov a keď sa niečo objaví, informujú vás obratom.









