
Predaj bytu 2+1 • 70 m² bez realitkyLublaňská, Praha - Vinohrady
Nabízím k prodeji kompletně zrekonstruovaný byt 2+1 o rozloze 70 m², který se nachází v činžovním domě 5 minut chůze od I.P.Pavlova. Budova má snížené přízemí, kde jsou 2 komerčně pronajímané prostory (díky tomu jsou měsíční platby družstvu příznivě nízké), byt se nachází ve druhém NP bez výtahu, za domem je zahrada.
Nové je celé jádro včetně zdí, topení, elektro, voda, kanalizace, vše včetně rozvodů, dále omítky, parkety, plynový kotel. Repasované jsou dveře, okna měnilo družstvo před rekonstrukcí. Ta proběhla v roce 2019, nyní profesionální údržba, úklid a výmalba.
Byt má alarm s čidly ve všech místnostech, bezpečnostní vstupní dveře, vyhřívanou podlahu v předsíni a v koupelně, oboje na samostatné ovládání, do bytu je přívod Cetin pro internet, topení a ohřev vody jsou plynové.
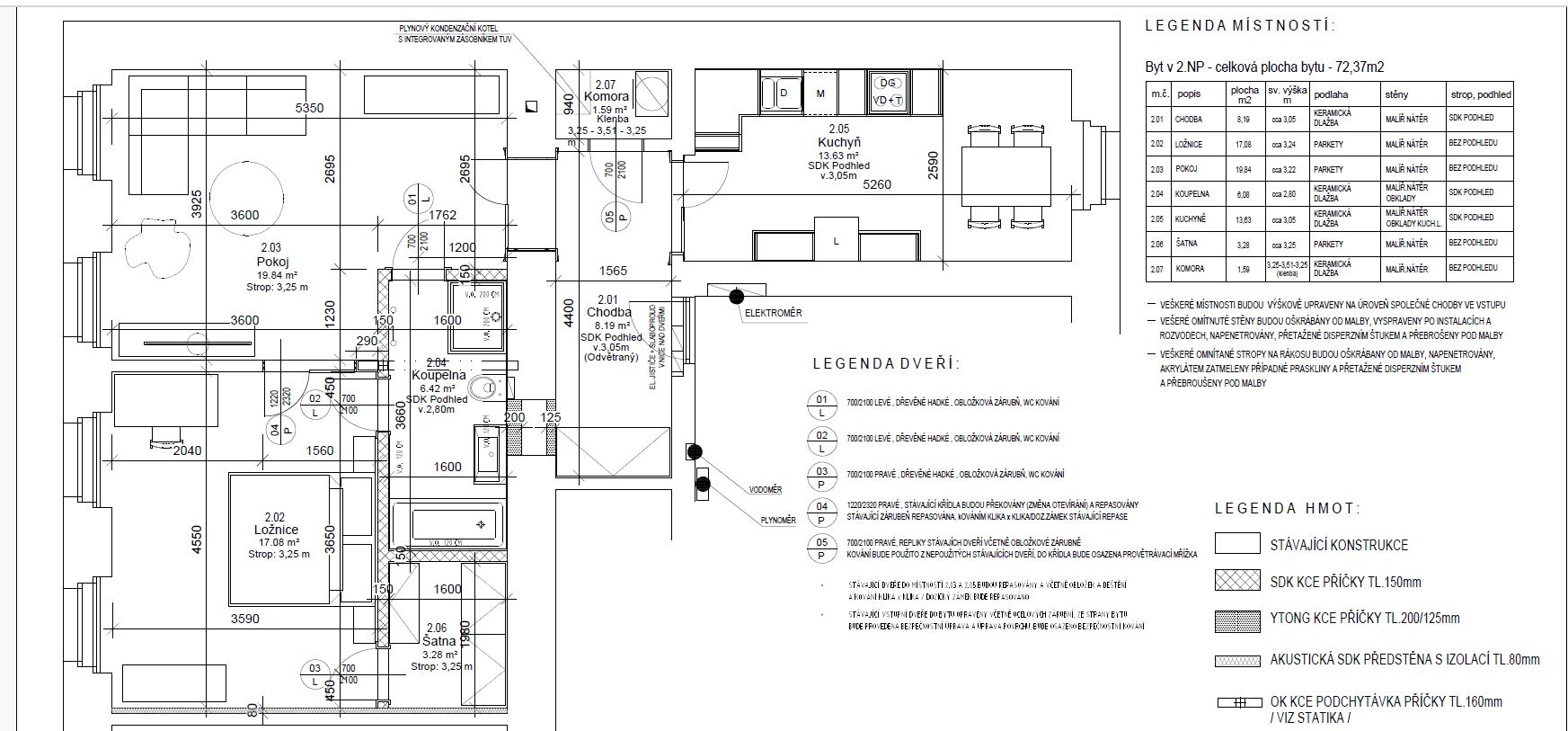
Místnosti (viz půdorys) jsou vstupní hala, kuchyně, komora s kotlem a místem pro pračku, koupelna s vanou, sprchou a wc s bidetovou sprškou, obývací pokoj, ložnice a za ní šatna.
Na fotografiích je základní nábytek pro představu, jak jsou místnosti prostorné. Z obýváku bude odstěhován, kuchyňský stůl je vyrobený ze stejného dřeva, jako deska na kuchyňské lince, je tedy součástí bytu, nábytek v ložnici rádi ponecháme na místě (ale bude věcí dohody, dle přání kupujícího).
Parkování před domem a v okolí na modrých zónách.
Provozní náklady pro 2 lidi v průměru za poslední 3 roky byly 1 000 Kč elektřina, 1 000 Kč plyn, 1 800 Kč družstvo (voda, stočné, úklid, popelnice...).
Součástí ceny je právní servis a advokátní úschova.
Jsem přímý majitel, ráda vám byt ukážu v termínu dle vašich možností, včetně večerů, svátků a víkendů.
Parametre nehnuteľnosti
| Vek | Nad 50 rokov |
|---|---|
| Stav | Veľmi dobrý |
| Dispozícia | 2+1 |
| Poschodie | 2. poschodie z 6 |
| Vykurovanie | Plynové |
| Vlastníctvo | Družstevné |
| Rekonštrukcia | Kompletné |
| Úžitková plocha | 70 m² |
| Dostupné od | 16. 12. 2025 |
|---|---|
| Výstavba budov | Tehla |
| Vybavené | Čiastočne |
| Prevedenie | Luxusné |
| Číslo inzerátu | 973816 |
| PENB | G - Mimoriadne nehospodárne |
| Umiestnenie | Stredisko |
| Cena za jednotku | 171 429 CZK / m2 |
V okolí nehnuteľnosti nájdete
Stále hľadáte to pravé?
Nastavte si strážneho psa. Ponuky vybrané na mieru dostanete súhrnne 1× denne e-mailom. S Premium profilom máte po ruke rovno 5 strážcov a keď sa niečo objaví, informujú vás obratom.
























