Prenájom domu 7+1 • 230 m² bez realitkyStuttgart Feuerbach Baden-Württemberg 70192
Objekt bol postavený v roku 1954 a v roku 1984 bol rozsiahle a nákladne zrekonštruovaný. Objekt sa nachádza v jednej z najobľúbenejších rezidenčných oblastí Stuttgartu pri Killesbergu. Dom sa nachádza pokojne v bočnej ulici. Pešo je dosiahnuteľný Killesbergpark aj Killesberg-Freibad. Rovnako sú v bezprostrednom okolí dostupné supermarkety, pekárne, lekárne, materské školy a školy.
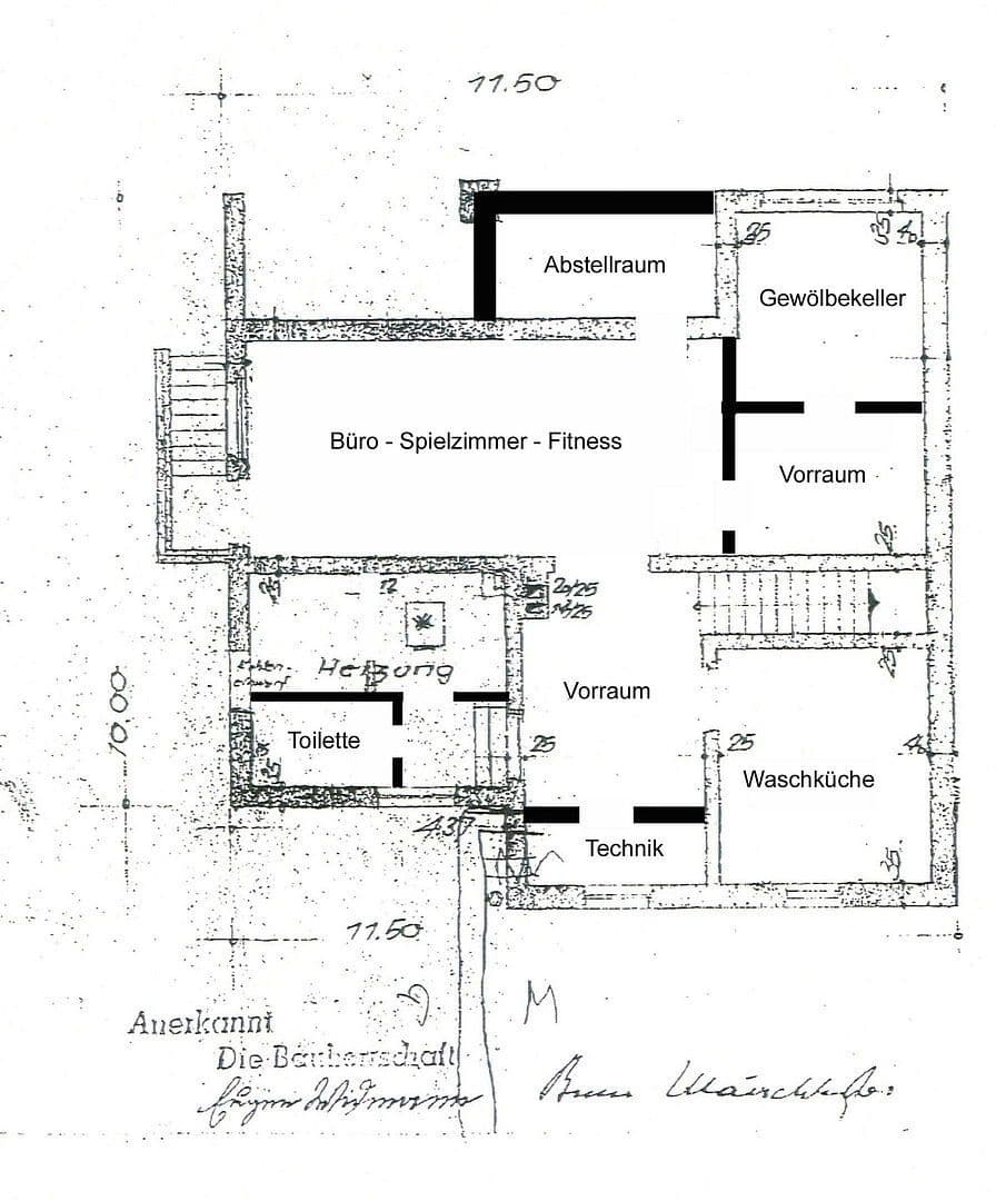
V prízemí sa nachádza veľká a prívetivá vstupná hala s hosťovskym WC, šatníkom, spížou a priestrannou obývacou izbou s otvorenou kuchyňou a prístupom na prístrešenú terasu so záhradou orientovanou na juh.
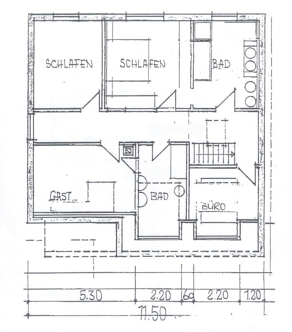
V poschodí sa nachádzajú 4 izby (odvtedy využívané ako spálne a kancelárie) a 2 kúpeľne, ktoré sú vybavené sprchou, vaňou, WC, bidetom a dvojitým umývadlom.
Parametre nehnuteľnosti
| Vek | Nad 50 rokov |
|---|---|
| Dispozícia | 7+1 |
| Úžitková plocha | 230 m² |
| Celkové poschodia | 3 |
| Stav | Dobrý |
|---|---|
| Číslo inzerátu | 973430 |
| Plocha pozemku | 470 m² |
| Cena za jednotku | 13 € / m2 |
Čo táto nehnuteľnosť ponúka?
| Pivnica | |
| Parkovanie | |
| Terasa |
| Garáž | |
| MHD 1 minúta pešo |
V okolí nehnuteľnosti nájdete
Stále hľadáte to pravé?
Nastavte si strážneho psa. Ponuky vybrané na mieru dostanete súhrnne 1× denne e-mailom. S Premium profilom máte po ruke rovno 5 strážcov a keď sa niečo objaví, informujú vás obratom.



















