
Predaj domu 5+1 • 127 m² bez realitkyEschenweg 41 Bamberg Bamberg Bayern 96050
Ušetríte 20.349 eur na maklérskej provízii.
Tento upravený radový dom z roku 2000 sa nachádza v pokojnej a obľúbenej bývalej NATO osade – rodinne prívetivom mieste so silným duchom susedstva.
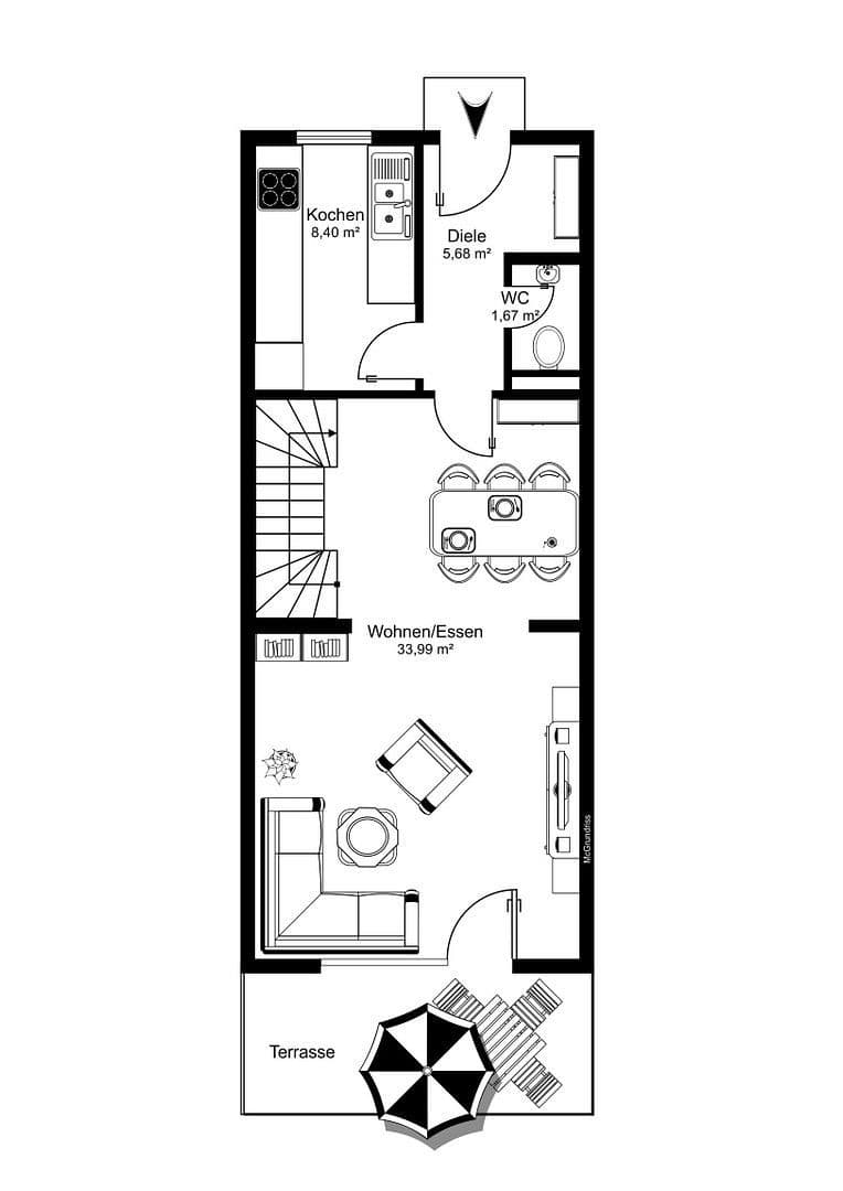
V prízemí vás očakáva svetlý obývací priestor s rozlohou približne 34 m², ktorý má prístup na slnečnú západnú terasu – ideálny pre oddychové večery a príjemné spoločenské chvíle. Samostatná kuchyňa, hostinská toaleta a príjemná predsieň dopĺňajú túto úroveň.
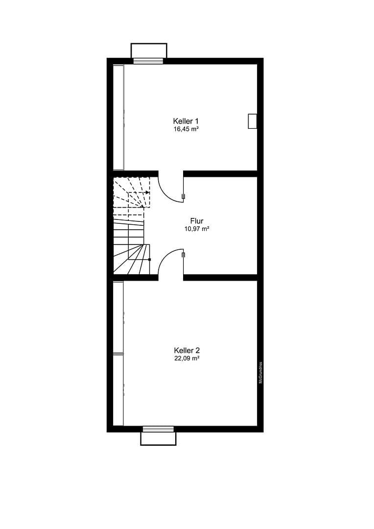
Na horných poschodiach sú k dispozícii štyri útulné spálne a dve veľké kúpeľne so sprchou a vaňou – perfektné pre rodiny, hostí alebo domáce pracovisko. Plne využiteľný suterén ponúka dodatočný úložný priestor a flexibilné možnosti využitia.
Dom je moderný, dobre izolovaný a ohromuje veľmi dobrými energetickými hodnotami – čo prispieva k komfortu a nízkym prevádzkovým nákladom. Dva vonkajšie parkovacie miesta je možné zakúpiť navyše za 20.000 €.
Dom, ktorý zaujme svojím priestorom, štruktúrou a atmosférou idylického domova – ideálny pre rodiny až piatich osôb.
Eschenweg v bývalej „NATO osade“ na východe Bambergu je viac než len adresa – je to miesto, kde sa dá prísť a skutočne sa cítiť ako doma. Pokojná obytná štvrť, sprevádzaná množstvom zelene a harmonickým susedstvom, sa už dávno etablovala ako obľúbené útočisko pre mladé rodiny.
Tu deti môžu bezstarostne hrať na bezpečných uliciach, zatiaľ čo vy si užívate výnimočnú kvalitu bývania. Osada vyžaruje atmosféru bezpečia a spolupatričnosti – pravý pocit domova, ktorý je hneď na prvý pohľad zrejmý.
Napriek idylickej lokalite ste vynikajúco napojení: len približne 500 metrov od vás sa nachádza mestská autobusová zastávka, ktorá premáva každých 15 minút a pohodlne vás dovezie do centra mesta. Autom dosiahnete diaľničné spojenie po približne 1 000 metroch – ideálne pre dochádzajúcich do práce alebo výlety do okolia.
Obchodné príležitosti, školy, materské školy a voľnočasové zariadenia sú v bezprostrednej blízkosti, takže vy aj vaša rodina si môžete užívať krátke vzdialenosti a najvyšší komfort bývania.
Eschenweg spája pokojné, prírodou inšpirované bývanie s najlepšou infraštruktúrou – čím vytvára ideálne prostredie, kde rodinný život a každodenné sny idú ruka v ruke.
Parametre nehnuteľnosti
| Vek | Nad 50 rokov |
|---|---|
| Stav | Dobrý |
| Číslo inzerátu | 973270 |
| Úžitková plocha | 127 m² |
| Celkové poschodia | 3 |
| Dostupné od | 15. 12. 2025 |
|---|---|
| Dispozícia | 5+1 |
| PENB | B - Veľmi úsporné |
| Plocha pozemku | 178 m² |
| Cena za jednotku | 4 330 € / m2 |
Čo táto nehnuteľnosť ponúka?
| Pivnica | |
| MHD 7 minút pešo |
| Parkovanie | |
| Terasa |
V okolí nehnuteľnosti nájdete
Stále hľadáte to pravé?
Nastavte si strážneho psa. Ponuky vybrané na mieru dostanete súhrnne 1× denne e-mailom. S Premium profilom máte po ruke rovno 5 strážcov a keď sa niečo objaví, informujú vás obratom.
























