
Predaj bytu 4+1 • 100 m² bez realitkyWölckernstr. 18 Nürnberg Galgenhof Bayern 90459
Byt sa nachádza v prvom nadzemnom podlaží viacfamilijného domu, pričom v prízemí sa nachádzajú komerčné priestory.
V roku 2019 prebehli rozsiahle rekonštrukčné práce – okrem výmeny okien boli tiež renovované kúpeľňa a WC. Bolo inštalované nové plynové podlažné kúrenie a vstavaná kuchyňa. Elektroinštalácia je moderná a vybavená prúdovým chráničom (FI).
V roku 2024 bol byt prebudovaný na koncept spoločného bývania a kompletne zariadený, čo prináša atraktívnu návratnosť investície.
Jednotlivé izby sú prenajaté za ceny medzi 475 a 625 eur, čo aktuálne prináša príjmy z nájomného približne 2270 eur.
Predložený energetický preukaz je na základe odhadu spotreby. Skutočná spotreba plynu v predávanom byte sa v posledných vyúčtovacích obdobiach pohybovala v priemere okolo 16 500 kWh ročne – teda výrazne menej, než uvádza energetický preukaz. Predpokladáme, že rozdiel je spôsobený inými jednotkami, ktoré čiastočne ešte nemajú izolačné okná.
Centrálnu polohu zabezpečuje ľahký prístup ku všetkým zariadeniam každodenného života – reštaurácie, lekári a obchody sú v bezprostrednej blízkosti, rovnako aj stanica metra Aufsessplatz. Hlavná stanica je vzdialená len niekoľko minút chôdze.
Prenájom parkovacieho miesta je možný v podzemnej garáži Südstadtparkhaus, ktorá je vzdialená 3 minúty chôdze, a nájomné je od 58 € mesačne.
Byt bol v roku 2024 vybavený novým nábytkom z Ikea a vstavaná kuchyňa z roku 2019 ponúka sporák, rúru, umývačku riadu a chladničku. Kuchynské a jedálenské riady sú tiež k dispozícii.
Okrem toho tu nájdete práčku, sušičku, vysávač aj žehličku – čím byt poskytuje ideálne podmienky pre prenájom v režime spoločného bývania.
Parametre nehnuteľnosti
| Vek | Nad 50 rokov |
|---|---|
| Stav | Po rekonštrukcii |
| Poschodie | 1. poschodie z 4 |
| PENB | G - Mimoriadne nehospodárne |
| Cena za jednotku | 3 550 € / m2 |
| Dostupné od | 13. 12. 2025 |
|---|---|
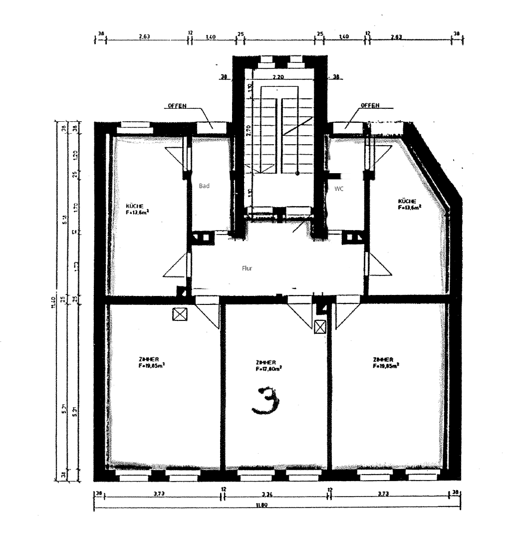
| Dispozícia | 4+1 |
| Číslo inzerátu | 973089 |
| Úžitková plocha | 100 m² |
Čo táto nehnuteľnosť ponúka?
| Pivnica |
| MHD 1 minúta pešo |
V okolí nehnuteľnosti nájdete
Stále hľadáte to pravé?
Nastavte si strážneho psa. Ponuky vybrané na mieru dostanete súhrnne 1× denne e-mailom. S Premium profilom máte po ruke rovno 5 strážcov a keď sa niečo objaví, informujú vás obratom.













