
Predaj domu • 232 m² bez realitkySchmittstr. 51 Bonn Duisdorf Nordrhein-Westfalen 53123
Komplex dvora sa momentálne skladá z dvoch kompletných obytných domov. Neviditeľný veľký, romanticky útulný vnútorný dvor ponúka veľa miesta pre komunitu a stretkávanie.
Na priestrannej trávnatej a záhradnej ploche sa môže každý záhradný nadšenec prejaviť.
Veľké stajne a hospodárske priestory sú vhodné pre záľuby, zbierky, štúdiá, dielne a skladovacie priestory.
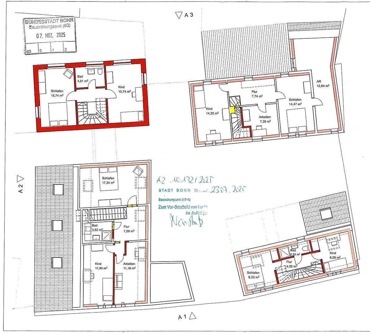
Dom 1: 113 m² – obytný dom, ktorý bol vo vnútri obnovený začiatkom 1980.
Dom 2: Bývalé stajne.
Dom 3: 119 m² – bývalá stodola, do ktorej bol v roku 2000 postavený obytný dom.
Dom 4: Schválená novostavba.
Dom 1: Energetický štítok – 258,7 kWh/m²/rok – trieda H
Dom 3: Energetický štítok – 154,5 kWh/m²/rok – trieda E
Od mája 2023 je areál chránený ako pamiatka, pričom ochrana sa v podstate vzťahuje na vonkajšie múry zdobených drevených konštrukcií. Správu nájdete nižšie vo forme PDF súboru.
V súčasnosti sa neplatia žiadne poplatky za infraštruktúrne prípojky.
Na parcele nie sú zapísané žiadne stavebné ťarchy.
V spolupráci s architektom pánom Jürgenom von Kietzellom bol vyvinutý koncept moderného bývania, ktorý bol schválený v júli 2025. Pán von Kietzell má dlhoročné skúsenosti so špeciálnou úpravou pamiatkových objektov.
Komplex sa nachádza na Schmittstr. 51 v Duisdorfe – Oberdorf.
Obchody, lekári a školy, ako aj reštaurácie a kaviarne, sú dostupné pešo za pár minút.
Doprava verejnou dopravou je veľmi dobrá.
Prístup k diaľnici je len 5 minút.
Obe domy sú plne funkčné a okamžite použiteľné.
Parametre nehnuteľnosti
| Vek | Nad 50 rokov |
|---|---|
| Stav | Dobrý |
| PENB | E - Nehospodárne |
| Plocha pozemku | 1 554 m² |
| Cena za jednotku | 5 388 € / m2 |
| Dostupné od | 10. 12. 2025 |
|---|---|
| Číslo inzerátu | 972108 |
| Úžitková plocha | 232 m² |
| Celkové poschodia | 2 |
Čo táto nehnuteľnosť ponúka?
| Garáž | |
| MHD 4 minúty pešo |
| Parkovanie | |
| Terasa |
V okolí nehnuteľnosti nájdete
Stále hľadáte to pravé?
Nastavte si strážneho psa. Ponuky vybrané na mieru dostanete súhrnne 1× denne e-mailom. S Premium profilom máte po ruke rovno 5 strážcov a keď sa niečo objaví, informujú vás obratom.















































