
Predaj domu 6+kk • 191 m² bez realitky, Bádensko-Wurttembersko
, Bádensko-WurttemberskoMHD 1 minúta pešo • ParkovanieVáš nový domov
V obľúbenej rodinnej lokalite v Leingarten vám môžeme ponúknuť túto krásnu polovičnú dvojdomov s nadpriemerným množstvom priestoru a izieb.
Polovičný dvojdom a samostatný byt boli zrekonštruované v roku 2017. V roku 2022 bola zrekonštruovaná aj fasáda.
Miesto pre vašu pohodu
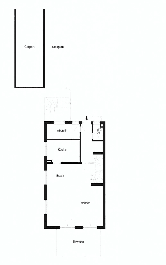
Dom bol postavený v rokoch 1999/2000 s celkovou obytnou plochou približne 190,52 m² a nachádza sa na pokojnej prístupovej ulici.
Až pod strechu máte cez tri podlažia k dispozícii až 5 spální, kúpeľňu, kuchyňu, priestranný úložný priestor, hosťovské WC a veľkú, svetlú obývačku s jedálňou.
Pri potrebe je možné v suteréne samostatne prenajať malý 1,5 izbový samostatný byt.
Záhrada na južnej strane s veľkou slnečnou terasou sa vám bude páčiť a pozýva na oddych v zelene.
Leingarten je obľúbené a atraktívne mesto s približne 12 500 obyvateľmi. Blízkosť Heilbronnu so spojením mestskou dráhou a veľmi dobrá infraštruktúra ponúkajú vysokú kvalitu bývania.
Zasadený do malebného prostredia okolo Heuchelbergu s vinohradníctvom a množstvom športových a rekreačných zariadení, ako aj aktívnym životom miestnych spolkov, garantuje Leingarten vysokú hodnotu voľného času.
V Leingarten je usadených mnoho lekárov, lekární, zdravotníckych a opatrovateľských zariadení. Navyše, niekoľko pekární, mäsiarstiev, supermarketov a diskontných predajní zabezpečuje veľmi dobré zásobovanie.
Rodiny majú výhodu 10 materských škôl a dvoch základných škôl, ako aj jednej všeobecnej školy.
Vybavenie
- Zabudovaná kuchyňa
- Odvápňovacie zariadenie (2018)
- 1 krytý parkovací stôl so priestorom k prípojke
- 2 parkovacie miesta pre autá
- Pripravenosť na solárnu termiu
Samostatný byt cca 31 m²
- samostatný vstup
- kuchynská linka
- úložná miestnosť s miestom na regál, práčku a sušičku
- obytná/spálňová časť
- kúpeľňa
Samostatný byt je momentálne prenajatý.
Pred prehliadkou si prajeme predložiť potvrdenie o financovaní a žiadame o pochopenie.
Ak máte nejaké otázky, neváhajte nás kontaktovať.
Parametre nehnuteľnosti
| Vek | Nad 50 rokov |
|---|---|
| Dispozícia | 6+kk |
| PENB | B - Veľmi úsporné |
| Plocha pozemku | 256 m² |
| Cena za jednotku | 3 636 € / m2 |
| Stav | Dobrý |
|---|---|
| Číslo inzerátu | 971762 |
| Úžitková plocha | 191 m² |
| Celkové poschodia | 3 |
Čo táto nehnuteľnosť ponúka?
| Pivnica | |
| MHD 1 minúta pešo |
| Parkovanie | |
| Terasa |
V okolí nehnuteľnosti nájdete
Stále hľadáte to pravé?
Nastavte si strážneho psa. Ponuky vybrané na mieru dostanete súhrnne 1× denne e-mailom. S Premium profilom máte po ruke rovno 5 strážcov a keď sa niečo objaví, informujú vás obratom.





