Prenájom domu 5+1 • 149 m² bez realitkyLerchenfelder Hof, , Bavorsko
Lerchenfelder Hof, , BavorskoMHD 6minút pešo • ParkovanieTáto exkluzívna rodinná vila s obytnou plochou 148,5 m² (užitná plocha 200 m²) sa momentálne stavia na pozemku o rozlohe 316,84 m² v ocenenom novostavbe v Köferingu.
Dokončenie našej nehnuteľnosti v Lerchenfelder Hof sa uskutoční začiatkom roku 2026 – sťahovanie je možné od februára/márca 2026.
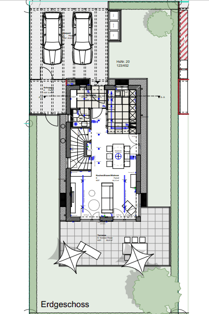
V prízemí vás privíta priestranný a svetlý obývací a jedálenský priestor s prístupom na terasu a do záhrady. Kvalitná vstavaná kuchyňa z Kuchynského domu Frey so stredovým ostrovčekom a značkovými elektrospotrebičmi od Miele, Siemens a Neff nenechá žiadne želanie nevysnívané a je dokonale integrovaná do obytného priestoru.
V nadzemnom podlaží sa nachádzajú dve veľké izby a moderná kúpeľňa s prvotriednym vybavením. Celkom dokončené podkrovie ponúka ďalšie dve svetlé izby a navyše ešte jednu kvalitnú kúpeľňu – ideálnu ako spálňa, pracovňa alebo priestor pre voľnočasové aktivity.
Úplne podzemný priestor zabezpečuje dodatočný priestor: okrem miestnosti pre domácnosť a technickej miestnosti sú k dispozícii aj úložné a hobby priestory. Je integrované aj pripojenie pre saunu.
Vybavenie pôsobí na vysokej úrovni vďaka použitým kvalitným materiálom, medzi ktoré patrí elegantné parketové podlahy vo všetkých obytných miestnostiach a štýlové dlaždice v kuchyni, predsieni a kúpeľniach.
Terasa s prilehlou záhradou ponúka otvorený, súčasne nezastavený výhľad a v budúcnosti bude priľahnúť priamo k zelenej ploche – ideálne pre oddychové chvíle na čerstvom vzduchu.
Dve parkovacie miesta pred domom a malá predzáhradka dopĺňajú celkovú ponuku.
Dom je stavaný podľa najmodernejších štandardov: KfW-55 efektívny dom s tepelným čerpadlom, fotovoltaickou inštaláciou s batériovým systémom a decentralizovanou ventiláciou so spätným získavaním tepla – pre ekologické a nákladovo efektívne bývanie.
Vezmite prosím na vedomie, že okrem nájomného sa platí mesačný poplatok za PV vo výške 100 €.
Či už ide o rodinný život, štýlové bývanie alebo pohodové večery na terase – tento dom spája funkčnosť, komfort a nadčasovú eleganciu.
Domáce zvieratá bohužiaľ nie sú povolené.
Köfering je pôvabná obec južne od Regensburgu s vynikajúcou infraštruktúrou a vysokou kvalitou života.
Obchody, lekári, materská škola a školy sú v bezprostrednej blízkosti.
Vďaka dopravnej dostupnosti sú veľkí zamestnávatelia, ako napríklad BMW, Krones, Osram, Aumovio, Schaeffler a Siemens, dosiahnuteľní za 10–15 minút; rovnako aj historické centrum Regensburgu alebo zamestnávatelia, akými sú Uniklinik Regensburg či univerzita/OTH, sú rýchlo dostupní.
Okolie zároveň ponúka množstvo možností pre voľnočasové aktivity a pozýva na oddychové chvíle v prírode – ideálne pre rodiny aj dojíždzaných pracovníkov.
V okolí domu vzniká moderné, rodinne priateľské obytné prostredie s malými zelenými plochami a príjemnou susedskou atmosférou – ideálne miesto, kde sa dá usadiť a cítiť sa ako doma.
Vybavenie
• Úplne podzemný (domácnosť, technická miestnosť, úložný priestor, hobby miestnosť)
• Kvalitná vstavaná kuchyňa so stredovým ostrovčekom (značkové spotrebiče Miele, Siemens, Neff)
• Vzduch-voda tepelné čerpadlo
• Fotovoltaická inštalácia s batériou (okrem toho 100 € mesačný poplatok)
• Podlahové kúrenie
• Kvalitné parketové podlahy
• Elegantné schodisko
• Moderné kúpeľne s prvotriednym vybavením
• Decentralizovaná ventilácia so spätným získavaním tepla
• Kúpeľňa v nadzemnom podlaží: prístupná sprcha, vaňa, WC, dvojité umývadlo so skrinkou
• Kúpeľňa v podkroví: prístupná sprcha, WC, umývadlo so skrinkou
• Samostatné hosťovské WC v prízemí
• Terasa s upravenou záhradou
• Elektrické rolety
• 2 parkovacie miesta pred domom
• Úplne podzemný priestor s domácou miestnosťou, hobby priestorom a úložným priestorom
Pri prenájme uvítame záujemcov s overeným vlastným príjmom.
V prípade záujmu nás, prosím, kontaktujte e-mailom a zašlite nám vopred nasledujúce dokumenty:
• Vyplnené hodnotenie nájomcu
• Aktuálne potvrdenie SCHUFA o bonite
• Posledné tri výplatné pásky
• Krátke predstavenie (počet osôb, povolanie, želaný termín sťahovania)
Obhliadky budú dohodnuté iba s uchádzačmi, ktorých dokumentácia bude kompletná. Ďakujeme za pochopenie.
Parametre nehnuteľnosti
| Vek | Nad 50 rokov |
|---|---|
| Stav | Novostavba |
| Číslo inzerátu | 971713 |
| Plocha pozemku | 317 m² |
| Cena za jednotku | 15 € / m2 |
| Dostupné od | 15. 2. 2026 |
|---|---|
| Dispozícia | 5+1 |
| Úžitková plocha | 149 m² |
| Celkové poschodia | 4 |
Čo táto nehnuteľnosť ponúka?
| Pivnica | |
| MHD 6 minút pešo |
| Parkovanie | |
| Terasa |
V okolí nehnuteľnosti nájdete
Stále hľadáte to pravé?
Nastavte si strážneho psa. Ponuky vybrané na mieru dostanete súhrnne 1× denne e-mailom. S Premium profilom máte po ruke rovno 5 strážcov a keď sa niečo objaví, informujú vás obratom.











