
Prenájom kancelárie • 299 m² bez realitkyBramfelder Chaussee 41 Hamburg Bramfeld Hamburg 22177
Bramfelder Chaussee 41 Hamburg Bramfeld Hamburg 22177MHD 2 minúty pešoModerné kancelárske priestory v udržiavanom obchodnom dome – cca 299 m² s prístupom do podzemnej garáže
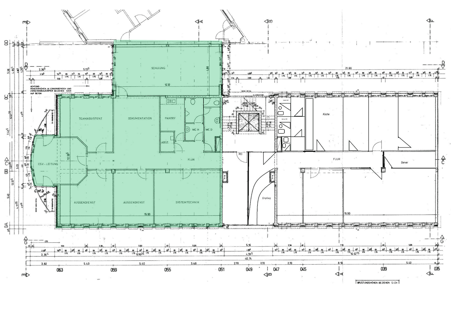
Kancelársky a obchodný dom postavený v roku 1995 ponúka udržiavané a reprezentatívne pracovné prostredie. Na prenájom je k dispozícii kancelárska plocha o výmere cca 299 m², ktorá je všestranne využiteľná a ideálna pre rôzne odvetvia.
Bezbariérový prístup je zabezpečený existujúcim osobným výťahom. Obzvlášť komfortné: Prenajatá plocha je priamo spojená s domáciou podzemnou garážou. Tu si je možné podľa želania prenajať parkovacie miesta za 90 € plus DPH.
Najbližšia stanica metra „Habichtstraße“ sa nachádza v pešej vzdialenosti a poskytuje výborné spojenie s verejnou dopravou.
Objekt sa nachádza v hamburskej štvrti Bramfeld, pri jednej z hlavných dopravných tepien v danej oblasti. Poloha sa vyznačuje živou zmesou bývania a podnikania. Vďaka centrálnej polohe je zabezpečená aj vynikajúca dostupnosť verejnej dopravy, rovnako ako dobrá viditeľnosť a dostupnosť pre zákazníkov a obchodných partnerov.
Parametre nehnuteľnosti
| Vek | Nad 50 rokov |
|---|---|
| Poschodie | 2. poschodie |
| Plocha kancelárie | 299 m² |
| Dostupné od | 1. 1. 2026 |
|---|---|
| Číslo inzerátu | 970310 |
| Cena za jednotku | 12 € / m2 |
Čo táto nehnuteľnosť ponúka?
| MHD 2 minúty pešo |
V okolí nehnuteľnosti nájdete
Stále hľadáte to pravé?
Nastavte si strážneho psa. Ponuky vybrané na mieru dostanete súhrnne 1× denne e-mailom. S Premium profilom máte po ruke rovno 5 strážcov a keď sa niečo objaví, informujú vás obratom.





















