
Predaj domu 4+1 • 110 m² bez realitky, Porýnie-Falcko
, Porýnie-FalckoMHD 7minút pešo • Parkovanie • GarážTento udržiavaný rodinný dom z roku 2011 zaujme premysleným usporiadaním priestoru, moderným vybavením a množstvom komfortných prvkov. Plynové kúrenie bolo v roku 2024 vymenené, čo zabezpečuje efektívne a spoľahlivé vykurovanie.
Prízemie:
- Svetlá, otvorená kuchyňa
- Ľahko prístupná obývacia a jedálenská miestnosť s priamym vstupom na terasu
- Hostinská toaleta so sprchou
Horné poschodie:
- Tri útulné izby (napr. spálňa, detská izba alebo pracovňa)
- Priestranná kúpeľňa so vaňou a sprchou
Ďalšie vybavenie:
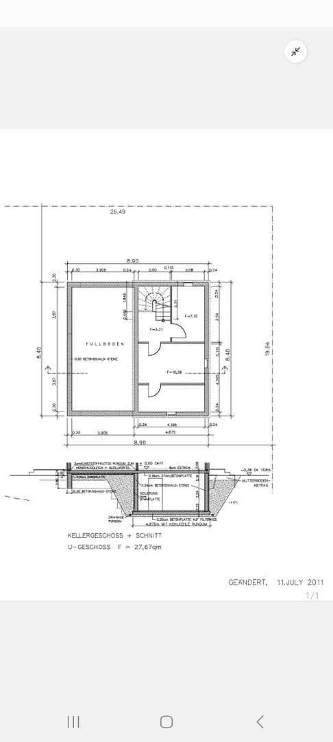
- Polsklep s dodatočným úložným priestorom
- Priestranná terasa s kvalitnou strešnou konštrukciou
- Garáž a carport – spolu 3 parkovacie miesta
- Ľahko udržiavateľný pozemok s rozlohou cca 412 m²
Dom je v veľmi dobrom stave a je ideálny pre rodiny alebo páry, ktoré ocenia moderný komfort bývania a pokojnú lokalitu.
Oppenheim je očarujúce vinárske a kultúrne mesto na Ríne a patrí medzi najvyhľadávanejšie obytné lokality v regióne Rýn-Majns. Mesto ponúka ideálnu kombináciu historickej atmosféry, prírodného prostredia a modernej infraštruktúry.
Historické centrum so svojimi domami vo štýle polodrevených konštrukcií, malými uličkami a slávnym labyrintom pivníc láka na pokojnú prechádzku a oddych. Obchody s každodennými potrebami, supermarkety, lekári, lekárne ako aj rôzne reštaurácie a vinice sú ľahko dostupné.
Rodiny ťažia z bohatého vzdelávacieho systému: materské školy, základná škola a stredné školy sa nachádzajú priamo v obci. Početné voľnočasové možnosti, ako napríklad rínska promenáda, pešie trasy medzi vinicami, športové kluby a kultúrne podujatia, ponúkajú vysokú kvalitu života.
Oppenheim disponuje veľmi dobrou dopravnou dostupnosťou: cez cestu B9 a blízke diaľnice sa rýchlo a jednoducho dostanete do miest Mainz, Worms a Frankfurt. Železničná stanica navyše poskytuje pravidelné S-Bahn a regionálne spojenia do celého regiónu Rýn-Majns.
Parametre nehnuteľnosti
| Vek | Nad 50 rokov |
|---|---|
| Dispozícia | 4+1 |
| Úžitková plocha | 110 m² |
| Celkové poschodia | 2 |
| Stav | Dobrý |
|---|---|
| Číslo inzerátu | 970014 |
| Plocha pozemku | 412 m² |
| Cena za jednotku | 6 181 € / m2 |
Čo táto nehnuteľnosť ponúka?
| Pivnica | |
| Parkovanie | |
| Terasa |
| Garáž | |
| MHD 7 minút pešo |
V okolí nehnuteľnosti nájdete
Stále hľadáte to pravé?
Nastavte si strážneho psa. Ponuky vybrané na mieru dostanete súhrnne 1× denne e-mailom. S Premium profilom máte po ruke rovno 5 strážcov a keď sa niečo objaví, informujú vás obratom.











