
Predaj domu 5+1 • 115 m² bez realitky, Severné Porýnie - Westfálsko
, Severné Porýnie - WestfálskoMHD 1 minúta pešo • ParkovanieKlinkerový reťazový stredový dom na predaj od súkromnej osoby.
Obytová plocha: 131 m² + 45 m² pivnica
Pozemok: 169 m²
Rok výstavby: 1994
Pivnica: 2 izby, 45 m².
Prízemie: obývacia/jedálenská izba, samostatná kuchyňa so zabudovanou linkou, hosťovská toaleta, chodba.
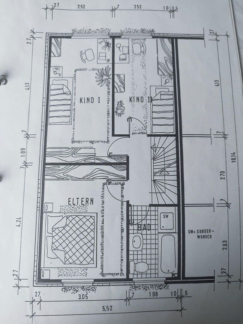
1. poschodie: 3 spálne, kúpeľňa s vaňou, chodba.
Podkrovie: 1 veľká upravená izba, kúpeľňa so sprchou, prípadne klimatizácia.
Šikmé podkrovie je tiež k dispozícii.
Carport + 1–2 parkovacie miesta priamo pred dverami
Wolf kondenzáčný kotol z roku 2013
Kúpeľne z rokov 2017 a 2022
Okna + vstupné dvere z roku 2020
Ochrana proti hmyzu z roku 2021
Terasa + terasové prístrešie z roku 2021
Detská hračná ulica v zónach s upokojenou premávkou bez priechodnej premávky, keďže ide o slepú ulicu.
Prosím, kontaktujte ma iba v prípade, že máte vyriešené financie.
Pri záujme je k dispozícii viac fotografií.
Prehliadky sú možné od teraz.
Energetický preukaz je aktuálne vyhotovovaný kominíkom.
Detská hračná (hracia) ulica – slepá ulica bez priechodnej premávky.
Materské škôlky, školy, lekári, mesto a pod. sú v pešej vzdialenosti.
Parametre nehnuteľnosti
| Vek | Nad 50 rokov |
|---|---|
| Stav | Dobrý |
| Číslo inzerátu | 969625 |
| Úžitková plocha | 115 m² |
| Celkové poschodia | 3 |
| Dostupné od | 1. 2. 2026 |
|---|---|
| Dispozícia | 5+1 |
| PENB | A - Mimoriadne úsporné |
| Plocha pozemku | 169 m² |
| Cena za jednotku | 3 348 € / m2 |
Čo táto nehnuteľnosť ponúka?
| Pivnica | |
| MHD 1 minúta pešo |
| Parkovanie | |
| Terasa |
V okolí nehnuteľnosti nájdete
Stále hľadáte to pravé?
Nastavte si strážneho psa. Ponuky vybrané na mieru dostanete súhrnne 1× denne e-mailom. S Premium profilom máte po ruke rovno 5 strážcov a keď sa niečo objaví, informujú vás obratom.






