
Prenájom bytu 2+1 • 39 m² bez realitkyEversbuschstr. München Allach Bayern 80999
Eversbuschstr. München Allach Bayern 80999MHD 2 minúty pešo • Vybavené • Parkovanie • GarážÚplne novo zariadený byt sa nachádza v nedávno dokončenom multifaktoriálnom dome a je prvýkrát obsadený. Ako dom, tak aj byt sú moderné a luxusne vybavené. KFW40-efektívny dom sľubuje nízke náklady na energie a príjemnú vnútornú atmosféru.
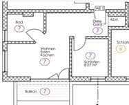
Skvele navrhnutý obytný priestor obsahuje veľmi dobre vybavenú vstavanú kuchyňu, príjemný jedálenský kút a útulný priestor s gaučom a televízorom. V spálni je masívna drevená posteľ s kvalitnou matracom a roštom, ako aj veľká skriňová stena. Pútavá kúpeľňa disponuje prístupnou sprchou so vstavanou dlažbou, zrkadlovou skriňou nad umývadlom, spodnými skrinkami, práčku a sušičom v jednom a oknom. V predsieni je k dispozícii veľa úložného priestoru vďaka šatníku a úložnému kútiku.
Ďalší úložný priestor je k dispozícii v samostatnom suterénnom priestore. Okrem toho je možnosť využiť spoločnú práčovňu so sušičkou. K bytu patrí aj vlastné parkovacie miesto v podzemnej garáži, ktoré je priamo dostupné cez schodisko.
Okolie je príjemne živo a napriek mestskému umiestneniu si udržalo dedinský charakter. Susedstvo je charakteristické rodinnými a menšími viacrodinnými domami a zelenými plochami okolo riek Würm a Angerlohe. Pešo dostupných je množstvo reštaurácií, obchodov, predajní a zariadení dennej potreby. Autobus zastavuje takmer pred dverami a S-Bahn je pešo dostupná za 10 minút.
Mníchov – Allach-Untermenzing, Eversbuschstraße
800 m – S-Bahn S2 (13 minút do Hbf)
80 m – Autobus
4 km diaľnica A8 / A99
Okolie v okruhu 800 m: Supermarkety | Diskontné obchody | Oblečenie a športové obchody | Drogerie | Lekáreň | Lekári | Banky | Hotely | Reštaurácie | Kaviarne | Pekárne
V okruhu 4 km pešo alebo na bicykli: Jazero Langwieder | Zámocký park Nymphenburg | Pivnice | Golfové ihrisko | Firmy/Zamestnávatelia (medzi inými MTU, MAN, Siemens, KNDS)
Parkovacie miesto v podzemnej garáži
Podlahové kúrenie
Elektrické rolety
Obytný priestor:
Sedenie s gaučom, televízorom, nízkym stolíkom
Jedálenský kút s stolom a 4 stoličkami
Vstavaná kuchyňa s indukčnou doskou (4 zóny), rúrou, chladničkou a mrazničkou, umývačkou riadu, mixérom, varnou kanvicou, toustovačom a kávovarom (Senseo)
Príbor, riad, poháre, hrnce, panvice, nôžový blok, misy, strúhadlo a pod.
Spálňa: Masívna drevená posteľ (1,4 m x 2 m), nočný stolík, skriňa
Kúpeľňa: WC, umývadlo, vaňa, zrkadlová skriňa, spodné skrinky, práčka/sušička
Chodba: Skriňa, stojan na topánky, vešiak
Balkón: Sedacia súprava
Ďalšie vybavenie: Smart-TV (42”), vysávač, mop a vedro, metla a lopatka, žehlička a žehliaca doska, sušák na prádlo, fén, posteľná bielizeň a uteráky, internet/WLAN (250 Mbit/s)
Parametre nehnuteľnosti
| Vek | Nad 50 rokov |
|---|---|
| Dispozícia | 2+1 |
| Poschodie | 1. poschodie z 2 |
| Úžitková plocha | 39 m² |
| Stav | Novostavba |
|---|---|
| Vybavené | Vybavené |
| Číslo inzerátu | 969616 |
| Cena za jednotku | 46 € / m2 |
Čo táto nehnuteľnosť ponúka?
| Balkón | |
| Garáž | |
| MHD 2 minúty pešo |
| Pivnica | |
| Parkovanie |
V okolí nehnuteľnosti nájdete
Stále hľadáte to pravé?
Nastavte si strážneho psa. Ponuky vybrané na mieru dostanete súhrnne 1× denne e-mailom. S Premium profilom máte po ruke rovno 5 strážcov a keď sa niečo objaví, informujú vás obratom.





















