
Prenájom domu 4+1 • 135 m² bez realitky, Severné Porýnie - Westfálsko
, Severné Porýnie - WestfálskoMHD 1 minúta pešo • GarážToto moderné a veľmi udržiavané townhouse v Ratingen-Ost ponúka kvalitné bývanie na dvoch podlažiach – ideálne pre páry, rodiny aj dochádzajúcich, ktorí ocenia blízkosť Düsseldorfu bez toho, aby museli vzdať pokoja a zelene.
Nehnuteľnosť zaujme svojou svetlom zalievajúcou architektúrou, nadštandardným vybavením a zriedkavou kombináciou južnej záhrady, rozľahlej strešnej terasy a priameho vstupu z podzemnej garáže do domu.
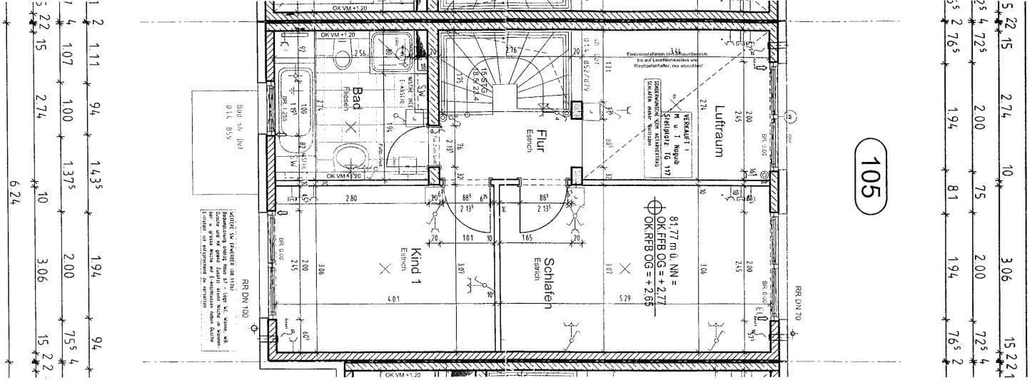
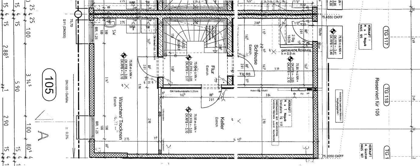
S približne 135 m² obytného priestoru a plne upraveným sklepom ponúka dom veľkú flexibilitu, komfort a priestor.
Ratingen-Ost patrí medzi najžiadanejšie lokality v meste. Okolie je pokojné, zelené a rodinne priateľské, pričom je vynikajúco dostupné:
• Hlavná stanica Düsseldorf: cca 12 km
• Düsseldorfske historické centrum: cca 20 minút
• Letisko Düsseldorf: cca 11 km
• S-Bahn a autobusové linky dostupné pešo
• Diaľnice A3 a A44 za pár minút
• Obchody, školy, materské školy a možnosti voľnočasových aktivít v bezprostrednej blízkosti
Ideálne pre dochádzajúcich do Düsseldorfu, ľudí pracujúcich z domu alebo každého, kto kladie dôraz na pokojné, kvalitné bývanie.
Vybavenie
• Otvorená, svetlá obývacia/jedálenská časť
• Kvalitné parketové a laminátové podlahy
• Podlahové kúrenie s individuálnou reguláciou pre jednotlivé miestnosti
• Centrálny vysávač
• Elektrické rolety (čiastočne s časovačom)
• Hosťovská toaleta s prídavnou sprchou
• Moderné obklady v kúpeľni a na toalete
• Otvorený oceľový schodisko s drevenými schodmi
• Terasa so slnečnou južnou záhradou
• Veľkorysá strešná terasa s diaľkovým výhľadom
• Plne sklepovaný priestor: vykurovaná, izolovaná hobby miestnosť
• 1 miesto v podzemnej garáži s priamym vstupom do domu
• Dostatočný parkovací priestor na ulici
Podzemný garážový priestor: 100 € / mesiac vrátane poplatkov
Kauce: 5.980 €
Poznámka pre záujemcov
Obhliadky sú už možné.
Na požiadanie môže byť uzavretá rezervačná dohoda.
Skorší prevzatie podľa dohody je možné.
Parametre nehnuteľnosti
| Vek | Nad 50 rokov |
|---|---|
| Stav | Dobrý |
| Číslo inzerátu | 969178 |
| Úžitková plocha | 135 m² |
| Celkové poschodia | 2 |
| Dostupné od | 1. 2. 2026 |
|---|---|
| Dispozícia | 4+1 |
| PENB | B - Veľmi úsporné |
| Plocha pozemku | 156 m² |
| Cena za jednotku | 15 € / m2 |
Čo táto nehnuteľnosť ponúka?
| Pivnica | |
| MHD 1 minúta pešo |
| Garáž |
V okolí nehnuteľnosti nájdete
Stále hľadáte to pravé?
Nastavte si strážneho psa. Ponuky vybrané na mieru dostanete súhrnne 1× denne e-mailom. S Premium profilom máte po ruke rovno 5 strážcov a keď sa niečo objaví, informujú vás obratom.














