Prenájom domu 6+1 • 150 m² bez realitky, Bádensko-Wurttembersko
, Bádensko-WurttemberskoMHD 2 minúty pešoNástup od 02/2025 alebo neskôr.
Dom bol postavený v roku 2006 s použitím nízkoenergetickej výstavby (pozri energetický preukaz).
Záhradný areál je medzitým prirodzene vsadený do prostredia a ponúka množstvo možností na individuálne usporiadanie.
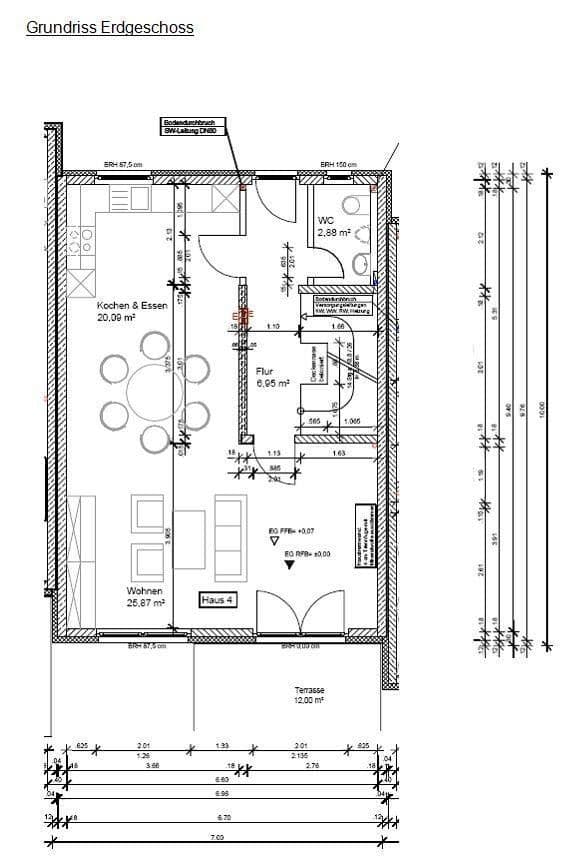
Dom disponuje priestranným hlavným bytom, ktorý sa rozprestiera cez tri podlažia a ponúka obytnú plochu približne 150 m².
V prízemí sa nachádza veľká, otvorená obývacia časť s oddeleným schodiskom, predsieňou a hosťovým WC. Odtiaľ sa dostanete na terasu/balkón orientovaný na juhozápad, umiestnený vo vyvýšenej polohe, ktorý ponúka veľa slnka a pekný výhľad.
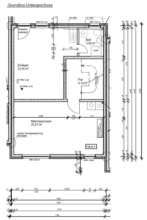
V hornom podlaží sa nachádzajú tri izby – dve detské izby a rodičovská spálňa – a tiež svetlá kúpeľňa s vaňou, sprchou, WC a dvoma umývadlami. Kúpeľňa je orientovaná na východ, takže ráno do nej preniká slnko.
V suteréne sú praktické priestory na uskladnenie vecí, ako aj veľká vykurovaná multifunkčná miestnosť s panoramatickými oknami do záhrady.
Rozloženie bytu je celkovo priestranné a priateľské k rodinám.
Pri plánovaní domov bola venovaná osobitná pozornosť zvukovej izolácii: oddelovacie steny medzi jednotkami tvoria dve masívne, samostatne stojace steny s dodatočnou zvukovou izoláciou, ktoré poskytujú pevný základ pre pokoj a súkromie vo vašom domove.
Uprednostňujeme dlhodobé nájomné zmluvy (minimálne na štyri roky), aby sme našim nájomcom aj sebe poskytli istotu pri plánovaní a možnosť vytvoriť dobré susedské vzťahy. Dlhodobo si tiež dokážeme predstaviť, že jednotlivé domy môžeme neskôr prípadne predať našim nájomcom.
Dom sa nachádza pokojne pri súkromnom prístupe v centre obce.
• 500 m k stanici (Seehaas)
• 100 m k pekárni/dorfladenu
• 200 m k Waldorfovej škole
K domu patrí parkovacie miesto, za ktoré je nájom vo výške 50 €. Sú možnosťi aj ďalšie parkovacie miesta.
Okrem toho je možné prenajať aj samostatný malý byt s vlastným vstupom a rozlohou približne 25 m² – ideálne ako domáca kancelária a byt pre hostí. Základný nájom za tento byt je 300 €.
Parametre nehnuteľnosti
| Vek | Nad 50 rokov |
|---|---|
| Stav | Veľmi dobrý |
| Číslo inzerátu | 968985 |
| Úžitková plocha | 150 m² |
| Celkové poschodia | 3 |
| Dostupné od | 1. 2. 2026 |
|---|---|
| Dispozícia | 6+1 |
| PENB | A - Mimoriadne úsporné |
| Plocha pozemku | 180 m² |
| Cena za jednotku | 10 € / m2 |
Čo táto nehnuteľnosť ponúka?
| Pivnica | |
| Terasa |
| MHD 2 minúty pešo |
V okolí nehnuteľnosti nájdete
Stále hľadáte to pravé?
Nastavte si strážneho psa. Ponuky vybrané na mieru dostanete súhrnne 1× denne e-mailom. S Premium profilom máte po ruke rovno 5 strážcov a keď sa niečo objaví, informujú vás obratom.






