
Prenájom bytu • 57 m² bez realitkyKomunardů, Praha - Holešovice
Nájom a poplatky platia pre prenájom na 10 mesiacov. Túto ponuku je však možné prenajať cez Flatio už od 1 mesiaca. Administratívny poplatok je pre kratšie prenájmy nižší. Prenájmy kratšie ako 6 mesiacov sú vždy bez kaucie.
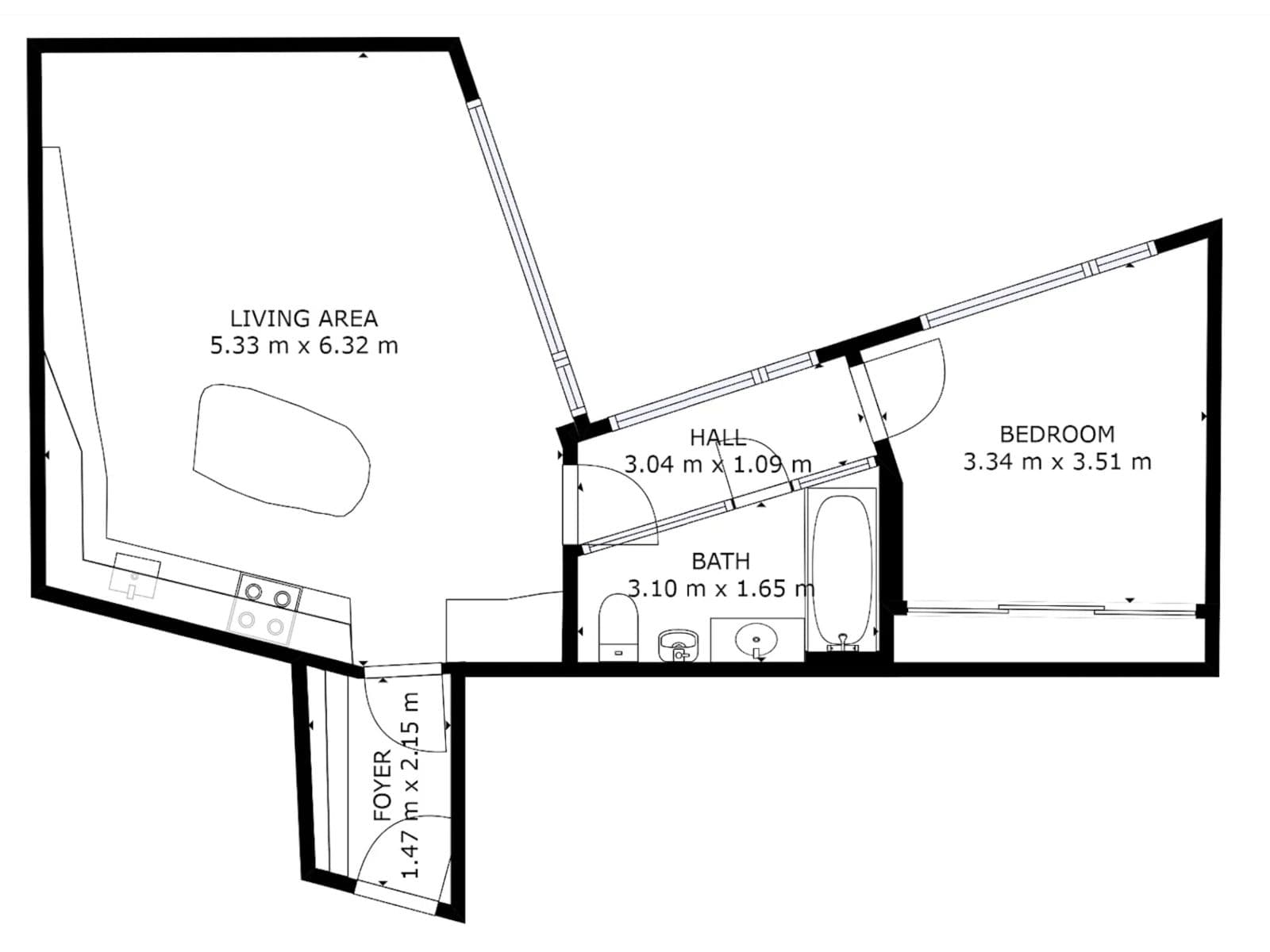
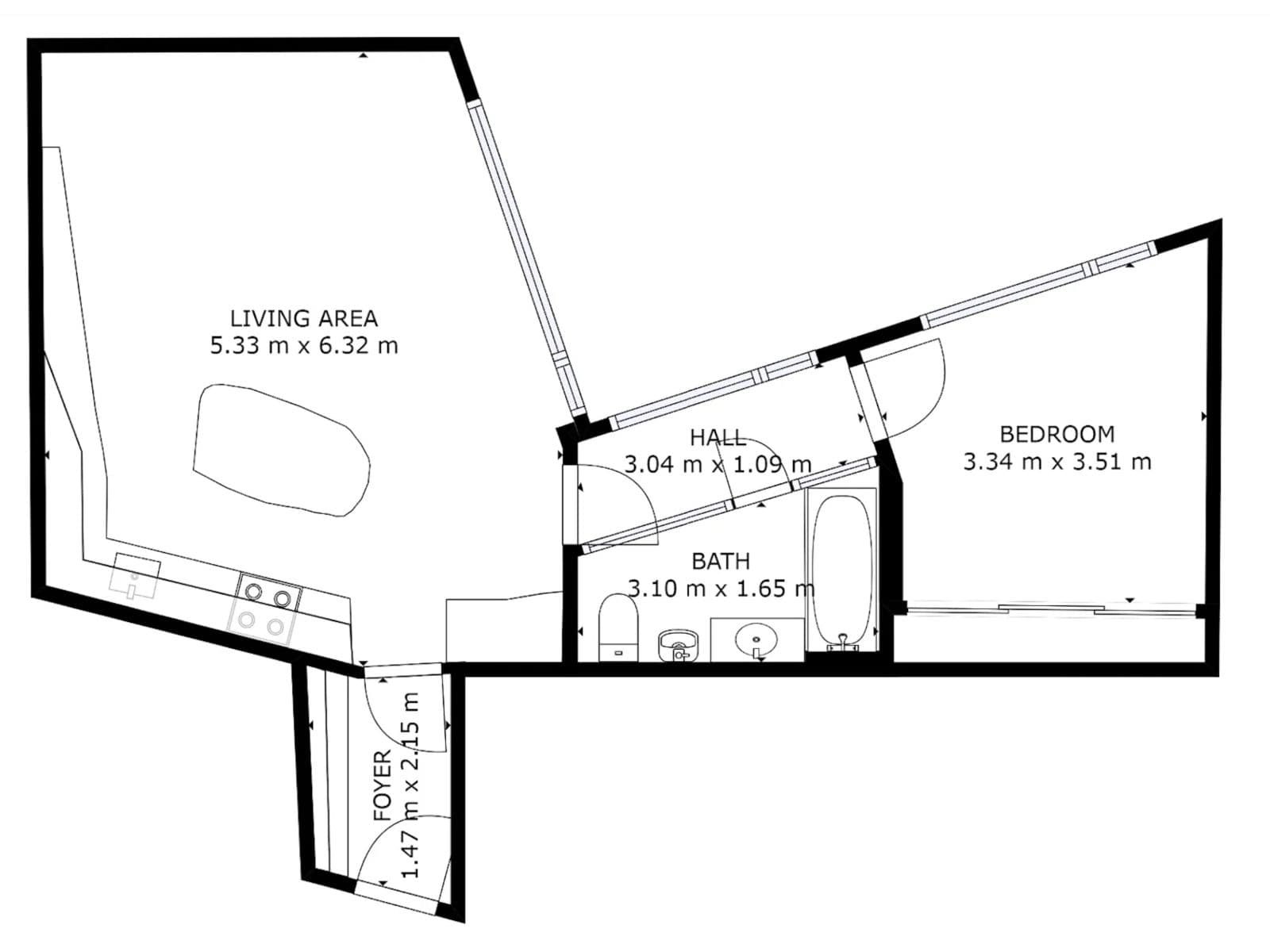
Trendy 1BR in Holešovice Prague 7, 57 m2. Modern and comfortable 1BR apartment located in one of the most vibrant parts of Prague - Holešovice. The spacious living area includes a fully equipped kitchen with a dishwasher, oven and microwave. The entry features a washer & dryer. The bedroom offers plenty of space for rest.
A parking spot in the building is available.
The neighborhood is one of Prague’s trendiest — full of great restaurants, cafés, galleries and weekend spots. The riverfront, Prague Market and Letná Park are all within walking distance.
Parametre nehnuteľnosti
| Dostupné od | 10. 1. 2026 |
|---|---|
| Poschodie | 3. poschodie |
| Úžitková plocha | 57 m² |
| Vybavené | Vybavené |
|---|---|
| Číslo inzerátu | 968805 |
| Cena za jednotku | 835 CZK / m2 |
Čo táto nehnuteľnosť ponúka?
| Garáž | |
| MHD 1 minúta pešo |
| Výťah |
V okolí nehnuteľnosti nájdete
Nájom a poplatky platia pre prenájom na 10 mesiacov. Túto ponuku je však možné prenajať cez Flatio už od 1 mesiaca. Administratívny poplatok je pre kratšie prenájmy nižší. Prenájmy kratšie ako 6 mesiacov sú vždy bez kaucie.


Prenájom bytu28. pluku, Praha - Vršovice- 5+1
- 160 m²
49 000 CZK + 8 000 CZK59 000 CZK
Ušetríte 10 000 CZK


Stále hľadáte to pravé?
Nastavte si strážneho psa. Ponuky vybrané na mieru dostanete súhrnne 1× denne e-mailom. S Premium profilom máte po ruke rovno 5 strážcov a keď sa niečo objaví, informujú vás obratom.

















