
Predaj bytu 3+kk • 76 m² bez realitkyTýřovická, Praha - Radotín
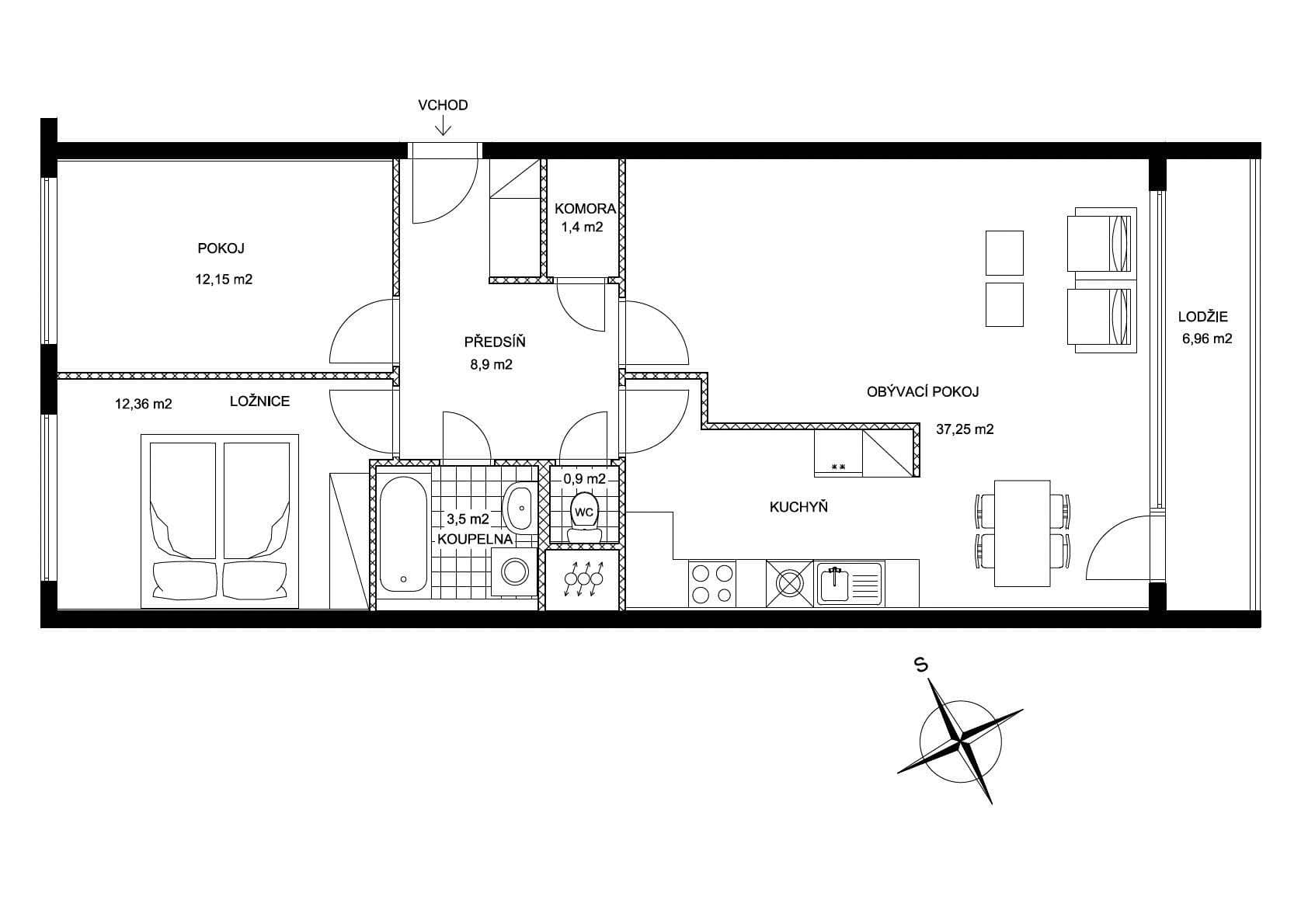
Týřovická, Praha - RadotínČiastočne vybavené • Parkovanie • Pivnica 3 m² • Lodžia 7 m²Nabízíme k prodeji světlý a prostorný byt 3+kk o velikosti 76,5 m².
Součástí prodeje je také samostatná garáž přímo v domě (19,6 m²). Cena garáže je 1 000 000 Kč a není zahrnuta v uvedené ceně bytu.
Byt se nachází ve 2. patře čtyřpodlažního domu v klidné části Prahy – Radotíně. Dům prošel kompletní revitalizací (nový obvodový plášť, zasklená lodžie, nová střecha a vytápění tepelnými čerpadly) a je ve velmi dobrém stavu.
Dispozice bytu nabízí tři samostatné pokoje a kuchyňský kout, centrální chodbu s bezpečnostními dveřmi, koupelnu s vanou, samostatné WC a praktickou komoru. V celém bytě je vinylová podlaha. Díky velkým oknům je byt světlý, tichý a nabízí skvělý výhled.
K bytu náleží sklep, který poskytuje dostatek úložného prostoru.
Vzhledem k poloze domu je možné i bezproblémové parkování před domem. V domě je také kočárkárna a přímo před domem oplocené dětské hřiště.
V docházkové vzdálenosti najdete školu, školku, polikliniku, obchody i sportovní areály, cyklostezku podél Berounky, plavecký bazén i koupaliště. V blízkosti je autobusová zastávka se spojením na Smíchovské nádraží a nedaleko se nachází také vlakové nádraží s výbornou dostupností do centra (Smíchov a Hlavní nádraží) Lokalita nabízí klid, výborné služby i přírodu v dosahu.
Prohlídky jsou možné po předchozí domluvě.
Pro více informací nás prosím kontaktujte.
Parametre nehnuteľnosti
| Dostupné od | 26. 11. 2025 |
|---|---|
| Výstavba budov | Panel |
| Vybavené | Čiastočne |
| Číslo inzerátu | 968505 |
| PENB | C - Hospodárne |
| Úžitková plocha | 76 m² |
| Stav | Veľmi dobrý |
|---|---|
| Dispozícia | 3+kk |
| Poschodie | 2. poschodie z 4 |
| Vlastníctvo | Osobné |
| Umiestnenie | Tichá časť |
| Cena za jednotku | 140 658 CZK / m2 |
Čo táto nehnuteľnosť ponúka?
| Pivnica 3 m² | |
| Parkovanie |
| Lodžia 7 m² |
V okolí nehnuteľnosti nájdete
Stále hľadáte to pravé?
Nastavte si strážneho psa. Ponuky vybrané na mieru dostanete súhrnne 1× denne e-mailom. S Premium profilom máte po ruke rovno 5 strážcov a keď sa niečo objaví, informujú vás obratom.






















