Prenájom domu 3+1 • 139 m² bez realitkyAnny-Trapp-Strasse 30, , Šlezvicko-Holštajnsko
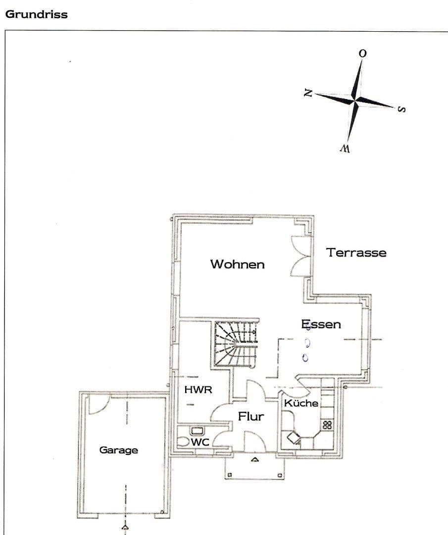
Anny-Trapp-Strasse 30, , Šlezvicko-HolštajnskoMHD 2 minúty pešo • Parkovanie • GarážZrekonštruovaný rodinný dom so troma izbami a multifunkčnou galériou ponúka priestrannú obytnú plochu 139 m² vrátane garáže a záhradnej chalupy. Na prízemí aj v galérii je položená dlažba a vo všetkých miestnostiach sa nachádza podlahové kúrenie a elektrické vonkajšie žalúzie. Zabudovaná kuchyňa je vybavená.
Záhrada a terasa boli starostlivo upravené a ponúkajú priestor na oddych.
Dom sa nachádza v pokojnej, vyhľadávanej obytné oblasti s dobrým susedstvom. Všetky obchody bežnej dennej potreby, ako aj školy, materské školy a lekári, sú ľahko dostupné.
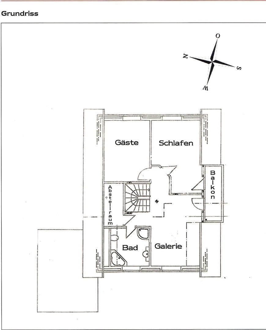
Plná kúpeľňa s rohovou vaňou a vírivkou
Podlahové kúrenie, elektrické vonkajšie žalúzie
Garáž, záhradná chalupa
Balkón pred galériou
Parametre nehnuteľnosti
| Vek | Nad 50 rokov |
|---|---|
| Stav | Dobrý |
| Číslo inzerátu | 968280 |
| Úžitková plocha | 139 m² |
| Celkové poschodia | 2 |
| Dostupné od | 1. 3. 2026 |
|---|---|
| Dispozícia | 3+1 |
| PENB | C - Hospodárne |
| Plocha pozemku | 548 m² |
| Cena za jednotku | 13 € / m2 |
Čo táto nehnuteľnosť ponúka?
| Balkón | |
| Parkovanie | |
| Terasa |
| Garáž | |
| MHD 2 minúty pešo |
V okolí nehnuteľnosti nájdete
Stále hľadáte to pravé?
Nastavte si strážneho psa. Ponuky vybrané na mieru dostanete súhrnne 1× denne e-mailom. S Premium profilom máte po ruke rovno 5 strážcov a keď sa niečo objaví, informujú vás obratom.

















