
Predaj domu • 165 m² bez realitky, Severné Porýnie - Westfálsko
, Severné Porýnie - WestfálskoMHD 2 minúty pešo • Parkovanie • GarážViacgeneračný dom, pre dojíždzaných do Porúrskeho regiónu (A1, 43, 46) a Bergisches Land – ideálne dostupný, napriek vidieckej polohe.
Ponúka napríklad priestor pre až tri generácie pod jednou strechou:
• približne 350 m² vonkajšia plocha
• približne 165 m² obytná plocha
• približne 55 m² „teplá hobby plocha“
• približne 40 m² užitná plocha
Miestnosti sú rozdelené do dvoch oddelených obytných častí, pričom každá z nich má vstavanú kuchyňu, kúpeľňu, balkón/terasu, obývačku a spálňu.
Vyzdvihnuté prednosti:
• Masívna konštrukcia všetkých vnútorných stien, priestorové delenie na dve obytné jednotky, domáce dielne a párty chatky v záhrade, dlhý príjazd a garáž, práčovňa, suterénna bar a veľa priestoru na individualizáciu.
Špeciálne vlastnosti:
• Nízko náročná údržba, skutočne obkladaná fasáda a obložený štít
• Svetlotesne vonkajšie rolety na všetkých oknách, vrátane strešných, plne elektrické (okrem kúpeľne na hornom poschodí)
• Suterén, prízemie aj horné poschodie – v celom vnútroobjekte masívna konštrukcia stien; od stropu horného poschodia je použitá drevená konštrukcia
• Vlastné optické pripojenie v miestnosti domáceho prípojného boxu a mediálny telefónny kábel z tohto priestoru do horného poschodia
• Plynový kondenzačný kotol s inštaláciou na jar 2024
• Elektrická garážová brána s integrovanými vstupnými dverami
• Masívne protipožiarne dvere na prepojení garáže s domom
• Rybníkový systém so existujúcimi záhradnými chatkami pre spoločenské večery a domáce majstrovstvá
Detaily vybavenia:
Suterén
• Dlhá garáž so zateplenou masívnou konštrukciou, s priamym vstupom do domu a betónovými schodmi do záhrady
• Práčovňa a suterén s betónovou podlahou, rôznymi odtokmi, vodovodnými prípojkami a plynovým pripojením pre plynovú varnú dosku v práčovni
• Samostatná kotolňa, rustikálny suterénny bar s odvodom vzduchu cez zavesený strop
• Tienistý vyhrievaný hobby priestor
• Kúpeľňa so sprchou a oknom
• Veľká chodba s kamennými schodmi do prízemia
• Prístup do miestnosti domáceho prípojného boxu
Prízemie
• Veľká vstupná chodba pôsobí ako foyer s vchodovými dverami bytu vychádzajúcimi zo spoločného vstupu do domu
• Veľký priechod vedie do obytného priestoru – okrem priestoru s krbom, toalety pre hostí a do kuchynskej s jedálenskou zónou, ktoré sú oddelené pultom
• Kuchyňa a jedáleň obložené dlažbou; z chodby, cez obývačku až do krbovej izby je priebežne položené pravé parketové drevo
• Priamy vstup z obývačky na terasu a do záhrady
• Krbová izba so zabudovanou prípravou pre krb (z múru)
Záhrada
• Bočná terasa nad garážou aj pred krbom a obývačkou s prilehlým rybníkom a bočne umiestnenou záhradnou chatkou vhodnou na grilovanie
• Trávnik s roztrúsenými mladými stromami a v zadnej časti záhrady s domáciou dielňou
• Úplne pripojená na elektrinu a vybavená dvoma (samostatne uzatvárateľnými) studenicami s studenou vodou blízko domu
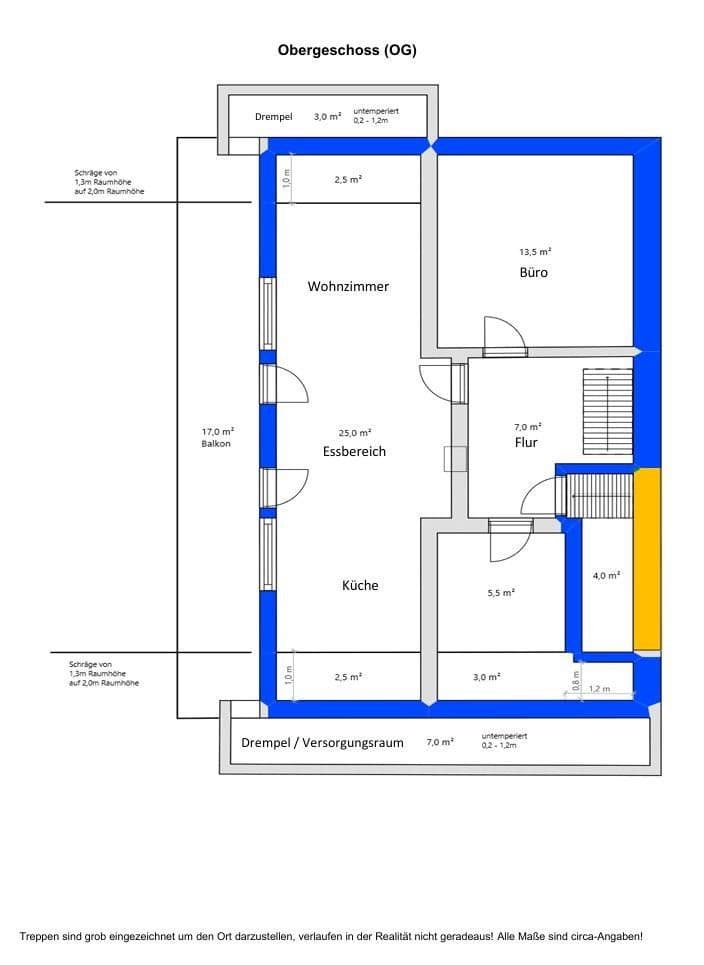
Horné poschodie
• Chodba s vchodovými dverami bytu v spoločnej schodiskovej chodbe a so schodami vedúcimi do podkrovia
• Sklenené dvere do kancelárie s výhľadom na záhradu a laminátovou podlahou
• Kuchynský, jedálenský a obývací priestor navrhnutý ako veľký otvorený priestor; kuchynská časť obložená dlažbou a osvetlená dodatočným strešným oknom vybaveným elektrickými rolietami
• Dvojitý prístup na juhozápadný balkón
• Kancelária a obývací priestor pripravené na klimatizáciu (klimatizácia je k dispozícii, ale musí byť ešte odborne pripojená do elektrickej siete)
Podkrovie
• Malá chodba so vstavanými skriňami, uzavretá izba so štítovými oknami a vstavanými skriňami
• Oddelený skrinový priestor vytvorený pomocou sklenených stien a sklenených dverí medzi chodbou a schodiskom
• Šikmé strešné okná osvetľujú chodbu a šatník
• Drevená podlaha kompletne prekrytá kobercom
Silschede: medzi Volmarstein, Haßlinghausen a Gevelsberg
Perfektné spojenie dopravy:
• K príjazdom na diaľnice A1, A43 a A46 sa dostanete za pár minút
Starostlivosť o deti v obci:
• Materská škola aj základná škola sú pešo dostupné
Zdravie:
• Všeobecná lekárka, lekáreň, zubár a fyzioterapeut priamo prítomní v obci
Príroda:
• Obklopený lesmi a poliami a napriek vidieckej polohe plne zabezpečený zo strany infraštruktúry
Športoviská:
• Lesný štadión, tenisové kurty, niekoľko ihrísk a golfové ihrisko v blízkosti
Dedinská komunita:
• FC Silschede, strelecký klub, kostol, veľkonočný oheň, vianočný trh a oveľa viac
Nakupovanie:
• Obchody s potravinami a diskontné obchody sú autom vzdialené len 10 minút
Cyklistika:
• Uzol 91 cyklistických trás je priamo dostupný na bicykli
Potraviny:
• Pekáreň a občerstvenie v centre obce sú doplnené službami donášky
Čo je ešte treba urobiť?
• Podkrovie je nedávno dokončené a prekryté kobercom. Steny a strop sú obložené vysoko kvalitnými panelmi Parador a miestnosti vybavené priamym aj nepriamym osvetlením.
• V prilehlom hornom poschodí je ešte potrebné zreštať chodbu a veľkú miestnosť, v ktorej sa nachádzajú kuchyňa, jedálenský stôl a obývačka pozdĺž balkóna. Pri rekonštrukcii môže zostať funkčná vstavaná kuchyňa, pretože v tejto oblasti už je položená dlažba – plánovala sa iba obnova stropu. To ponúka možnosť preusporiadať miestnosti podľa vlastného vkusu.
Ďalšie podrobnosti:
• Okna a balkónové dvere v kuchyni, jedálni a obývačke boli vymenené za trojsklá; okno v kancelárii smerom na dvór je ešte z roka výstavby budovy a strešné okno v kúpeľni je približne z roku 2015 bez vonkajšej rolety. Všetky strešné okná v podkroví boli obnovené v rokoch 2019/2020 a vybavené elektrickými vonkajšími rolietami.
• Z osobných dôvodov nie je možné túto rekonštrukciu dokončiť, hoci mnohé materiály už boli zakúpené (čiastočne koberce, zábradlia, stropné panely do chodby, nové vnútorné dvere vrátane rámov atď.). Aj náradie na rekonštrukciu zostáva v dome a je zahrnuté v kúpnej cene.
• Schodisko vedúce cez spoločné priestory k bytu v hornom poschodí ešte nie je prekryté kobercom, hoci tento koberec a jednoduché prvky z nerezovej ocele pre obe schody (vedúce do a v rámci horného poschodia a podkrovia) sú už pripravené na montáž.
• Horné poschodie a podkrovie sú vybavené klimatizáciou, pričom vonkajšie jednotky sú umiestnené na balkóne v oddelenej časti. Pre tieto jednotky je však ešte potrebné pretiahnuť elektrické vedenie z domovej rozvodnej skrinky (v prízemí), ktorá možno bude potrebovať modernizáciu, lebo patrí do roka výstavby domu.
• Inštalácie, káble a domová distribúcia pochádzajú z pôvodného obdobia výstavby nehnuteľnosti. Domový prípojkový box a rozvádzač boli pri inštalácii Wallboxu (2022) úplne vymenené a uvedené do súčasného technického stavu. Energetický dodávateľ inštaloval elektrický merač, ktorý umožňuje využívať dynamickú elektrickú tarifu.
• Všetky zásuvky, vypínače, tlačidlá a ovládacie prvky roliet boli pri rekonštrukčných prácach odvodených od roku 2017 vymenené za vysoko kvalitné produkty značky Gira. Pre miestnosti v hornom poschodí, ktoré sa ešte majú renovovať, sú plánované produkty už k dispozícii.
• V predzáhrade bolo plánované odstrániť tehlové múry až po koncové betónové múry, čím by sa získala o niečo väčšia šírka pre parkovacie miesto.
Všetky obrázky, pohľady a údaje slúžia len ako nezáväzný prehľad detailov nehnuteľnosti a nie sú nevyhnutnou súčasťou kúpnej zmluvy. Obrázky môžu zobrazovať aj staršie obdobia a detailné údaje boli získané vlastným prieskumom, pričom nepredstavujú znalecké hodnotenie.
Parametre nehnuteľnosti
| Vek | Nad 50 rokov |
|---|---|
| Číslo inzerátu | 968001 |
| Úžitková plocha | 165 m² |
| Celkové poschodia | 2 |
| Stav | Dobrý |
|---|---|
| PENB | D - Menej hospodárne |
| Plocha pozemku | 448 m² |
| Cena za jednotku | 3 788 € / m2 |
Čo táto nehnuteľnosť ponúka?
| Balkón | |
| Garáž | |
| MHD 2 minúty pešo |
| Pivnica | |
| Parkovanie | |
| Terasa |
V okolí nehnuteľnosti nájdete
Stále hľadáte to pravé?
Nastavte si strážneho psa. Ponuky vybrané na mieru dostanete súhrnne 1× denne e-mailom. S Premium profilom máte po ruke rovno 5 strážcov a keď sa niečo objaví, informujú vás obratom.








































