
Predaj domu • 216 m² bez realitkyKlammweg 11b Karlsruhe Neureut Baden-Württemberg 76149
Klammweg 11b Karlsruhe Neureut Baden-Württemberg 76149MHD do minúty pešoDas ponúkaný trojrodinný dom bol postavený v roku 1962 na pozemku o veľkosti 219 m². Energetická obnova vrátane izolácie fasády a novej strechy bola v posledných rokoch už vykonaná. Vďaka svojej polohe, ktorá je zároveň blízko mesta aj prírody, v Neureut-Heide, je nehnuteľnosť vhodná na prenájom rodinám, párom, single osobám a študentom.
Bytová plocha predstavuje 216,36 m².
Rozdeľuje sa na tri bytové jednotky nasledovne:
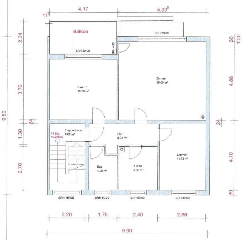
Prízemie: 74,31 m² obytného priestoru, 3-izbový byt s kuchyňou, kúpeľňou a balkónom so vstupom do záhrady
Poschodie: 74,31 m² obytného priestoru, 3-izbový byt s kuchyňou, kúpeľňou a balkónom
Patták: 67,74 m² obytného priestoru, 3-izbový byt s kuchyňou, kúpeľňou a balkónom
Všetky tri bytové jednotky sú prenajaté.
Súčasný ročný čistý nájom činí 24 816,00 €.
To zodpovedá priemernej nájomnej sadzbe bez zahrnutých poplatkov vo výške 9,69 € na m² mesačne.
Tým pádom je tu ešte značný potenciál pre zvyšovanie nájomného v nasledujúcich rokoch.
Trojrodinný dom sa nachádza s veľmi dobrým dopravným spojením v mestskej časti Karlsruhe Neureut-Heide. Tramvajová zastávka Neureut-Heide je vzdialená len 300 metrov.
Na pozemku sa nenachádzajú žiadne parkovacie miesta pre vozidlá. V bezprostrednom okolí je však k dispozícii dostatok verejných parkovacích miest.
Všetky možnosti nákupov a mestská infraštruktúra (lekári, školy, jasle,…) sú dostupné v priebehu niekoľkých minút.
Na oddych je k dispozícii Heidesee, kde sa po náročnom dni dá príjemne oddýchnuť prechádzkou.
Nehnuteľnosť zaujme svojou veľmi dobrou substanciou a veľmi udržiavaným stavom v skvelej lokalite.
Dom je úplne s podkrovím. Každý prenajatý byt má vlastnú pivničnú miestnosť. Okrem toho je k dispozícii spoločná práčovňa.
Krásna, tichá záhrada je v súčasnosti využívaná nájomkyňou bytu v prízemí.
Pred budovou sa na pozemku nachádza dostatok postojaní pre bicykle pre všetkých obyvateľov.
Majiteľ nehnuteľnosť neustále udržiaval vo veľmi dobrom stave a všetky potrebné investície boli už vykonané.
Konkrétne renovácie a rekonštrukcie:
Byt v prízemí (2015):
• Modernizácia kúpeľne (nové vodovodné/elektrické rozvody, obklady stien a podláh, sanitárne zariadenia, sušiče uterákov)
• Spálňa, predsieň a obývacia izba s kvalitnými parketami s 3 vrstvami
• Spálňa a obývacia izba s novými radiátormi
• Všetky miestnosti s novými oknami, čiastočne podlahovými
Byt v poschodí (2011):
• Modernizácia kúpeľne (nové vodovodné/elektrické rozvody, obklady stien a podláh, sanitárne zariadenia, sušiče uterákov)
• Všetky miestnosti s novými oknami
Byt na podkroví (novostavba 2013):
• Nová strešná konštrukcia s izoláciou a novým krytinou
• Výstavba nového balkóna
• Masívna parketa z masívneho dreva vo všetkých miestnostiach
• Obnova vnútorných priečok, kúpeľne, radiátorov ako aj elektroinštalácie a vodoinštalácie
• Inštalácia nových okien
Ďalšie modernizácie:
• 2020: Inštalácia novej plynového kondenzácie kotla
• 2024: Izolácia fasády a podkrovia; výmena rolety za vonkajšie žalúzie
• 2024: Rekonštrukcia balkónu v prízemí/poschodí
Energetický preukaz: Spotrebový preukaz platný do 22.08.2035
Konečná energetická spotreba: 106,7 kWh/(m²a)
Hlavné zdroje energie: plyn
Energetická trieda: D
Parametre nehnuteľnosti
| Vek | Nad 50 rokov |
|---|---|
| Číslo inzerátu | 967990 |
| Úžitková plocha | 216 m² |
| Celkové poschodia | 3 |
| Stav | Dobrý |
|---|---|
| PENB | D - Menej hospodárne |
| Plocha pozemku | 219 m² |
| Cena za jednotku | 3 421 € / m2 |
Čo táto nehnuteľnosť ponúka?
| MHD 0 minút pešo |
V okolí nehnuteľnosti nájdete
Stále hľadáte to pravé?
Nastavte si strážneho psa. Ponuky vybrané na mieru dostanete súhrnne 1× denne e-mailom. S Premium profilom máte po ruke rovno 5 strážcov a keď sa niečo objaví, informujú vás obratom.

















