
Predaj domu 3+1 • 95 m² bez realitkyRemscheid Remscheid Nordrhein-Westfalen 42855
Remscheid Remscheid Nordrhein-Westfalen 42855MHD 1 minúta pešo • Parkovanie • GarážNa tomto veľkorysom pozemku stoja dve masívne postavené budovy, ktoré ponúkajú množstvo možností využitia. Hlavná budova pochádza zo spätej 1920. rokov, pričom jednopodlažná prístavba bola pôvodne postavená ako dielňa a neskôr prevádzkovaná ako reštaurácia. Obe budovy sú v dobrom stave.
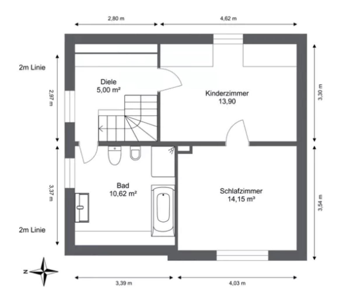
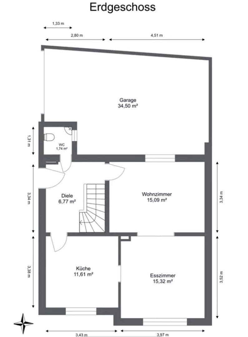
Rezidenčný dom je vybavený plynovým ústredným kúrením s ohrevom vody (rok výstavby 2012) a má päť suterénnych miestností, z ktorých jedna je využívaná ako sušiarenská. V prízemí sa nachádza príjemné predsieň, modernizovaná toaleta pre hostí, svetlá obývacia izba a veľkorysá obývacia a jedálenská časť, ktorá je štýlovo oddelená pomocou konštrukčných prvkov. Na poschodí sa nachádza hlavná kúpeľňa so sprchou, vaňou a toaletou, spálňa a ďalšia miestnosť, ktorá sa dobre hodí ako detská izba, izba pre hostí alebo pracovňa. Podkrovie ponúka dodatočný úložný priestor.
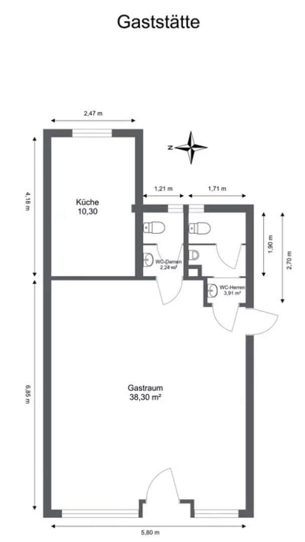
Prístavba vznikla koncom druhej svetovej vojny a je v súčasnosti využívaná ako reštaurácia. Nájomná zmluva je na dobu neurčitú, avšak môže byť vypovedaná ku koncu roka. Vo vnútri sa nachádza hostinský sál s pultom a takisto prístrešená vonkajšia časť. Reštaurácia môže byť tiež využitá ako samostatný byt alebo dielňa. Za budovou sa nachádza aj trávnik, ktorý je možné spojením vytvoriť priechod medzi oboma budovami.
Parametre nehnuteľnosti
| Vek | Nad 50 rokov |
|---|---|
| Dispozícia | 3+1 |
| PENB | G - Mimoriadne nehospodárne |
| Plocha pozemku | 352 m² |
| Cena za jednotku | 3 042 € / m2 |
| Stav | Dobrý |
|---|---|
| Číslo inzerátu | 966984 |
| Úžitková plocha | 95 m² |
| Celkové poschodia | 1 |
Čo táto nehnuteľnosť ponúka?
| Pivnica | |
| Parkovanie | |
| Terasa |
| Garáž | |
| MHD 1 minúta pešo |
V okolí nehnuteľnosti nájdete
Stále hľadáte to pravé?
Nastavte si strážneho psa. Ponuky vybrané na mieru dostanete súhrnne 1× denne e-mailom. S Premium profilom máte po ruke rovno 5 strážcov a keď sa niečo objaví, informujú vás obratom.























