
Prenájom bytu 3+1 • 90 m² bez realitkyTegernbach Tegernbach Bayern 84104
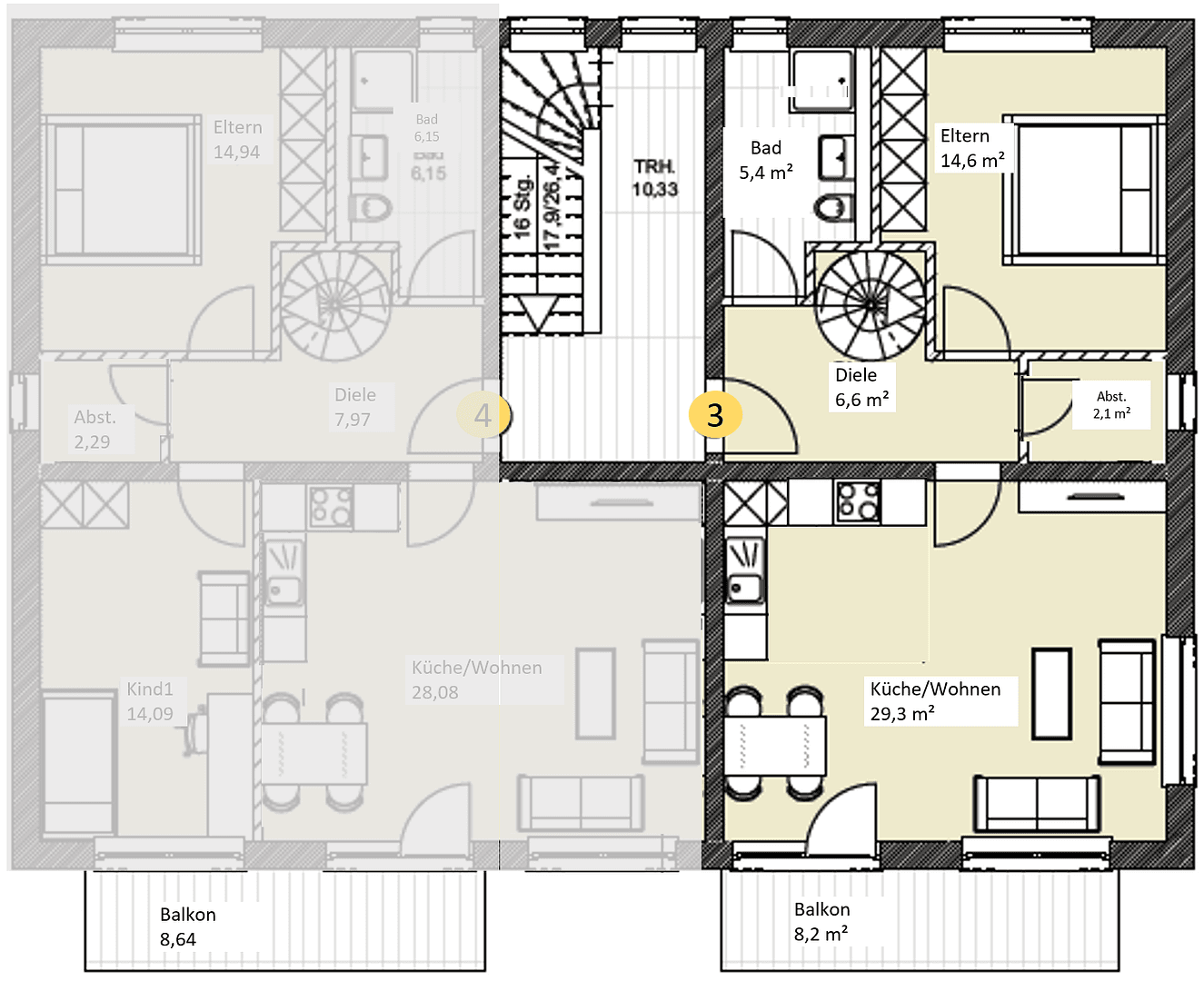
Tegernbach Tegernbach Bayern 84104MHD 1 minúta pešo • Parkovanie • GarážPri tejto pôsobivej nehnuteľnosti ide o mezonietový byt na prvom poschodí v štvorfamilijnom dome postavenom v roku 2020. Vysoko kvalitne vybavená nehnuteľnosť je takmer nová. Po vstupe do bytu vás čaká veľká obývačko-jedálenská kuchyňa, úložňa, jedna spálňa a kúpeľňa – cez špirálové schody sa dostanete na podkrovie, kde sa nachádza ďalšia spálňa a veľká galéria, ktorá môže slúžiť ako kancelária. Okrem toho tu nájdete ešte jeden veľký úložný priestor s dostatočným objemom. Výnimočné je aj veľký juhozápadný balkón.
Vybavenie na vysokej úrovni:
- Kúrenie s vysokovýkonnými vzduchovými tepelnočerpadlami
- Nízke náklady na energiu vďaka nadštandardnej tepelnej izolácii a zvukovej izolácii
- Podlahové kúrenie na nízkej teplote s individuálne ovládateľnými izbovými termostatmi v celom objekte
- Systém na zmäkčenie vody pre celý dom – potešenie pre pokožku, vlasy, pranie aj spotrebiče
- Čerstvé vodné stanice v každom byte
- Energeticky úsporné vetranie obytných priestorov s rekuperáciou tepla
- Mimoriadne svetlé izbá vďaka veľkým oknám s trojitým zasklením a elektrickými žalúziami
- Mediálne pripojenia v obývačkách a vo všetkých spálňach
- Optické pripojenie s možnosťou pripojenia až do 1000 Mbit/s
- Satelitná zostava
- Kúpeľne a chodby vybavené kvalitnými LED stropnými svetlami
- Súčasťou bytu je aj veľká pivnica
- Veľkorysé balkóny s rozlohou viac ako 8 m²
- Rozsiahla spoločná záhrada
- Veľká spoločná práčovňa s možnosťou zvýšeného umiestnenia práčky a sušičky
- Parkovacie miesta a garáže sú vybavené wallboxmi
Voliteľné:
Vybavená kuchyňa 60 €/mesačne
Vonkajšie parkovacie miesto 20 €/mesačne
Dvojitá garáž – 50 €/mesačne za parkovacie miesto
Idylický a pokojne situovaný Tegernbach patrí obci Rudelzhausen, ktorá sa nachádza v severnom okresu Freising. Obec má celkovo približne 3500 obyvateľov, pričom Tegernbach tvorí približne 850 z nich.
V Tegernbachu sa nachádza obecná materská škola, vonkajší bazén, pekáreň, mäsiarska prevádzka, obchod s nápojmi, reštaurácie, pošta a pre športovo založených je tu futbalový klub, tenisový klub, pričom aj golfové ihrisko Holledau patrí medzi atrakcie Tegernbachu. Okolité cyklistické a turistické trasy ponúkajú mnoho možností na voľnočasové aktivity.
Základná škola sa nachádza v priľahlom Rudelzhausen. Ďalšie školy, ako aj lekári, lekárne a nemocnica (Mainburg/Freising), sa nachádzajú v blízkom okolí.
Miestnosť je veľmi centrálne situovaná medzi Mníchovom, Landshutom, Regensburgom a Ingolstadtom – všetky tieto mestá sú autom dostupné približne za 35 minút, rovnako ako aj letisko v Mníchove.
Tri autobusové linky MVV spájajú Tegernbach s Mainburgom, Freisingom a Moosburgom. Z Freisingu a Moosburgu je možné prestúpiť na S-Bahn alebo vlak.
Štyri nájazdy na diaľnicu sú dostupné približne do 15 minút – A9 výjazd Schweitenkirchen/Pfaffenhofen, A93 výjazd Wolnzach, Mainburg a aj Elsendorf.
V prípade záujmu, prosím, zašlite informatívnu prihlášku/stručný životopis vrátane vlastného vyhlásenia. Až po doručení vašich podkladov bude možné dohodnúť termín prehliadky.
Parametre nehnuteľnosti
| Vek | Nad 50 rokov |
|---|---|
| Stav | Veľmi dobrý |
| Poschodie | 1. poschodie z 2 |
| Úžitková plocha | 90 m² |
| Dostupné od | 15. 12. 2025 |
|---|---|
| Dispozícia | 3+1 |
| Číslo inzerátu | 966266 |
| Cena za jednotku | 12 € / m2 |
Čo táto nehnuteľnosť ponúka?
| Balkón | |
| Garáž | |
| MHD 1 minúta pešo |
| Pivnica | |
| Parkovanie |
V okolí nehnuteľnosti nájdete
Stále hľadáte to pravé?
Nastavte si strážneho psa. Ponuky vybrané na mieru dostanete súhrnne 1× denne e-mailom. S Premium profilom máte po ruke rovno 5 strážcov a keď sa niečo objaví, informujú vás obratom.







