
Predaj domu • 145 m² bez realitkyNürnberg Worzeldorf Bayern 90455
Nürnberg Worzeldorf Bayern 90455MHD 5minút pešo • ParkovanieBEZ PROVÍZIE, od súkromného vlastníka.
Prémiová lokalita Nürnbergu – Worzeldorf, tichá slepá ulica, ideálna pre rodinu s 2-3 deťmi. Alebo pre náročný pár, ktorý potrebuje priestor pre homeoffice aj hostinské priestory.
STAVBA:
Navrhnuté v roku 1997 skúsenou architektonickou kanceláriou a postavené s pevnými základmi regionálnymi firmami. Prvé nasťahovanie v decembri 1998.
Náš dvojdom (samostatne stojaci) má podľa veľkosti a dispozície charakter rodinného domu. Vonkajšie rozmery cca: hĺbka 9,00 m, šírka 9,60 m/11,10 m. Vďaka tomu nastavene veľmi priestranné pôdorysy v prízemí a nadstavbe (v porovnaní s bežnými developerskými domami s 3-4 poschodiami).
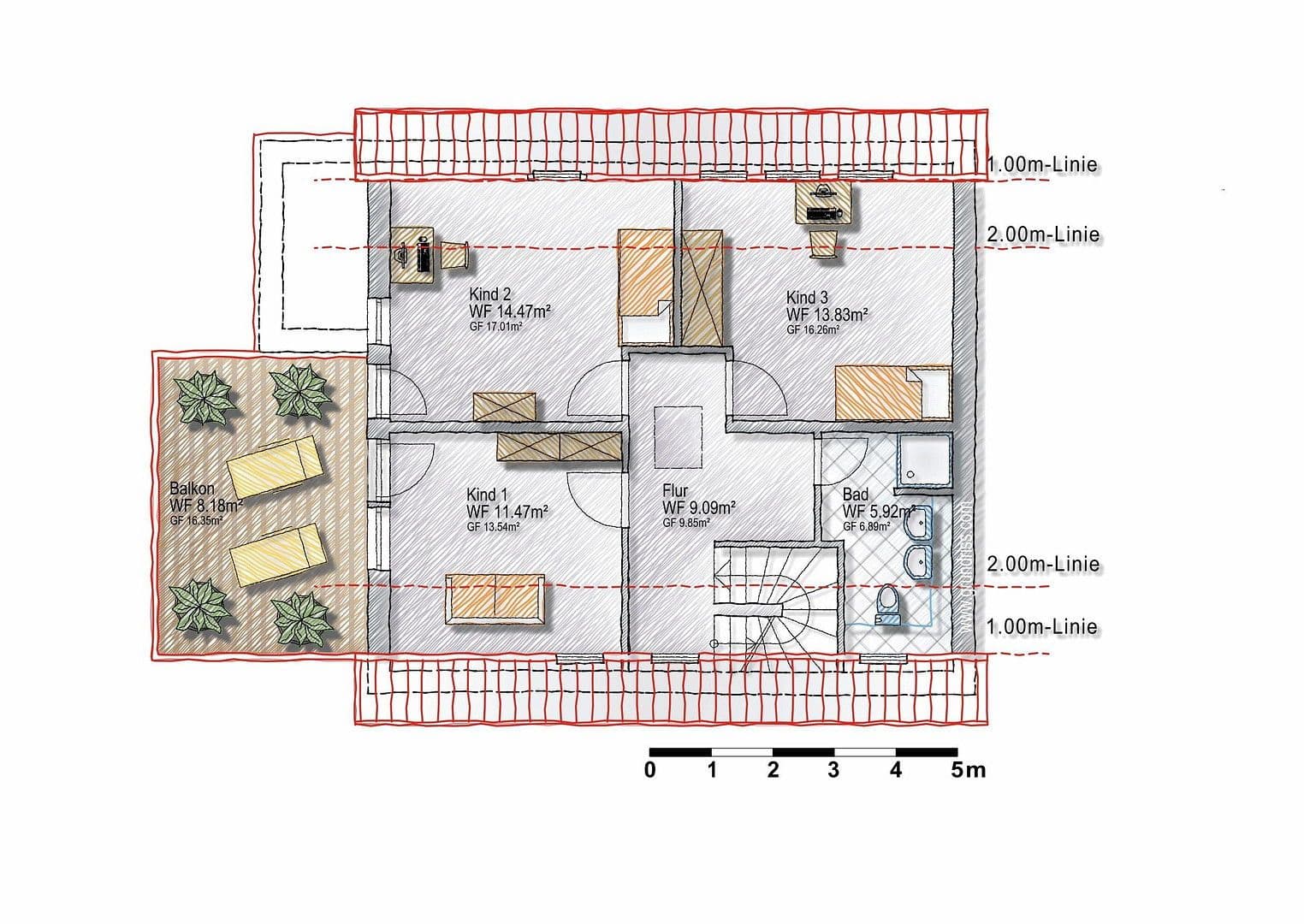
Pohodlné bývanie a spánok v prízemí, vlastné poschodie s 3 (detskými) izbami a kúpeľňou v nadstavbe, podkrovie vyhrievané a upravené ako obytný priestor (na hobby/fitness, kanceláriu).
Suterén vyhotovený z WU-betónu (hovorovo: voda-neprenikateľná „biela vaňa“), obklopený kvalitnou perimetrovou izoláciou, vonkajšie múry masívne postavené z 36,5 cm dierkových tehál (vďaka čomu nie je potrebná dodatočná tepelná ochrana). Vnútorné múry sú taktiež zateplené tehálami. Stropy v suteréne a prízemí sú z prefabrikovaného betónu, zatiaľ čo v podkroví je použitá drevená nosná konštrukcia. Strecha je konštruovaná ako robustná stolárska konštrukcia, kde sú niektoré trámy obrobené a viditeľné (v špičkovej časti nájdete izbu s hernou/spálňovou galériou), celá strecha je izolovaná medzi krokvami (cca 20–22 cm) a navyše je horný strop poschodia úplne izolovaný.
TECHNIKA DOMU:
Centrálny plynový kotol Vaillant ecoTEC PLUS VC; s oddelene ovládaným ohrevom teplej vody pre letné mesiace.
Elektroinštalácia so silovým pripojením v suteréne a prípravou na saunu. Viacnásobne chránené: vonkajšie osvetlenie, ktoré je možné ovládať samostatne a je vybavené pohybovým čidlom.
Zalievací systém pozostávajúci z cistry s ponorným čerpadlom, ktorý je v exteriéri pripojený k vodovodným kohútikom samostatne (jeden kohútik na bežnú vodovodnú prípojku, druhý na cistérnu) – ekologicky rozumné riešenie, ktoré šetrí náklady na vodu pri polievaní kvetov.
Nová klimatizácia na nadstave, inštalovaná v roku 2021, ktorá funguje ako takmer neslyšné tepelné čerpadlo od trhu vedúceho DAIKIN – zabezpečuje vykurovanie aj chladenie.
Chladenie nadstavy a zníženie teploty v prízemí sú pre nás vždy viac než postačujúce a mimoriadne komfortné. Homeoffice nadstavy je aj počas leta bez problémov, zatiaľ čo bývanie a spánok v prízemí sú príjemne ochladené.
Nürnberg – Worzeldorf patrí k najžiadanejším rezidenčným lokalitám na juhu Nürnbergu. Táto štvrť ponúka dokonalú kombináciu bývania blízko prírody, vysokej kvality života a rýchlej dostupnosti do centra Nürnbergu. Rodiny oceňujú tiché a bezpečné prostredie s množstvom zelene, zatiaľ čo dojíždzači si pochvaľujú výbornú dostupnosť autobusom, metrom a diaľnicami B2, A6 alebo A73 (Frankenschnellweg / Südwesttangente). Nakupovacie možnosti, školy, možnosti voľnočasových aktivít ako aj rozsiahly Reichswald robia z Worzeldorfu atraktívnu a stabilnú rezidenčnú oblasť s veľmi dobrou hodnotovou stabilitou. V blízkej budúcnosti je z tohto miesta dostupná na bicykli aj nová KI-univerzita „UTN University of Technology Nuremberg“.
MIKROLOKALITA:
Nehnuteľnosť sa nachádza ticho v slepej uličke – ideálna pre rodiny a všetkých, ktorí hľadajú pokojné bývanie. Iba cca 100 m od domu je autobusová zastávka s priamym spojením na Frankenstraße a do Frankenzentruma (s pripojením na metro). Len pár krokov a ocitnete sa v areáli Wiesengrund, medzi rozľahlými zelenými plochami a priľahlým lesom. Cyklistické a pešie trasy začínajú takmer priamo pred domom a pozývajú na prechádzky, beh či jazdu na bicykli. Športové ihrisko, tenisový kurt a ďalšie možnosti voľnočasových aktivít sú taktiež v pešej vzdialenosti.
VÝBAVENIE:
Okrem kuchyne a obývacej izby sa v prízemí nachádza elegantná kúpeľňa/toaleta s veľkolepou sklenenou sprchou a oknom, vybavená elektrickým podlahovým kúrením.
V obytných priestoroch dominuje dubový, olejovaný parket, v kúpeľni sú použité veľkoformátové dlaždice.
Kvalitná kuchyňa s barom spojeným s obývacou izbou nenecháva nič na želanie. Bola vytvorená v roku 2012 v spolupráci s našou interiérovou architektkou v kuchynskom štúdiu Federl a predstavuje nadčasovo moderný, bezúchytkový dizajn so špičkovými značkovými spotrebičmi – medzi nimi vstavaný kávovar a parný varič od Miele, veľká vstavaná chladnička od Liebherr, Miele vinotéka so 2 teplotnými zónami, veľká 90 cm indukčná varná doska od Siemens, systém externého odvodu vzduchu, zavesené lampy nad barom od FLOS, a zavesený strop so stmievateľnými reflektormi. Kuchyňa môže byť odkúpená za odplatu (cena dohodou), rovnako ako veľký masívny jedálenský stôl, ak si to želáte.
Spálňa je vybavená posuvnou skriňou s dverami až do výšky miestnosti a praktickým vnútorným zariadením (police, tyče, zásuvky). Keďže skriňa dokonale zapadá do priestoru, je tiež možné ju odkúpiť (cena dohodou).
V prízemí je nainštalovaný rozsiahly ovládací systém s možnosťou ukladania stmievania pre takmer všetky nástenné a stropné lampy (inštalovaný v roku 2012).
Na nadstave sa nachádzajú 3 (detské) izby a ďalšia kúpeľňa/toaleta s oknom. Podlaha na poschodí je pokrytá kobercom, pričom kúpeľňa je starostlivo udržiavaná a zariadená – podlahy a steny sú svetle obložené dlaždicami.
Veľká terasa sa nachádza pred oboma detskými izbami a smeruje k dvojitému carportu, pričom je vybavená nerezovým zábradlím a elegantným matným sklom.
Celý suterén je upravený ako obytný priestor a obložený dlažbou.
S výnimkou technickej miestnosti (určenej na odovzdanie techniky) má každá izba vlastný radiátor, čo umožňuje optimálne využitie priestoru.
K dispozícii je aj práčovňa s vonkajším sušičom, fitness či herňa a svetlá izba využívaná ako kancelária s veľkým svetlovým „svetlovým priehlbom“ (light well). V suteréne je tiež prítomné silové pripojenie a príprava na saunu.
Na všetkých oknách sú inštalované rolety, prevažne elektrické, ako aj dodatočné elektrické vonkajšie žalúzie.
Dve veľké, vysoké parkovacie miesta (cca 2,45 m vysoké) sa nachádzajú pod dvojitým carportom.
Záhrada, upravená na dvoch úrovniach, ponúka rôzne kríky a malé stromy. Pred podlažnými oknami obývacej izby sa rozprestiera priestranná terasa, na pravej strane s trávnikom a na ľavej strane priestor pre útulnú hojdačku, ako aj praktický záhradný domček susediaci s dvojitým carportom. V záhradnom úseku sú zavedné aj elektrické prípojky a automatický podzemný zavlažovací systém. Cistérna zase zabezpečuje dodávku výhodnej dažďovej vody.
Parametre nehnuteľnosti
| Vek | Nad 50 rokov |
|---|---|
| Číslo inzerátu | 965164 |
| Úžitková plocha | 145 m² |
| Celkové poschodia | 2 |
| Stav | Dobrý |
|---|---|
| PENB | E - Nehospodárne |
| Plocha pozemku | 238 m² |
| Cena za jednotku | 5 483 € / m2 |
Čo táto nehnuteľnosť ponúka?
| Balkón | |
| Parkovanie | |
| Terasa |
| Pivnica | |
| MHD 5 minút pešo |
V okolí nehnuteľnosti nájdete
Stále hľadáte to pravé?
Nastavte si strážneho psa. Ponuky vybrané na mieru dostanete súhrnne 1× denne e-mailom. S Premium profilom máte po ruke rovno 5 strážcov a keď sa niečo objaví, informujú vás obratom.































