
Prenájom bytu 2+1 • 60 m² bez realitkyGustav-Heinemann-Straße 109 Bremen Findorff Bremen 28215
Gustav-Heinemann-Straße 109 Bremen Findorff Bremen 28215MHD 1 minúta pešo • Výťah • ParkovanieTáto vysoko kvalitne vybavená a novo zrekonštruovaná 2-izbová bytosť na adrese Gustav-Heinemann-Straße 109 sa nachádza vo veľmi udržiavanom viacfamilijnom dome v obľúbenom bremeckom štvrti Findorff.
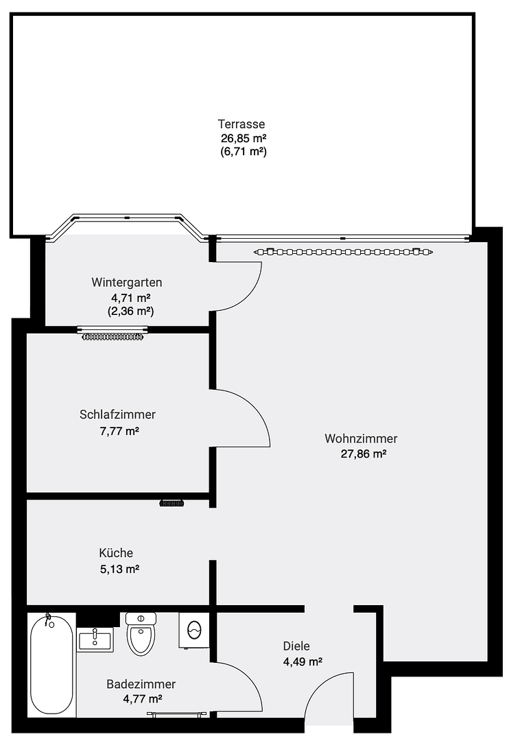
S obytnou plochou približne 60 m² ponúka moderný komfort bývania so štýlovými materiálmi a premysleným konceptom priestoru.
Vybavenie:
• Všetky miestnosti sú vybavené na vysokej úrovni
• Kvalitná podlaha s elegantnými granitovými dlaždicami
• Nová zabudovaná kuchyňa s indukčnou varnou doskou, rúrou s pyrolytickou funkciou, umývačkou riadu a chladničko-mraziacou kombináciou
• Moderná, čerstvo zrekonštruovaná kúpeľňa s vaňou, ohrievačom na uteráky, umývadlom a práčkou
• Svetlý predsál s vešiakom
• Malá, útulná zimná záhrada ako dodatočné útočište
• Veľká, slnečná terasa (cca 26 m²) s priestorom pre salón alebo jedáleň
• Skladovací priestor v suteréne s dodatočným úložným priestrom
• Vlastné vonkajšie parkovacie miesto priamo pred vchodom
Byt sa nachádza v jednej z najžiadanejších obytných oblastí Bremenu – v srdci Findorff.
• Mestský park Bremen: len 5 minút pešo – ideálny na prechádzky alebo šport
• Obchodné možnosti: REWE, Lidl, pekáreň, lekárne a ďalšie obchody sú dostupné už za 1 minútu
• MHD: výborné spojenie do všetkých častí mesta
• Centrum: dostupné za niekoľko minút bicyklom alebo autobusom
• Čerstvo zrekonštruovaná vrátane novej kúpeľne
• Veľká terasa o rozlohe 26 m²
• Skladovací priestor v suteréne
• Vlastné parkovacie miesto
• Udržiavaný obytný komplex
Ideálna voľba pre singlov alebo páry, ktorí si cenia štýlové bývanie, komfort a tichú lokalitu s dokonalou infraštruktúrou.
Parametre nehnuteľnosti
| Vek | Nad 50 rokov |
|---|---|
| Stav | Po rekonštrukcii |
| Číslo inzerátu | 964580 |
| Cena za jednotku | 16 € / m2 |
| Dostupné od | 5. 12. 2025 |
|---|---|
| Dispozícia | 2+1 |
| Úžitková plocha | 60 m² |
Čo táto nehnuteľnosť ponúka?
| Pivnica | |
| Parkovanie | |
| Terasa |
| Výťah | |
| MHD 1 minúta pešo |
V okolí nehnuteľnosti nájdete
Stále hľadáte to pravé?
Nastavte si strážneho psa. Ponuky vybrané na mieru dostanete súhrnne 1× denne e-mailom. S Premium profilom máte po ruke rovno 5 strážcov a keď sa niečo objaví, informujú vás obratom.

















