
Prenájom bytu 3+1 • 73 m² bez realitkyBredaer Straße 17 Bremen Huchting Bremen 28259
Bredaer Straße 17 Bremen Huchting Bremen 28259MHD 3 minúty pešo • VýťahTento krásny a svetlý 3-izbový byt osloví svojou priateľskou atmosférou na pokojnej lokalite.
Byt je už zariadený a nábytok môže byť v prípade potreby bezplatne prebratý. Ideálny pre páry, malé rodiny alebo spolubývajúcich!
Byt sa nachádza na pokojnej lokalite – obchody, verejná doprava a voľnočasové aktivity sú dosiahnuteľné v priebehu niekoľkých minút.
Vybavenie:
- Nábytok, ktorý môže byť v prípade potreby bezplatne prebratý
- Moderná sprchová kúpeľňa so zavesenou toaletou
- Udržiavaná vstavaná kuchyňa, ktorá môže byť bezplatne prebratá
- Pohodlný kútik v chodbe s prienikom do kuchyne
- Vlastná pivnica s dodatočným úložným priestorom
- Svetlé izby s príjemným rozložením priestoru
- Domáce zvieratá sú vítané
- Vhodné pre spolubývajúcich
Parametre nehnuteľnosti
| Vek | Nad 50 rokov |
|---|---|
| Stav | Dobrý |
| Poschodie | 3. poschodie |
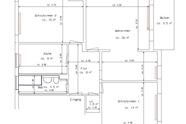
| Úžitková plocha | 73 m² |
| Dostupné od | 5. 12. 2025 |
|---|---|
| Dispozícia | 3+1 |
| Číslo inzerátu | 970744 |
| Cena za jednotku | 12 € / m2 |
Čo táto nehnuteľnosť ponúka?
| Balkón | |
| Výťah |
| Pivnica | |
| MHD 3 minúty pešo |
V okolí nehnuteľnosti nájdete
Stále hľadáte to pravé?
Nastavte si strážneho psa. Ponuky vybrané na mieru dostanete súhrnne 1× denne e-mailom. S Premium profilom máte po ruke rovno 5 strážcov a keď sa niečo objaví, informujú vás obratom.

















