
Inzerát už nie je v ponuke



Prenájom bytuGenerála Janouška, Praha - Černý Most- 3+1
- 80 m²
26 000 CZK + 7 139 CZK28 000 CZK
Ušetríte 2 000 CZK

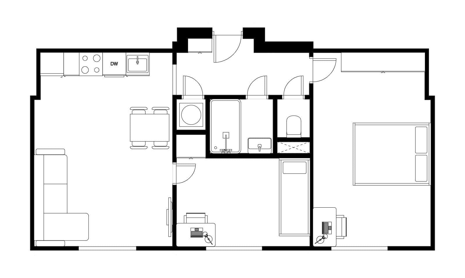
Prenájom bytu 3+kk • 54 m² bez realitkyPúchovská, Praha - Záběhlice
Púchovská, Praha - ZáběhliceČiastočne vybavené • ParkovanieMesačné nájomné21 900 CZKUšetríte 1 600 CZK23 500 CZK
+ Poplatky za služby6 000 CZK
+ Vratná kaucia45 000 CZK
Nabízím pronájem pěkného právě zrekonstruovaného bytu v cihlovém domě, moderně dispozičně řešeném jako 3+kk.
V bytě po rekonstrukci ještě nikdo nebydlel (budete první).
Byt je zařízen novou kuchyňskou linkou s vestavnými spotřebiči (myčka, lednice, mrazák, trouba, sklokeramická deska s digestoří).
Byt se nachází na velmi klidném a hezkém místě Prahy 4 Záběhlice s bezproblémovým parkováním a zároveň s dobrou dostupností do centra města.
Zálohy a poplatky jsou nastaveny vyšší, je počítáno pro dvě, až tři osoby.
Parametre nehnuteľnosti
| Dostupné od | 12. 11. 2025 |
|---|---|
| Výstavba budov | Tehla |
| Vybavené | Čiastočne |
| Číslo inzerátu | 964463 |
| Úžitková plocha | 54 m² |
| Stav | Veľmi dobrý |
|---|---|
| Dispozícia | 3+kk |
| Poschodie | 3. poschodie z 3 |
| Umiestnenie | Tichá časť |
| Cena za jednotku | 406 CZK / m2 |
Čo táto nehnuteľnosť ponúka?
| Parkovanie |
V okolí nehnuteľnosti nájdete
Vzdialenosť k:
Mesačné nájomné21 900 CZKUšetríte 1 600 CZK23 500 CZK
+ Poplatky za služby6 000 CZK
+ Vratná kaucia45 000 CZK
Stále hľadáte to pravé?
Nastavte si strážneho psa. Ponuky vybrané na mieru dostanete súhrnne 1× denne e-mailom. S Premium profilom máte po ruke rovno 5 strážcov a keď sa niečo objaví, informujú vás obratom.



















