Prenájom domu 5+1 • 141 m² bez realitkyBussardstr. 6d Ingolstadt Gerolfing Bayern 85049
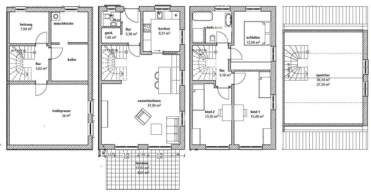
Bussardstr. 6d Ingolstadt Gerolfing Bayern 85049MHD 2 minúty pešo • Parkovanie • GarážKrásny radový dom na konci radu s veľkým obytným priestorom v Ingolstadte-Gerolfing na prenájom. V prízemí najprv vstúpite do chodby. Tu sa nachádza aj hosťovský záchod, veľký, svetlom naplnený obývací priestor a pekná vstavaná kuchyňa (s nízkou odkupu sumou). V hornom poschodí nájdete tri spálne s veľkými oknami a rodinnú kúpeľňu.
A ako vrchol ponúka podkrovie veľkú miestnosť s útulnou viditeľnou krovovou konštrukciou.
Terasa orientovaná na juh s veľkou, pokojnou záhradou a šopka na bicykle a/alebo záhradné náradie slúži pre príjemný pobyt vonku.
Dom je úplne podzemný, pričom k nemu patrí aj ďalšia hobby miestnosť o rozlohe 26 m². Tu sa nachádza aj plynové kúrenie, ktoré je podporené termálnou solárnou inštaláciou.
Zamykateľná garáž a ďalšie parkovacie miesto sú zahrnuté.
Časť mesta Gerolfing sa nachádza na západe Ingolstadu a ponúka všetku potrebnú infraštruktúru, ako sú materská škola, základná škola, možnosti nakupovania či lekárska starostlivosť. Miestny aktívny spoločenský život ponúka mnoho možností, a blízke okolie s dunajskými luhami pozýva na prechádzky alebo kúpanie v miestnom rybníku.
Veľkí zamestnávatelia, ako napríklad Audi alebo Klinikum, sú takmer na rohu.
Radový dom bol postavený kvalitne s atraktívnym interiérovým prevedením.
Vďaka vysokej kvalite stavebného spracovania a solárne podporovanému ohrevu teplej vody môžu byť prevádzkové náklady udržiavané na nízkej úrovni.
Energetický preukaz z roku 2013 uvádza 61,5 kWh/m²·rok (zelená kategória). Momentálne sa pripravuje jeho nová verzia.
Pred obhliadkou považujeme za nevyhnutné, aby záujemcovia poskytli údaje o osôbach, ktoré budú do domu prisťahované, informácie o zamestnávateľoch a ich príjmoch, ako aj informácie o predchádzajúcom nájomnom vzťahu.
Parametre nehnuteľnosti
| Vek | Nad 50 rokov |
|---|---|
| Stav | Dobrý |
| Číslo inzerátu | 964254 |
| Úžitková plocha | 141 m² |
| Celkové poschodia | 3 |
| Dostupné od | 1. 2. 2026 |
|---|---|
| Dispozícia | 5+1 |
| PENB | A - Mimoriadne úsporné |
| Plocha pozemku | 255 m² |
| Cena za jednotku | 12 € / m2 |
Čo táto nehnuteľnosť ponúka?
| Pivnica | |
| Parkovanie | |
| Terasa |
| Garáž | |
| MHD 2 minúty pešo |
V okolí nehnuteľnosti nájdete
Stále hľadáte to pravé?
Nastavte si strážneho psa. Ponuky vybrané na mieru dostanete súhrnne 1× denne e-mailom. S Premium profilom máte po ruke rovno 5 strážcov a keď sa niečo objaví, informujú vás obratom.








