
Predaj bytu 2+kk • 50 m² bez realitkyKomunardů, Praha - Holešovice
Komunardů, Praha - HolešoviceČiastočne vybavené • Výťah • Balkón 1 m² • Pivnica 3 m²Vlastnictví - Osobní
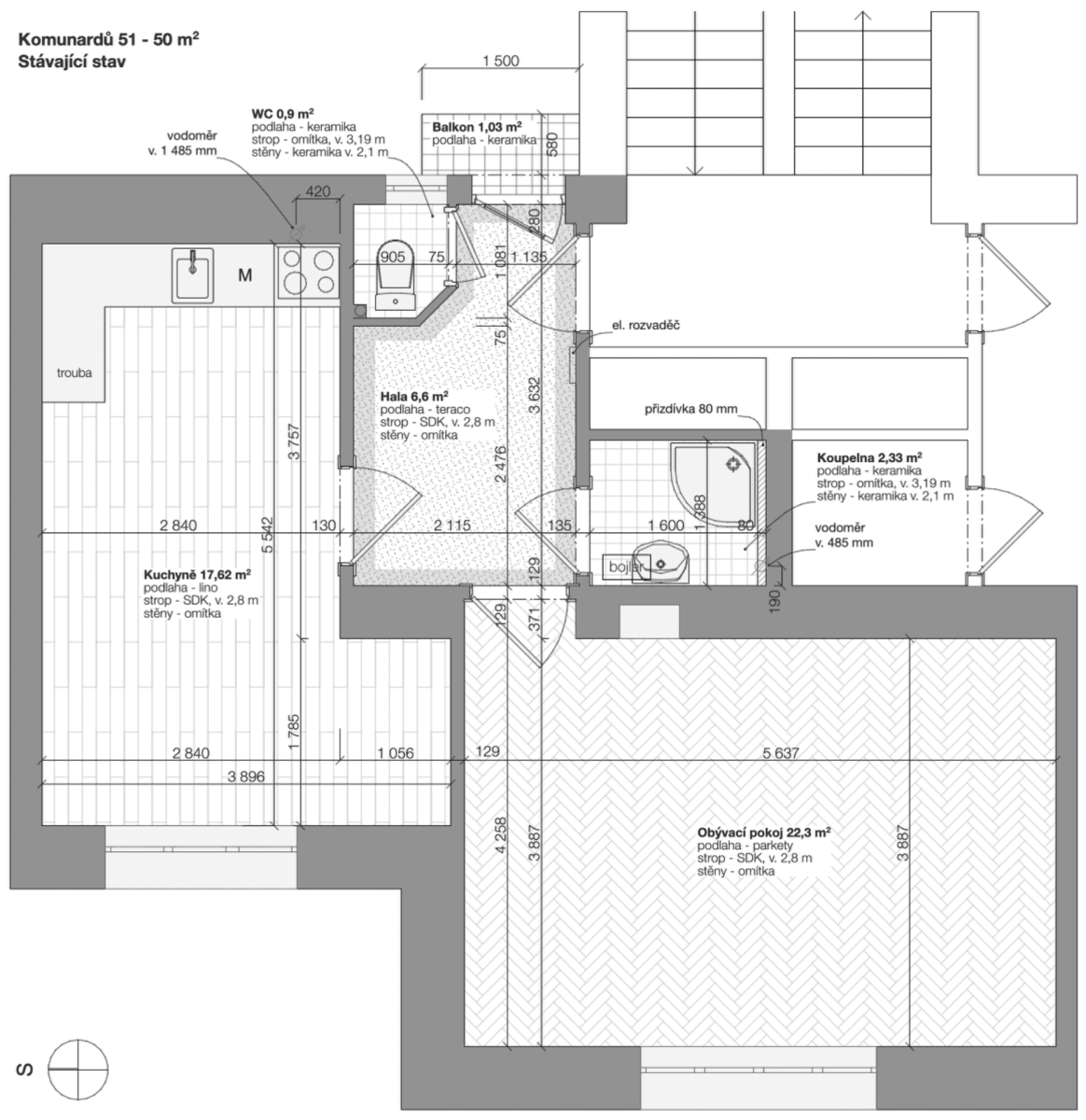
Dispozice - 2+kk
Plocha bytu - 49,8 m2
Podlaží - 4.
Sklep - Ano, viz foto
Vytápění - Nové el. akumulační radiátory, wifi ovládání
Teplá voda - El. bojler
Okna - Plastová, izol. Dvojsklo
Elektroměr - 3 fáze, 3x25A
Rozvody el. - Měď, nedávná rekonstrukce
Balkon - Ano, do prostoru mezi domy
Výtah - Ano, do mezipodesty
Přílohy k prohlídce - bezdlužnost SVJ, PENB, prohlášení vlastníka, list vlastnictví, návrh kupní smlouvy, skutečné zaměření bytu s dispoziční studií, zápis ze shromáždění SVJ za rok 2025, aktuální předpis záloh
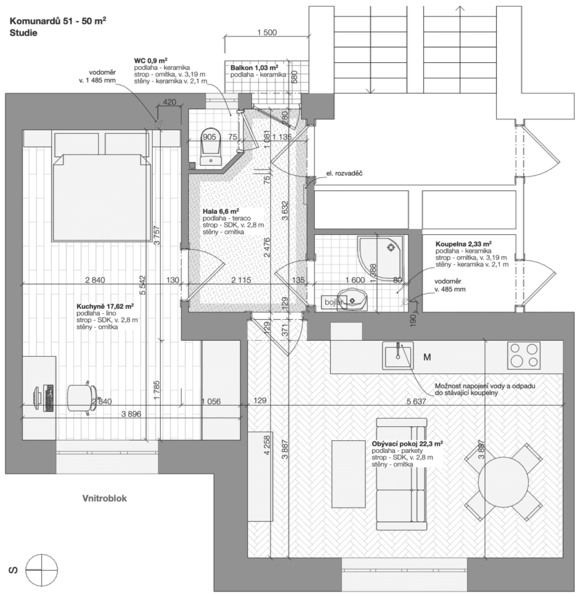
Byt je velmi světlý. Obě obytné místnosti směřují do klidného vnitrobloku se západní orientací. Je po nedávné rekonstrukci (omítky, elektro, kuchyně, okna…) a je možné jeho okamžité užívání. Výšky a rozměry místností, návaznosti dispozice a povrchy jsou popsány v přiložených půdorysech. V obývacím pokoji jsou původní parkety v dobrém stavu. V chodbě je původní teraco, které by chtělo zrenovovat. V kuchyni je stávající linoleum na DTD velkoplošných deskách, které s největší pravděpodobností překrývají původní parkety nebo podlahová prkna - sonda nebyla provedena. Dispozičně je možné přemístit kuchyni do větší obytné místnosti s napojením odpadů a vody do koupelny. Společné prostory domu jsou udržované a čisté s původními povrchy a detaily.
SVJ řádně fungující. Zápis ze shromáždění za rok 2025 k nahlédnutí. Aktuální výše předepsaných záloh je 2 359 Kč (předpis záloh k nahlédnutí)
Jedná se o přímý prodej bez provize realitní kanceláři. Realitní kanceláře prosím nekontaktovat.
Parametre nehnuteľnosti
| Dostupné od | 11. 11. 2025 |
|---|---|
| Konštrukcia budovy | Tehla |
| Vybavené | Čiastočne |
| Prevedenie | Štandardné |
| Číslo inzerátu | 964051 |
| PENB | G - Mimoriadne nehospodárne |
| Úžitková plocha | 50 m² |
| Stav | Dobrý |
|---|---|
| Dispozícia | 2+kk |
| Poschodie | 4. poschodie z 6 |
| Vykurovanie | Elektrické |
| Vlastníctvo | Osobné |
| Umiestnenie | Tichá lokalita |
| Cena za jednotku | 163 000 CZK / m2 |
Čo táto nehnuteľnosť ponúka?
| Balkón 1 m² | |
| Výťah |
| Pivnica 3 m² |
V okolí nehnuteľnosti nájdete
Stále hľadáte to pravé?
Nastavte si strážneho psa. Ponuky vybrané na mieru dostanete súhrnne 1× denne e-mailom. S Premium profilom máte po ruke rovno 5 strážcov a keď sa niečo objaví, informujú vás obratom.
























