
Predaj domu • 159 m² bez realitkyLechenicher Straße 2, , Severné Porýnie - Westfálsko
Lechenicher Straße 2, , Severné Porýnie - WestfálskoMHD 1 minúta pešo • Parkovanie • GarážPonúkaná nehnuteľnosť je obytný a obchodný dom v centrálnej lokalite Bergheim, Lechenicher Straße 2. Budova postavená v roku 1950 zaujme svojou solídnou stavebnou kvalitou a výbornou prenajateľnosťou. Ponúka celkovú plochu približne 278 m² na pozemku s rozlohou okolo 404 m².
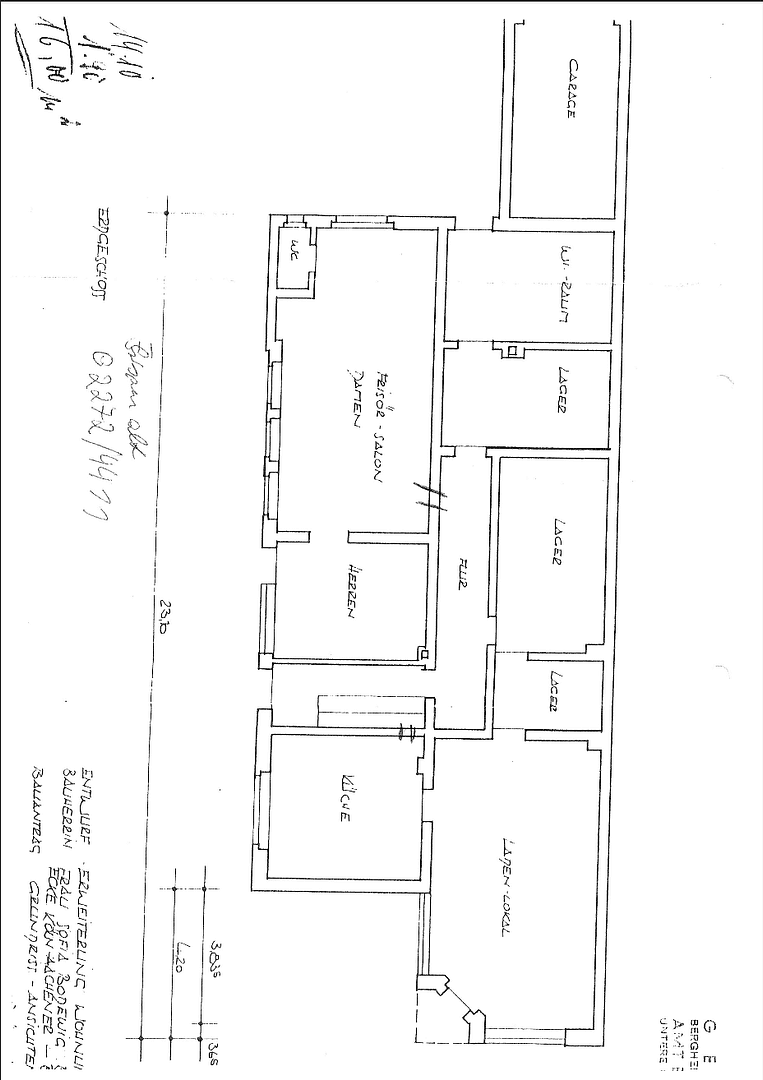
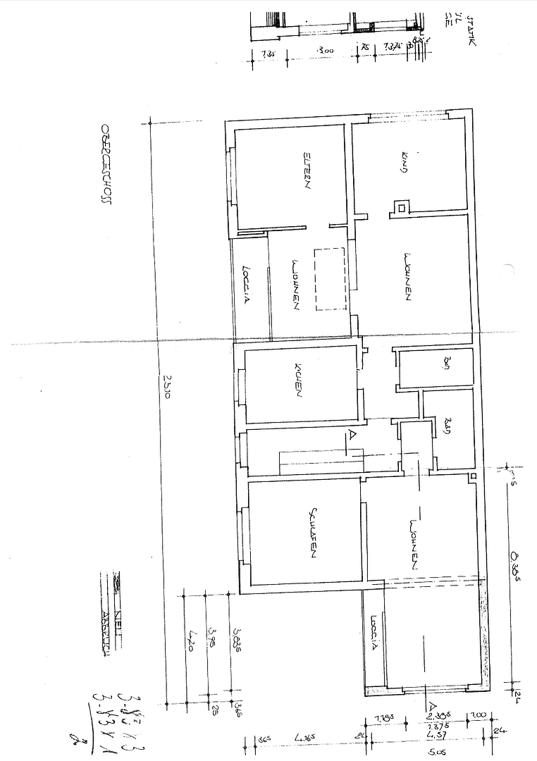
Prízemie zahŕňa dve dobre viditeľné obchodné priestory s celkovou plochou približne 119 m². Výkladné skla poskytujú ideálne prezentačné možnosti a zabezpečujú vysokú návštevnosť zákazníkov. Na horných poschodiach sa nachádzajú tri obytné jednotky s celkovou obytnou plochou približne 159 m² – dvojizbový, trojizbový a jednizbový byt s kuchyňou a kúpeľňou.
Všetky jednotky sú v súčasnosti prenajaté a prinášajú ročný príjem z nájmu vo výške približne 37 000 €. Preto je nehnuteľnosť vynikajúcou investíciou s atraktívnym výnosom. Kúrenie je zabezpečené centrálnym plynovým kúrením.
Budova je čiastočne s podkrovím, čo poskytuje dodatočnú užitkovú plochu. Za domom je k dispozícii garáž a niekoľko parkovacích miest pre automobily.
Poznámka:
K nehnuteľnosti patria dva samostatné energetické preukazy – jeden energetický preukaz pre obytnú časť a druhý pre komerčne využívanú plochu. Obidva preukazy je možné si v prípade záujmu pozrieť. V inzeráte je uložený energetický preukaz pre obytnú časť.
Lokalita na Lechenicher Straße sa vyznačuje dobrou dostupnosťou, vybudovanou infraštruktúrou a stabilným dopytom po obytných a obchodných priestoroch. Obchody, gastronómia, verejná doprava a centrum mesta sú pešo dostupné.
Parametre nehnuteľnosti
| Vek | Nad 50 rokov |
|---|---|
| PENB | G - Mimoriadne nehospodárne |
| Plocha pozemku | 404 m² |
| Cena za jednotku | 4 082 € / m2 |
| Číslo inzerátu | 963934 |
|---|---|
| Úžitková plocha | 159 m² |
| Celkové poschodia | 2 |
Čo táto nehnuteľnosť ponúka?
| Garáž | |
| MHD 1 minúta pešo |
| Parkovanie |
V okolí nehnuteľnosti nájdete
Stále hľadáte to pravé?
Nastavte si strážneho psa. Ponuky vybrané na mieru dostanete súhrnne 1× denne e-mailom. S Premium profilom máte po ruke rovno 5 strážcov a keď sa niečo objaví, informujú vás obratom.






