
Inzerát už nie je v ponuke
Predaj bytu 4+1 • 151 m² bez realitkyBerlin Friedrichshain Berlin 10247
Berlin Friedrichshain Berlin 10247MHD 3 minúty pešoTento mimoriadne priestranný starožitný byt sa nachádza v prízemí typického berlínskeho Gründerzeit domu z roku 1901 – priamo v obľúbenej lokalite pri Forckenbeckparku.
Rekonštruovaná jednotka spája nezameniteľný šarm berlínskeho starého domu s moderným bývacím komfortom. Vysoké stropy, zrekonštruované dvere z Gründerzeit a elegantná dubová parketa v rybiacom vzore vytvárajú v miestnostiach štýlovú atmosféru.
Vďaka dvom vysoko kvalitne vybaveným kúpeľniam a kuchynskym zónam je tento byt ideálny pre rôzne životné štýly – či už ide o priestranné rodinné bývanie, bývanie a home office pod jednou strechou, alebo ako kombinácia s prípojkovým bytom.
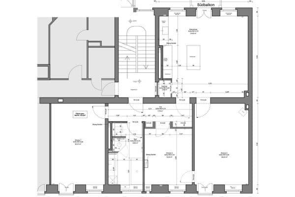
Otvorný pôdorys ponúka maximálnu flexibilitu. Všetky vnútorné steny v jednotke nie sú nosné, takže je možné ľahko realizovať individuálne nápady na bývanie. Prípojkový byt možno jednoducho rozdeliť do dvoch samostatných izieb pomocou ľahkých priečok. (Pozrite si alternatívny pôdorys)
V rámci jadrovej rekonštrukcie boli inštalované nové vodovodné potrubia, radiátory a elektrická inštalácia. Trojnásobne zasklené okná s bezpečnostným sklom zaisťujú príjemný pokoj a energetickú efektívnosť. Kúrenie je zabezpečené moderným spoločným plynovým centrálnym kúrením.
Premyslené vstavané skrine, niekoľko úložných priestorov a samostatná miestnosť na presvliekanie zdôrazňujú vysokú praktickosť tejto jedinečnej nehnuteľnosti.
Domov s dušou a históriou, ideálny na vlastné bývanie alebo ako hodnotná investícia do kapitálu v jednej z najžiadanejších lokalít Friedrichshain.
Nehnuteľnosť sa nachádza v obľúbenej časti Berlína – vo Friedrichshain.
Práve pri Forckenbeckparku môžete vyjsť von a okamžite si vychutnať prírodu. V bezprostrednom okolí sa nachádza množstvo kaviarní, reštaurácií, lekární a obchodov s bežným tovarom, ako aj módnych obchodov, kníhkupectiev a fitness centier.
Friedrichshain, charakterizovaný pestrou, živou a kreatívnou scénou, patrí medzi najobľúbenejšie obytné štvrte v Berlíne. Tu rekonstrukcie starých budov s umeleckými fasádami, ale aj najmodernejšie novostavby, ponúkajú atraktívne bývanie, ktoré navyše so svojou polohou v tesnej blízkosti Berlína-Mitte a Prenzlauer Berg predstavuje ideálnu lokalitu. Kultúrnym vrcholom je nedaleko pamätník znovuzjednotenia – East Side Gallery a veľmi obľúbený Volkspark Friedrichshain.
Pokojné bývanie v blízkosti parku je tu doplnené mimoriadne dobrou obchodnou a dopravnou infraštruktúrou, ako aj živým životom v lokalite – ideálna lokalita pre podnikavých mestoľudí.
K električke sa dostanete pešo za 2 minúty, k S-Bahn za 8 minút a k U-Bahn za 10 minút.
- Dom z prelomu storočí / Gründerzeit
- Jadro rekonštruovanej jednotky – posledná rekonštrukcia v roku 2018
- 3,50 m vysoké stropy
- Dôkladne zrekonštruované dvere z éry Gründerzeit
- Spojitá parketa v rybiacom vzore / masívny dub
- Nové trojnásobne zasklené izolačné okná s bezpečnostným sklom
- Nové radiátory a rozvody
- Nové vodovodné potrubia a nová elektroinštalácia (vhodná pre smart home)
- Nové centrálny kúrenie z roku 2021
- Vonkajšie rolety
- Dve kúpeľne a dve kuchyne
- Veľké vstavané skrine
- Úložné priestory a skladovacie miestnosti
- Pokojne situované v bočnom krídle s priamym, dodatočným vstupom do hlavnej budovy
- Možnosť odloženia bicykla vo vnútornom dvore a v suteréne
Ak sme vo vás vzbudili záujem o kúpu, prosíme, zažiadajte o náš propagačný materiál, v ktorom nájdete ešte viac fotografií, informácií a zaujímavú históriu tejto nehnuteľnosti.
Ak si želáte dohodnúť prehliadku, kontaktujte nás prosím a uveďte vaše meno, adresu a e-mailovú adresu.
Keďže predaj prebieha súkromne, prosíme, aby ste nás pred prehliadkou krátko informovali, či už bola vaša finančná situácia preverovaná alebo zabezpečená. Vaše údaje budeme považovať za prísne dôverné a v žiadnom prípade nebudú zdieľané s tretími stranami.
Ďakujeme vám za pochopenie – chceme tak ušetriť nielen si, ale aj vám zbytočné cesty.
Parametre nehnuteľnosti
| Vek | Nad 50 rokov |
|---|---|
| Dispozícia | 4+1 |
| PENB | E - Nehospodárne |
| Cena za jednotku | 5 954 € / m2 |
| Stav | Po rekonštrukcii |
|---|---|
| Číslo inzerátu | 963051 |
| Úžitková plocha | 151 m² |
Čo táto nehnuteľnosť ponúka?
| MHD 3 minúty pešo |
V okolí nehnuteľnosti nájdete
Stále hľadáte to pravé?
Nastavte si strážneho psa. Ponuky vybrané na mieru dostanete súhrnne 1× denne e-mailom. S Premium profilom máte po ruke rovno 5 strážcov a keď sa niečo objaví, informujú vás obratom.
