
Prenájom bytu 3+1 • 98 m² bez realitkyBratislavská, Brno - Zábrdovice, Jihomoravský kraj
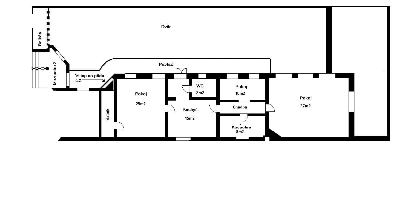
Nabízím k pronájmu nově rekonstruovaný 3+1 byt o rozloze 98 m², situovaný v cihlové budově. Tento prostorný byt je částečně vybavený, což umožní přizpůsobení dle vlastních představ. Byt se nachází v prvním mezipatře ze samostatným vchodem přes pavlač s výhledem do dvora.
Zvláštní předností této nemovitosti je prostorný balkón o rozloze 30 m², který nabízí ideální místo k relaxaci či posezení při příjemném počasí. Nemovitost je určena pouze pracujícím nebo studentům bez zvířat. V areálu nejsou řešeny parkovací možnosti, garáž, výtah ani bezbariérový přístup, což je třeba vzít v úvahu.
V případě zájmu mě oslovte prostřednictvím zpráv na této komunikační platformě.
Parametre nehnuteľnosti
| Dostupné od | 1. 4. 2026 |
|---|---|
| Konštrukcia budovy | Tehla |
| Vybavené | Čiastočne |
| Vykurovanie | Plynové |
| Rekonštrukcia | Interiér |
| Úžitková plocha | 98 m² |
| Stav | Dobrý |
|---|---|
| Dispozícia | 3+1 |
| Poschodie | Prízemie |
| Číslo inzerátu | 956886 |
| Umiestnenie | Centrum mesta |
| Cena za jednotku | 153 CZK / m2 |
Čo táto nehnuteľnosť ponúka?
| Balkón 30 m² |
| MHD 3 minúty pešo |
V okolí nehnuteľnosti nájdete
Stále hľadáte to pravé?
Nastavte si strážneho psa. Ponuky vybrané na mieru dostanete súhrnne 1× denne e-mailom. S Premium profilom máte po ruke rovno 5 strážcov a keď sa niečo objaví, informujú vás obratom.








