
Predaj domu • 350 m² bez realitkyPraha - Újezd u Průhonic
Praha - Újezd u PrůhonicČiastočne vybavené • Parkovanie • Terasa 35 m²Exkluzivní nabídka – Prodej nemovitosti s projektem přestavby na bytový dům v Praze 4 – Újezd u Průhonic
Nabízíme exkluzivně k prodeji nemovitost s projektem přestavby rodinného domu na bytový dům v atraktivní lokalitě Praha 4 – Újezd u Průhonic. Projekt počítá s vybudováním 12 bytových jednotek.
Stávající rodinný dům o dispozici 6+kk a celkové podlahové ploše cca 350 m² je situován na rozsáhlém, pečlivě udržovaném pozemku o výměře 1.388 m². Nachází se na parcelách č. 233/14 a 233/31 (č.p. 524/11) a je kompletně napojen na technickou i dopravní infrastrukturu.
Projektová dokumentace zahrnuje nástavbu, přístavbu, stavební úpravy a změnu užívání stávajícího rodinného domu na bytový dům. V současné době probíhá sloučené územní řízení a stavební povolení. Pozemek je dle územního plánu veden jako čistě obytné území (OB–C).
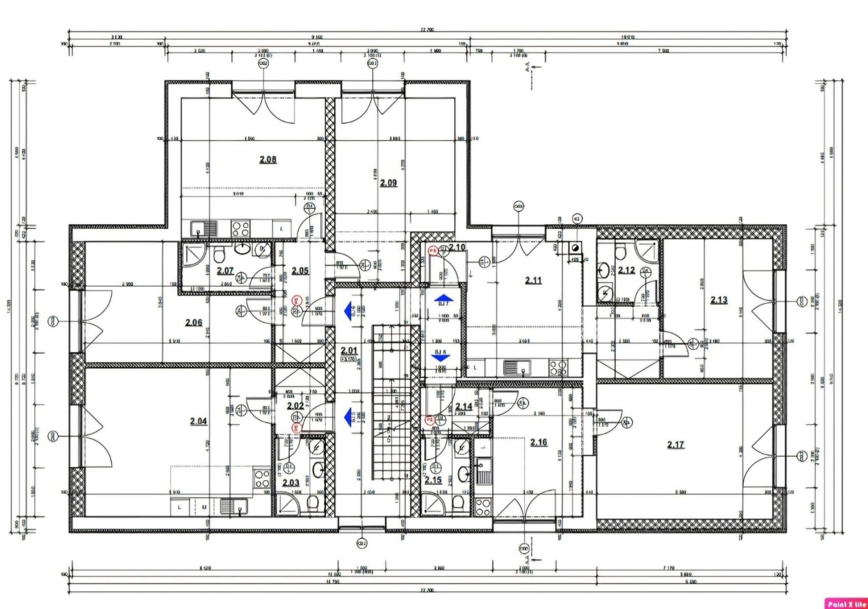
Hlavní parametry projektu:
• Počet nadzemních podlaží: 3
• Celková zastavěná plocha: 265,3 m²
• Zpevněná plocha: 452,2 m²
• Zelená plocha: 877,5 m²
• Užitná plocha jednotlivých podlaží:
1.NP – 203,12 m²
2.NP – 214,53 m²
3.NP – 216,15 m²
Celkem: 633,80 m²
• Funkční plocha budovy: 795,9 m²
• Obestavěný prostor: 2 632 m³
• Počet bytových jednotek: 12
• Počet parkovacích míst: 12 (včetně 1 místa pro osoby se zdravotním postižením)
Projektová dokumentace je aktuálně ve fázi finálních úprav a přípravy k podání žádosti o stavební povolení. Kompletní dokumentaci rádi zašleme na vyžádání.
Lokalita – Újezd u Průhonic
Újezd u Průhonic, spadající pod okres Praha-východ, je malebná obec obklopená rybníky a lesy, ideální pro klidné bydlení i rekreaci. V bezprostřední blízkosti se nachází Průhonický park, národní kulturní památka a jeden z největších a nejkrásnějších krajinářských parků v České republice.
Obec nabízí kompletní občanskou vybavenost – potraviny, restaurace, poštu, zdravotní středisko, školy, školky i volnočasová zařízení. Výborná dopravní dostupnost do centra Prahy a napojení na dálnici D1 zajišťují pohodlné spojení s hlavním městem i okolím. V okolí se dále nachází golfové hřiště, aquapark, wellness centrum, cyklostezky a sportoviště.
Exclusive Offer – Sale of Property with a Project for Converting into an Apartment Building in Prague 4 – Újezd u Průhonic
We are exclusively offering for sale a property with a project for converting a family house into an apartment building in the attractive location of Prague 4 – Újezd u Průhonic. The project includes the construction of 12 apartment units.
The existing family house, with a layout of 6+kk and a total floor area of approximately 350 m², is situated on an extensive, meticulously maintained plot covering 1,388 m². It is located on parcels no. 233/14 and 233/31 (parcel no. 524/11) and is fully connected to both technical and transportation infrastructure.
The project documentation includes an extension, an annex, structural modifications, and a change of use of the existing family house to an apartment building. Joint spatial planning and building permits are currently underway. According to the zoning plan, the plot is designated as purely residential area (OB–C).
Main parameters of the project:
• Number of above-ground floors: 3
• Total built-up area: 265.3 m²
• Paved area: 452.2 m²
• Green area: 877.5 m²
• Usable area of individual floors:
1st floor – 203.12 m²
2nd floor – 214.53 m²
3rd floor – 216.15 m²
Total: 633.80 m²
• Functional area of the building: 795.9 m²
• Enclosed volume: 2,632 m³
• Number of apartment units: 12
• Number of parking spaces: 12 (including 1 space for persons with disabilities)
The project documentation is currently in the final stages of adjustment and preparation for the submission of a building permit application. We will be happy to send the complete documentation upon request.
Location – Újezd u Průhonic
Újezd u Průhonic, which falls under the district of Prague-East, is a picturesque village surrounded by ponds and forests, making it ideal for peaceful living and recreation. In its immediate vicinity is the Průhonice Park, a national cultural monument and one of the largest and most beautiful landscaped parks in the Czech Republic.
The municipality offers complete civic amenities – groceries, restaurants, a post office, a health center, schools, kindergartens, and leisure facilities. Excellent transportation access to the center of Prague and connection to the D1 highway ensure convenient links to the capital and its surroundings. In the area, you will also find a golf course, an aquapark, a wellness center, cycle paths, and sports facilities.
Parametre nehnuteľnosti
| Dostupné od | 17. 10. 2025 |
|---|---|
| Výstavba budov | Tehla |
| Vybavené | Čiastočne |
| Vlastníctvo | Osobné |
| Poloha domu | Oddelené stránky |
| Plocha pozemku | 1 388 m² |
| Stav | Dobrý |
|---|---|
| Dispozícia | Ostatné |
| Číslo inzerátu | 956292 |
| PENB | G - Mimoriadne nehospodárne |
| Úžitková plocha | 350 m² |
| Cena za jednotku | 76 543 CZK / m2 |
Čo táto nehnuteľnosť ponúka?
| Parkovanie |
| Terasa 35 m² |
V okolí nehnuteľnosti nájdete
Stále hľadáte to pravé?
Nastavte si strážneho psa. Ponuky vybrané na mieru dostanete súhrnne 1× denne e-mailom. S Premium profilom máte po ruke rovno 5 strážcov a keď sa niečo objaví, informujú vás obratom.














