
Prenájom bytu 2+kk • 48 m² bez realitkyWerichova, Praha - Hlubočepy
Nabízím k pronájmu světlý a moderní byt 2+kk v novostavbě z r. 2005. Dům se nachází na Barrandově, u tramvajové zastávky Náměstí Olgy Scheinpflugové, na okraji klidné a pěkné residenční čtvrti.
V docházkové vzdálenosti občanská vybavenost (supermarket, restaurace, kavárna, aquapark, poliklinika, základní škola) a přírodní park Prokopské údolí.
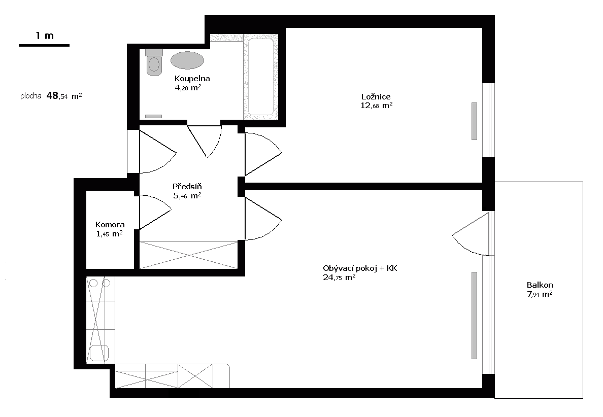
Byt má obývací pokoj 25 m² s kuchyňskou linkou, ložnici 12 m², předsíň s vestavěnou skříní, koupelnu s toaletou a vanou a komoru 1,5 m². K bytu náleží sklep o rozloze 2 m² v přízemí budovy.
Kuchyňská linka je vybavena indukční varnou deskou, troubou, digestoří, myčkou nádobí, mikrovlnnou troubou, lednicí a mrazákem.
Z obývacího pokoje se vchází na velký balkon. Okna i balkon jsou obráceny východním směrem do atria s přístupného pouze obyvatelům domu.
Pronájem parkovacího místa možný, příplatek +1000 Kč.
I am offering for rent a bright and modern one-bedroom apartment in a new building from 2005. The building is located in Barrandov, near the Náměstí Olgy Scheinpflugové tram stop, on the edge of a quiet and pleasant residential area.
Within walking distance you will find various amenities (supermarket, restaurant, café, aquapark, polyclinic, elementary school) as well as the Prokopské Valley natural park.
The apartment features a 25 m² living room with a kitchenette, a 12 m² bedroom, a hallway with a built-in wardrobe, a bathroom with a toilet and bathtub, and a 1.5 m² storage room. Additionally, the apartment comes with a 2 m² basement storage room located on the ground floor of the building.
The kitchen is equipped with a stovetop, oven, extractor hood, dishwasher, microwave, and a refrigerator with freezer.
From the living room there is access to a large balcony. The apartment faces an atrium that is accessible only to the building’s residents, and the windows face east.
Parking space optional for +CZK 1000/month.
Parametre nehnuteľnosti
| Vek | 10 - 30 rokov |
|---|---|
| Stav | Novostavba |
| Dispozícia | 2+kk |
| Poschodie | 4. poschodie z 5 |
| Vykurovanie | Ústredné |
| Vlastníctvo | Osobné |
| Umiestnenie | Sídlisko |
| Cena za jednotku | 447,92 CZK / m2 |
| Dostupné od | 13. 4. 2026 |
|---|---|
| Konštrukcia budovy | Skeletová |
| Vybavené | Nevybavené |
| Prevedenie | Štandardné |
| Číslo inzerátu | 936910 |
| PENB | C - Hospodárne |
| Úžitková plocha | 48 m² |
Čo táto nehnuteľnosť ponúka?
| Balkón 8 m² | |
| Pivnica 2 m² | |
| Parkovanie |
| Bezbariérový prístup | |
| Výťah | |
| Domáci miláčikovia vítaní |
V okolí nehnuteľnosti nájdete
Stále hľadáte to pravé?
Nastavte si strážneho psa. Ponuky vybrané na mieru dostanete súhrnne 1× denne e-mailom. S Premium profilom máte po ruke rovno 5 strážcov a keď sa niečo objaví, informujú vás obratom.


















