
Prenájom bytu 2+kk • 54 m² bez realitkyBratislavská, Praha - Hostivař
K dlouhodobému pronájmu nabízíme prostorný byt 2+kk (54,6 m²) v klidné lokalitě Praha 10 – Hostivař, Slunečný vršek. Pronájem přímo od majitele, bez provize.
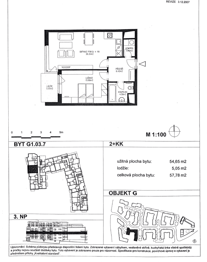
Byt se nachází ve 3. patře a součástí nájmu je kryté garážové stání a sklep.
Byt je nezařízený – zůstává pouze skříň v ložnici a jídelní stůl se židlemi v kuchyni. Pračka, sušička i myčka z fotografií nejsou součástí vybavení, vše instaloval nájemce na svoje náklady (po dohodě lze ponechat erární pračku).
Dispozice: neprůchozí ložnice, obývací pokoj s kuchyňským koutem, koupelna s WC, samostatná komora s přípojkou na pračku a balkon. Součástí bytu je kuchyňská linka s elektrickým sporákem, troubou a lednicí. Ohřev teplé vody v kuchyni je řešen samostatným ohřívačem pod dřezem, plně funkční.
Měsíční nájem činí 21 000 Kč, poplatky 3500 Kč + elektřina se převádí na nájemníka cca 1500 Kč. Vratná kauce je stanovena na 21 000 Kč. Internet si nájemce zařizuje sám. Byt bude k dispozici od 1. března 2026 nebo po dohodě i dřívě (nájemnice spěchá na odstěhování).
Prohlídky budou možné v odpoledních hodinách nebo o víkendu po domluvě s vybranými zájemci.
V okolí najdete veškerou občanskou vybavenost a Hostivařský lesopark s vodní nádrží, ideální pro procházky, sport a odpočinek. Lokalita nabízí skvělou dostupnost do centra města.
Parametre nehnuteľnosti
| Dostupné od | 1. 3. 2026 |
|---|---|
| Konštrukcia budovy | Tehla |
| Vybavené | Nevybavené |
| Číslo inzerátu | 881811 |
| PENB | G - Mimoriadne nehospodárne |
| Úžitková plocha | 54 m² |
| Stav | Veľmi dobrý |
|---|---|
| Dispozícia | 2+kk |
| Poschodie | 3. poschodie z 5 |
| Vlastníctvo | Osobné |
| Umiestnenie | Tichá lokalita |
| Cena za jednotku | 389 CZK / m2 |
Čo táto nehnuteľnosť ponúka?
| Balkón 5,85 m² | |
| Pivnica 2 m² | |
| Výťah |
| Bezbariérový prístup | |
| Garáž |
V okolí nehnuteľnosti nájdete
Stále hľadáte to pravé?
Nastavte si strážneho psa. Ponuky vybrané na mieru dostanete súhrnne 1× denne e-mailom. S Premium profilom máte po ruke rovno 5 strážcov a keď sa niečo objaví, informujú vás obratom.


















