
Prenájom bytu • 112 m² bez realitkyRybná, Praha - Staré Město
Rybná, Praha - Staré MěstoMHD 1 minúta pešo • Vybavené • VýťahNájom a poplatky platia pre prenájom na 12 mesiacov. Túto ponuku je však možné prenajať cez Flatio už od 1 mesiaca. Administratívny poplatok je pre kratšie prenájmy nižší. Prenájmy kratšie ako 6 mesiacov sú vždy bez kaucie.
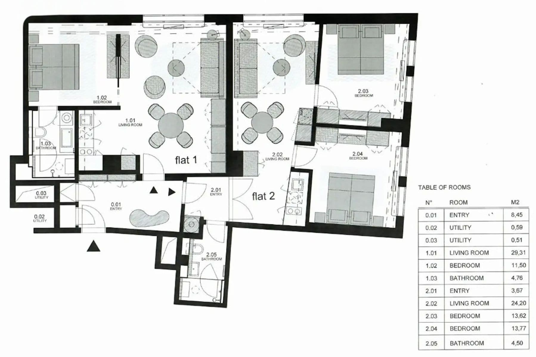
Spacious Combined Apartment in Old Town. This unique rental option consists of two modern apartments with a shared entrance, offering a perfect solution for larger groups or families seeking a combination of privacy and shared living space.
One-Bedroom Apartment
The first apartment features a bright and cozy one-bedroom layout, complete with a king-size bed for ultimate comfort. The living area includes a comfortable sofa and a flat-screen TV, seamlessly connected to a fully equipped kitchen with a dining table. A sleek bathroom with a walk-in shower completes this elegant space, making it ideal for couples or individuals seeking privacy.
Two-Bedroom Apartment
The second apartment is larger, featuring two spacious bedrooms with king-size beds. The open-plan living room offers a cozy sofa and a TV, perfect for unwinding after a day exploring Prague. This space connects to a modern kitchen with a dining table, fully equipped for preparing meals and entertaining. A stylish bathroom with a walk-in shower adds convenience to this comfortable layout.
Whether rented together or individually, these apartments provide a modern, hotel-style experience with all the comforts of home in the heart of Prague.
Parametre nehnuteľnosti
| Dostupné od | 8. 5. 2026 |
|---|---|
| Poschodie | 3. poschodie |
| Umiestnenie | Tichá lokalita |
| Cena za jednotku | 1 085,28 CZK / m2 |
| Vybavené | Vybavené |
|---|---|
| Číslo inzerátu | 879791 |
| Úžitková plocha | 112 m² |
Čo táto nehnuteľnosť ponúka?
| Výťah |
| MHD 1 minúta pešo |
V okolí nehnuteľnosti nájdete
Nájom a poplatky platia pre prenájom na 12 mesiacov. Túto ponuku je však možné prenajať cez Flatio už od 1 mesiaca. Administratívny poplatok je pre kratšie prenájmy nižší. Prenájmy kratšie ako 6 mesiacov sú vždy bez kaucie.
Stále hľadáte to pravé?
Nastavte si strážneho psa. Ponuky vybrané na mieru dostanete súhrnne 1× denne e-mailom. S Premium profilom máte po ruke rovno 5 strážcov a keď sa niečo objaví, informujú vás obratom.






























