
Inzerát už nie je v ponuke
Predaj bytu 1+1 • 51 m² bez realitkyNáplavní, Praha - Nové Město
Náplavní, Praha - Nové MěstoMHD 2 minúty pešo • VýťahHledáte byt v atraktivní lokalitě v centru Prahy v klidné ulici v blízkosti Národního divadla (5min chůze), Náplavky (2min chůze), Tančícího domu (2min chůze) s dobrou dopravní dostupností? Přímý majitel nabízí k prodeji byt 1+1kk, 51,5 m2, s předsíní a balkonem. Byt se nachází v 1. nadzemním podlaží v secesním domě po rekonstrukci s výtahem. Má původní dřevěné parkety, secesní okna s originálními kličkami, secesní dveře s mosaznými klikami, vysoké stropy (3,2m), orientován je na JV-JZ, je vzdušný a světlý.
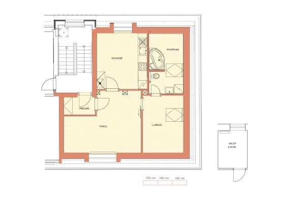
Po vstupu do bytu se před Vámi otevře předsíň, ze které vedou dveře do obou místností, koupelny a WC. Vpravo vejdeme do prostorného světlého pokoje orientovaného na JV se štukovým stropem a původním secesním dřevěným reliéfem nad vstupními dveřmi. Z předsíně se vchází do koupelny s rohovou vanou a WC. Vlevo od vstupních dveří se nachází obytná kuchyň s balkonem orientovaným do klidného vnitrobloku. Ke kuchyni přiléhá komora, oddělená dveřmi s vlastním oknem. Byt je vytápěn samostatným elektrickým kotlem Kuchyň je vybavena kombinovaným sporákem plyn/elektro, pračkou a myčkou. S bytem je spojeno výlučné užívání nově zbudované uzamykatelné sklepní kóje. V domě se nachází prostory k uložení kočárků, jízdních kol a obdobného vybavení.
Kdo miluje panorama Prahy si nesmí nechat ujít vyhlídku z terasy Tančícího domu. Milovníci kultury ocení blízkost výstavní síně Mánes, od které se krátkou procházkou podél Vltavy dostanete až k Národnímu divadlu. Pokud spíše preferujete dobré jídlo a nevšední gastronomické zážitky, doporučujeme navštívit nedalekou Náplavku s krásnými bary a kavárnami přímo u Vltavy. O víkendu pak můžete zažít autentickou atmosféru nejvyhledávanějších farmářských trhů v Praze. Klidné chvíle v zeleni můžete strávit v krásném parku na ostrově Žofín nebo na Karlově náměstí, kde najdete zábavu i pro svoje ratolesti na dětském hřišti. Po dlouhém dni plném zážitků si můžete užít rodinnou atmosféru v místní útulné vinárně, která se nachází přímo v přízemí domu.
Nevyhovuje Vám velikost nebo uspořádání bytu? V naší další inzerci zjistíte, že ve stejném domě můžete zakoupit i jiné byty.
Looking for an apartment in the most popular location in the heart of Prague, but at the same time calm and peaceful, near the National Theatre (5min walk), Náplavka (2min walk), the Dancing House (2 min) and the best public transport access?
A direct owner offers a 1+1 apartment for sale, 51,5 m2, with a spacious hall and a balcony. The apartment is located on the 1st floor of a freshly renovated Art Nouveau building with a lift. It has the original wooden parquet floors, Art Nouveau windows with original hinges, doors with brass handles and high ceilings (3,2m). Facing south-east and south-west the apartment is really airy and bright.
From the entrance you will walk into the hall which will lead you to both rooms, a bathroom and a toilet. On the right hand side there is an entrance to a spacious and bright room facing south-east, which has a stucco ceiling and the original Art Nouveau wooden relief above the entrance. From the hall you can access a separate toilet and a bathroom with a corner bathtub. On the right from the entrance you will find a kitchen with a balcony facing the inner courtyard. Adjacent to the kitchen there is a utility room with a window. The kitchen is equipped with a combined gas/electric stove cooker, a washing machine and a dishwasher.
The heating system is a separate gas boiler with a thermostat, also providing water heating.
A newly-built locked cellar cubicle is also available for individual use as a part of the apartment. The building also offers shared units for storing bicycles, prams, etc.
Those who love the Prague city panorama cannot miss the view form the Dancing House terrace. The art lovers will appreciate the neighborhood of Manes gallery from which you can enjoy just a short walk along Vltava river which will bring you to the National Theater. Should you prefer fine dining and exceptional gastronomy, we recommend a visit to Náplavka where you can find original bars and cafes on Vltava bank. At the weekends you will surely appreciate the authentic atmosphere of the most well known farmers market in the city. You can also enjoy the quiet green areas in the Žofín island park or in Karlově náměstí, where even the youngest generation will be able to enjoy themselves on one of many kids playgrounds. After a long and exhausting day you will find some peace and family atmosphere in the local cozy wine cellar located directly on the ground floor of the building.
If you are not fully satisfied with the size or layout of the apartment, have a look at other offers of apartments available for sale in the same building.
Parametre nehnuteľnosti
| Dostupné od | 17. 9. 2022 |
|---|---|
| Konštrukcia budovy | Tehla |
| Vybavené | Nevybavené |
| Číslo inzerátu | 740964 |
| Umiestnenie | Tichá lokalita |
| Cena za jednotku | 161 569 CZK / m2 |
| Stav | Veľmi dobrý |
|---|---|
| Dispozícia | 1+1 |
| Poschodie | 1. poschodie z 7 |
| PENB | G - Mimoriadne nehospodárne |
| Úžitková plocha | 51 m² |
Čo táto nehnuteľnosť ponúka?
| Balkón | |
| Výťah |
| Pivnica | |
| MHD 2 minúty pešo |
V okolí nehnuteľnosti nájdete
Stále hľadáte to pravé?
Nastavte si strážneho psa. Ponuky vybrané na mieru dostanete súhrnne 1× denne e-mailom. S Premium profilom máte po ruke rovno 5 strážcov a keď sa niečo objaví, informujú vás obratom.




