
Prenájom bytu 2+kk • 54 m² bez realitkyLipůvka - Lipůvka, Jihomoravský kraj
Nabízíme k pronájmu byt 2+kk, nacházející se v centru obce Lipůvka.
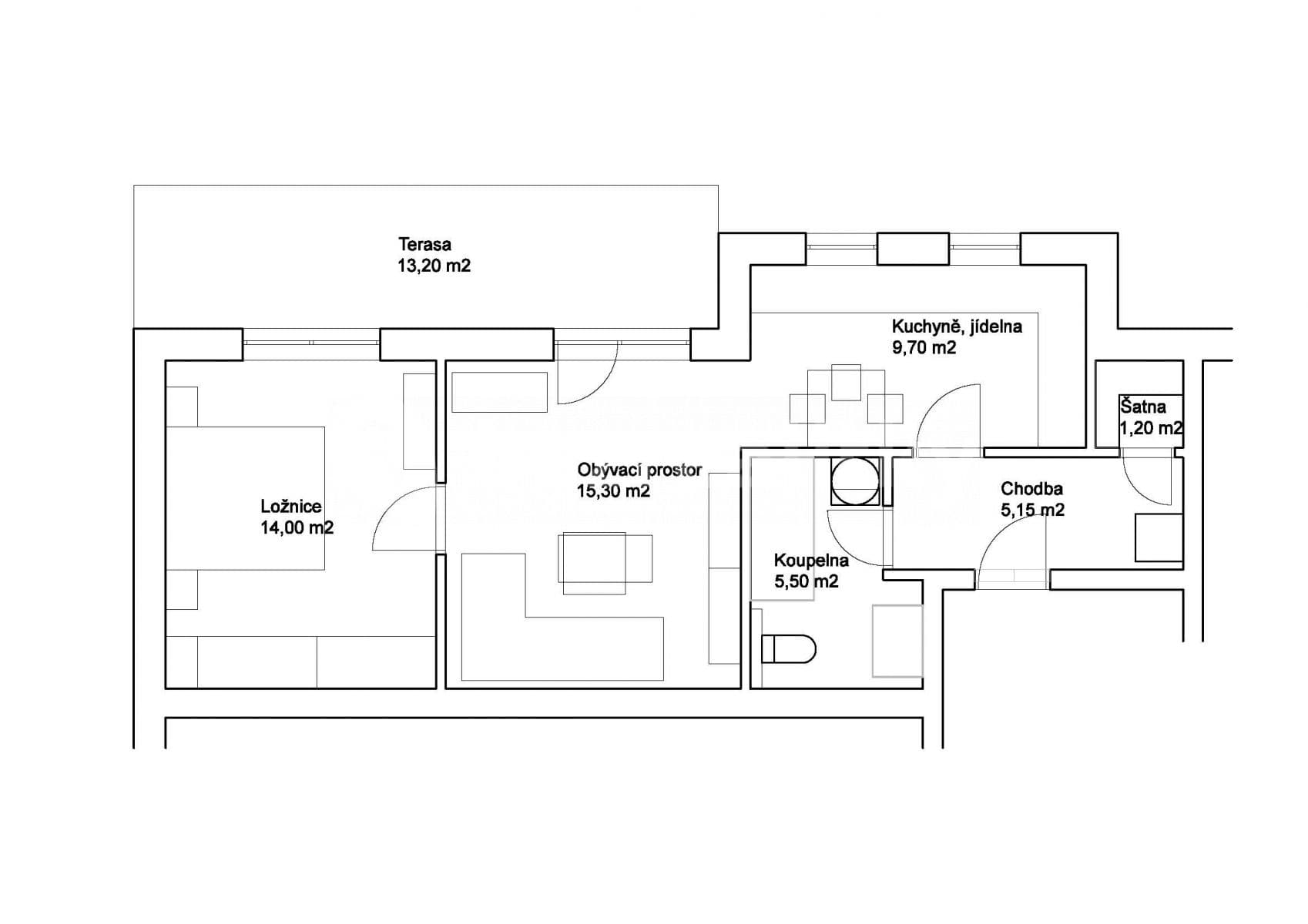
Byt se nachází v přízemí, bezbariérový vstup. Jedná se o moderní, slunný byt s výměrou 54,00 m2. K bytu náleží terasa - 13,2 m2 s orientací na východ.
Byt je plně vybavený (kompletní kuchyně včetně spotřebičů, vestavěné skříně, postel, televize, sedací souprava, pračka se sušičkou,..). Součástí pronájmu je i sklepní kóje. Parkování je zajištěno na parkovacích plochách před objektem, kde je situováno i dětské hřiště.
Nájem činí 15.250,- / měsíčně + 3.500,- zálohy na energie / měsíčně. Termín nastěhování od 01.03.2026.
Parametre nehnuteľnosti
| Dostupné od | 1. 3. 2026 |
|---|---|
| Konštrukcia budovy | Tehla |
| Vybavené | Vybavené |
| Vykurovanie | Plynové |
| Vlastníctvo | Osobné |
| Umiestnenie | Tichá lokalita |
| Cena za jednotku | 282 CZK / m2 |
| Stav | Veľmi dobrý |
|---|---|
| Dispozícia | 2+kk |
| Poschodie | 1. poschodie |
| Číslo inzerátu | 650639 |
| PENB | C - Hospodárne |
| Úžitková plocha | 54 m² |
Čo táto nehnuteľnosť ponúka?
| Bezbariérový prístup | |
| MHD 3 minúty pešo |
| Pivnica 3 m² | |
| Terasa 15 m² |
V okolí nehnuteľnosti nájdete

Prenájom bytuNa kovárně, Brno - Soběšice, Jihomoravský kraj- 2+kk
- 50 m²
16 000 CZK + 4 000 CZK17 000 CZK
Ušetríte 1 000 CZK
Prenájom bytuTkalcovská, Brno - Zábrdovice, Jihomoravský kraj- 2+kk
- 43 m²
15 000 CZK + 5 000 CZK17 500 CZK
Ušetríte 2 500 CZK
Prenájom bytuŠkolní, Rájec-Jestřebí - Rájec nad Svitavou, Jihomoravský kraj- 3+kk
- 55 m²
16 000 CZK + 3 500 CZK

Stále hľadáte to pravé?
Nastavte si strážneho psa. Ponuky vybrané na mieru dostanete súhrnne 1× denne e-mailom. S Premium profilom máte po ruke rovno 5 strážcov a keď sa niečo objaví, informujú vás obratom.










