
Prenájom bytu 1+kk • 26 m² bez realitkyPřístavní, Praha - Holešovice
Velmi pěkný světlý byt 1+kk, 26 m2, v přízemí domu s okny do vnitrobloku (zde se jedná o 1. patro). Jedná se o nabídku přímo od majitele – neplatíte provizi!
Klidné bydlení v prvorepublikovém funkcionalistickém domě v ulici Přístavní 25, Praha 7-Holešovice.
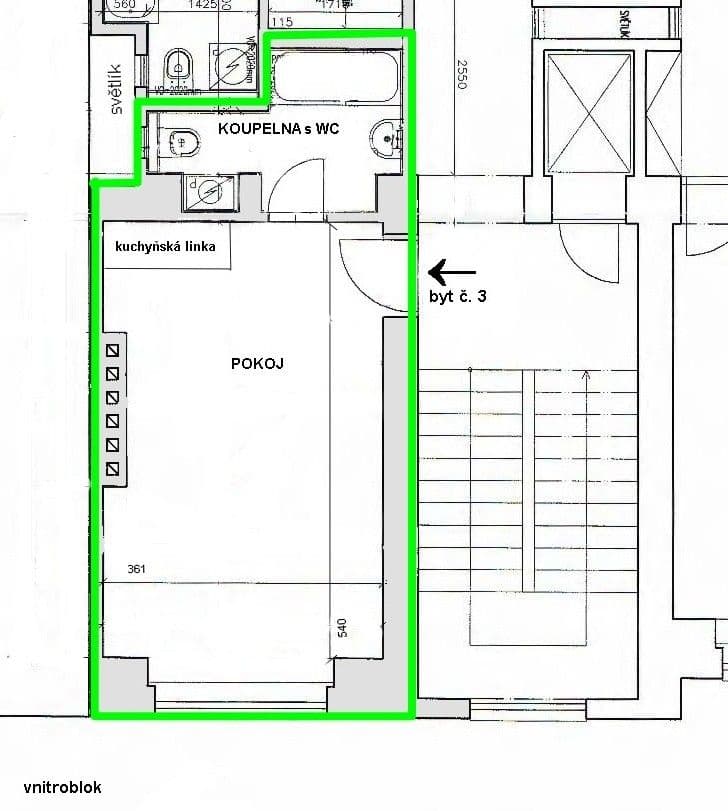
Byt je po celkové rekonstrukci. V bytě je dřevěná podlaha kombinovaná s dlažbou, kuchyňská linka s el. varnou deskou, el. troubou a digestoří, koupelna s vanou, WC.
Byt je k dispozici od 1.5.2026. Hledáme pouze dlouhodobého nájemce – 1 osobu, nekuřáka, bez zvířat. První smlouva je na dobu určitou.
Poplatky (teplo, teplá voda, studená voda, osvětlení domu, úklid domu, odvoz odpadků) pro 1 osobu činí 2.590 Kč/měs. Elektřina a příp.internet se hradí zvlášť.
Kauce je ve výši 25.000 Kč.
Dům je po celkové rekonstrukci, celkem 14 bytů, na každém patře pouze dva byty. Velice slušní nájemníci. Klidná a rodinná atmosféra. V domě nejsou poskytovány žádné krátkodobé pronájmy!
Velmi dobrá dopravní dostupnost - ve vzdálenosti 100 m jsou tramvajové zastávky U Průhonu, Dělnická a Maniny, kde jezdí linky 1,3,5,10,12,15,25 a 54. Na metro B Palmovka, metro C Vltavská i metro C Nádraží Holešovice jsou to 2 zastávky tramvají.
Dobré parkování pro rezidenty před domem.
Hned vedle domu je divadlo La Fabrika, nedaleko DOX, SaSaZu, Vnitroblock, Hala 22 (farmářské trhy), galerie, apod. Perfektní čtvrť se strategickou polohou. V Holešovicích si užijete klid, řeku za rohem, parky v docházkové vzdálenosti, cyklostezky i všechny vymoženosti moderního města. Kulturní a gastronomické zážitky čekají na každém kroku. Do centra jen několik minut. Zastávky tramvají i metra jsou velice blízko.
RK prosím neodpovídat.
Parametre nehnuteľnosti
| Dostupné od | 1. 5. 2026 |
|---|---|
| Konštrukcia budovy | Tehla |
| Vybavené | Čiastočne |
| Vykurovanie | Ústredné |
| Vlastníctvo | Osobné |
| Umiestnenie | Tichá lokalita |
| Cena za jednotku | 577 CZK / m2 |
| Stav | Veľmi dobrý |
|---|---|
| Dispozícia | 1+kk |
| Poschodie | 1. poschodie |
| Číslo inzerátu | 565798 |
| PENB | D - Menej hospodárne |
| Úžitková plocha | 26 m² |
Čo táto nehnuteľnosť ponúka?
| MHD 2 minúty pešo |
V okolí nehnuteľnosti nájdete
Stále hľadáte to pravé?
Nastavte si strážneho psa. Ponuky vybrané na mieru dostanete súhrnne 1× denne e-mailom. S Premium profilom máte po ruke rovno 5 strážcov a keď sa niečo objaví, informujú vás obratom.

















