
Prenájom bytu 2+kk • 61 m² bez realitkyKošická, Praha - Vršovice
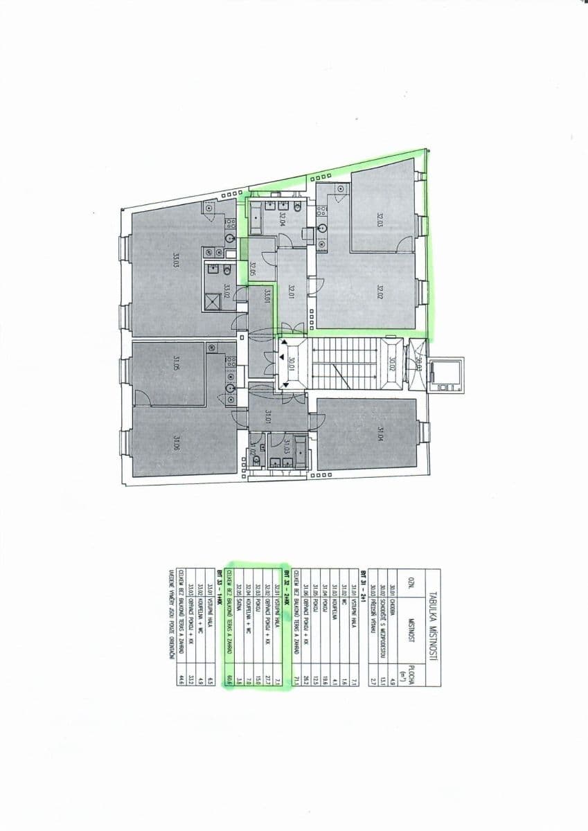
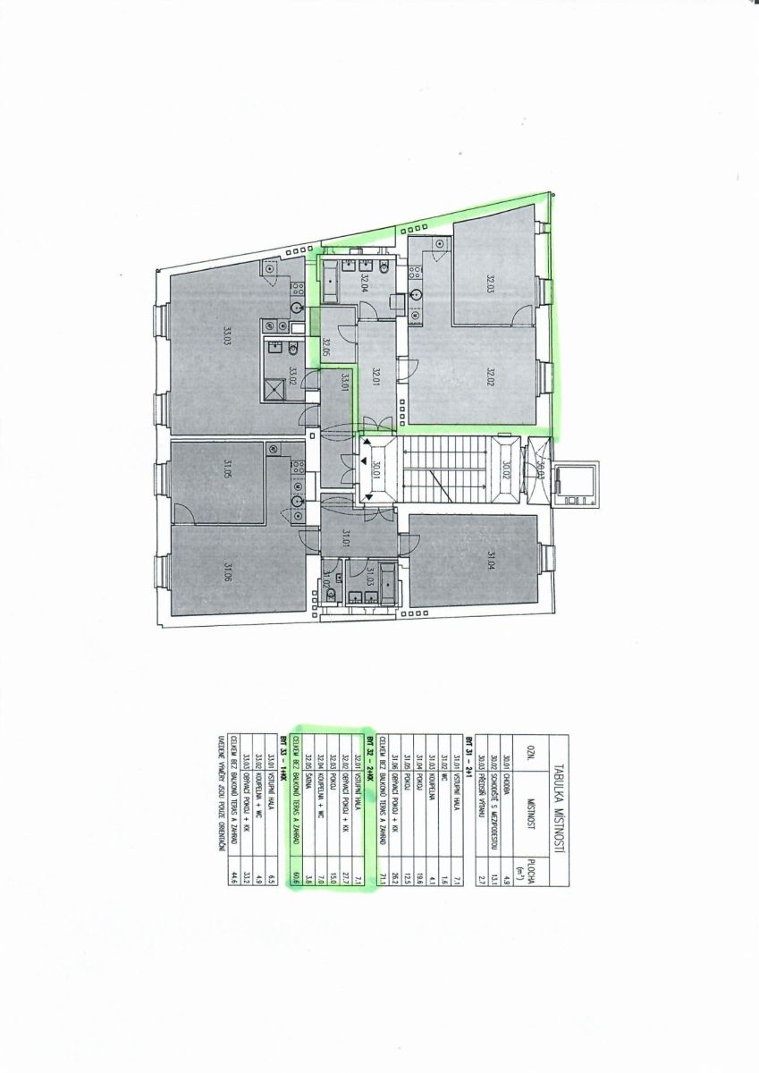
Světlý a prostorný nový byt 2+kk, o velikosti 60,60 m2 , ve 3. NP nově zrekonstruovaného domu s výtahem v klidné ulici ve Vršovicích, s výhledem na Havlíčkovy sady. Lokalita s rychlou dostupností do centra, pár minut chůze od stanice tramvaje, v blízkosti stanice metra Náměstí Míru.
Veškerá vybavenost v blízkém okolí.
Interiér tvoří 1 neprůchozí pokoj, pokoj + KK, vstupní hala, koupelna + WC, šatna. K dispozici je samostatná sklepní kóje.
Na podlahách jsou parkety, vytápění a ohřev vody je zajištěn kombinovaným plynovým kotlem. Součástí vybavení bytu je varná deska, trouba, digestoř, lednice a myčka na nádobí.
Poplatky za společné služby se předpokládají ve výši 2.100,-Kč/osobu/měsíc. Elektřinu a plyn hradí nájemník přímo dodavatelům těchto služeb.
K dispozici od 1. dubna 2026
Parametre nehnuteľnosti
| Vek | Do 10 rokov |
|---|---|
| Stav | Veľmi dobrý |
| Dispozícia | 2+kk |
| Poschodie | 3. poschodie |
| Vykurovanie | Plynové |
| Vlastníctvo | Osobné |
| Umiestnenie | Tichá lokalita |
| Cena za jednotku | 393,44 CZK / m2 |
| Dostupné od | 1. 4. 2026 |
|---|---|
| Konštrukcia budovy | Tehla |
| Vybavené | Nevybavené |
| Prevedenie | Štandardné |
| Číslo inzerátu | 545416 |
| Rekonštrukcia | Kompletné |
| Úžitková plocha | 61 m² |
Čo táto nehnuteľnosť ponúka?
| Pivnica 6 m² | |
| MHD 2 minúty pešo |
| Výťah |
V okolí nehnuteľnosti nájdete
Stále hľadáte to pravé?
Nastavte si strážneho psa. Ponuky vybrané na mieru dostanete súhrnne 1× denne e-mailom. S Premium profilom máte po ruke rovno 5 strážcov a keď sa niečo objaví, informujú vás obratom.















