
Prenájom bytu 1+kk • 39 m² bez realitkyBukačova, Praha - Vysočany
Nový 1+kk 39 m² s lodžií jih, Harfa Living, Praha 9 – bez provize
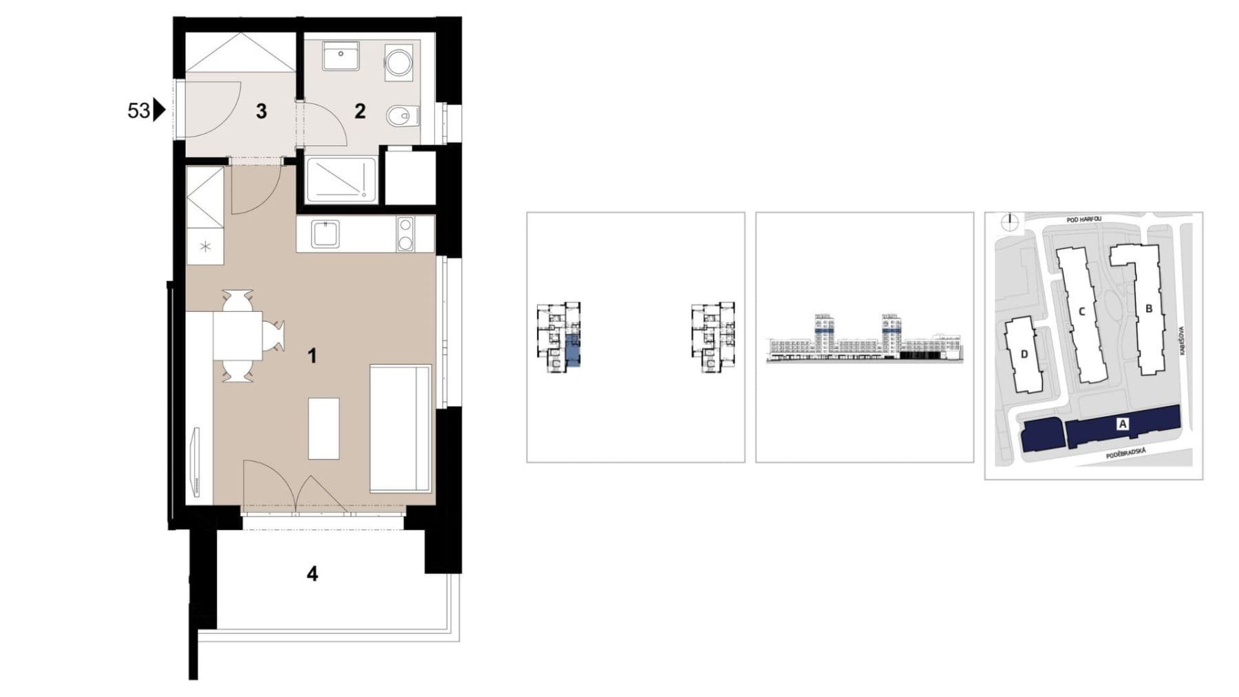
Nabízím k dlouhodobému pronájmu zcela nový byt 1+kk o ploše 32 m² v projektu Harfa Living. Byt je v 6. patře, orientovaný na východ a jih, s prostornou zasklenou lodžií 7 m² na jih. Hledám prvního nájemníka, je k nastěhování ihned.
RYCHLÝ PŘEHLED
– 1+kk, 32 m² interiér + lodžie 7 m² (jih)
– 6. patro, orientace východ/jih, celodenní světlo
– novostavba Harfa Living, Praha 9 (oblast Harfa, blízko Hloubětína a Vysočan)
– PENB B, bezbariérový dům, výtahy, krytý parking v domě
– kuchyň na míru se spotřebiči Bosch (indukční deska, trouba, mikrovlnka, lednice s mrazákem, myčka, digestoř)
– pračka zdarma (možnost značkové pračky se sušičkou zdarma dle preference nájemce)
– vestavěné skříně v předsíni i obývacím prostoru, dřevěná pracovní deska
– velkoformátové obklady, sprchový kout, závěsné WC, žebříkový radiátor
– optický internet v bytě (převod nebo nová smlouva nájemce)
– elektrické venkovní stínění (bude instalováno), bezpečnostní dveře
– sklep 6 m² + krytý parking k dispozici v balíčku
– malý pes nebo kočka po dohodě
– bez provize RK
PROČ TENHLE BYT
Byt je nový, kompaktní a dispozičně promyšlený pro jednu (max dvě) osoby. Lodžie 7 m² na jih funguje jako plnohodnotný venkovní mikroprostor – ranní káva, večerní relax, příležitostně i pracovní kout. Vestavěné skříně řeší úložné prostory, takže byt nepůsobí jako garsonka napěchovaná nábytkem. Pokud pracujete částečně z domova, dispozice umožňuje pracovní kout.
LOKALITA
Harfa Living je nový rezidenční projekt v Praze 9. Tramvajová zastávka před domem, metro B Českomoravská cca 5 minut. Centrum Prahy 15 minut MHD. V okolí Galerie Harfa, O2 arena, cyklostezka podél Rokytky, restaurace, obchody, mateřské školky. Nádraží Libeň 4 minuty pěšky (vlak, tramvaj, autobus). V domě kočárkárna. V okolí domu dobíjecí stanice pro elektromobily.
NÁKLADY A PODMÍNKY
– Nájemné: 19 800 Kč/měsíc
– Zálohy na služby domu: 2 811 Kč/měsíc
– Elektřina: přepis na nájemce, odhad cca 700 Kč/měsíc
– Internet: řeší nájemce (optika přivedená do bytu)
– Sklep (XL, 6 m2) + krytý parking: 2 450 Kč/měsíc volitelně
– Kauce: 30 000 Kč
– Provize RK: 0 Kč (ušetříte 24 000 Kč)
– Délka nájmu: 12 měsíců s možností prodloužení
– Volné: ihned
Nájemní smlouva se uzavírá na 1 rok s možností automatického prodloužení.
Kontakt – zavolejte nebo napište mezi 9:00–19:00 (možno i WhatsApp). We speak English.
New 1+kk 39 m² with south-facing loggia, Harfa Living, Prague 9 – no agency fee
Long-term rental of a brand-new 1+kk apartment, 32 m², in the Harfa Living project. The apartment is on the 6th floor, oriented east/south, with a spacious glazed south-facing loggia of 7 m². Looking for the first tenant, available immediately.
QUICK OVERVIEW
– 1+kk, 32 m² interior + 7 m² loggia (south)
– 6th floor, east/south orientation, all-day light
– new build Harfa Living, Prague 9 (Harfa area, near Hloubětín and Vysočany)
– PENB class B, barrier-free building, lifts, covered parking in the building
– custom-built kitchen with Bosch appliances (induction hob, oven, microwave, fridge/freezer, dishwasher, extractor hood)
– washing machine included free of charge (option to upgrade to a branded washer-dryer free of charge per tenant preference)
– built-in wardrobes in the entrance hall and living area, wooden worktop
– large-format tiling, walk-in shower, wall-hung WC, towel radiator
– fibre-optic internet in the apartment (transfer or new contract by tenant)
– electric exterior shading (to be installed), security entrance door
– storage unit 6 m² + covered parking available as a package
– small dog or cat by agreement
– no agency commission
WHY THIS APARTMENT
The apartment is new, compact, and well-designed for one (max two) people. The 7 m² south-facing loggia works as a full outdoor micro-space – morning coffee, evening downtime, occasionally a workspace. Built-in wardrobes cover storage, so the apartment doesn't feel like a studio crammed with furniture. If you work from home part-time, the layout allows for a small home-office corner.
LOCATION
Harfa Living is a new residential project in Prague 9. Tram stop right in front of the building, metro B Českomoravská about 5 minutes away. Prague city centre 15 minutes by public transport. Nearby: Galerie Harfa shopping centre, O2 Arena, Rokytka cycle path, restaurants, shops, kindergartens. Libeň train station 4 minutes on foot (train, tram, bus). Pram storage in the building. EV charging stations in the immediate area.
COSTS AND CONDITIONS
– Rent: 19,800 CZK/month
– Service charges (building): 2,811 CZK/month
– Electricity: transferred to tenant, estimated approx. 700 CZK/month
– Internet: tenant's responsibility (fibre-optic already in the apartment)
– Storage unit (XL, 6 m²) + covered parking: 2,450 CZK/month, optional
– Deposit: 30,000 CZK
– Agency commission: 0 CZK (saves you 24,000 CZK)
– Lease term: 12 months with option to extend
– Available: immediately
The lease is signed for 1 year with the option of automatic extension.
Contact – call or message between 9:00 and 19:00 (WhatsApp also works). We speak English and Czech.
Parametre nehnuteľnosti
| Dostupné od | 30. 4. 2026 |
|---|---|
| Konštrukcia budovy | Tehla |
| Vybavené | Čiastočne |
| Číslo inzerátu | 1018032 |
| Úžitková plocha | 39 m² |
| Stav | Novostavba |
|---|---|
| Dispozícia | 1+kk |
| Poschodie | 6. poschodie z 9 |
| Umiestnenie | Rušná oblasť |
| Cena za jednotku | 507,69 CZK / m2 |
Čo táto nehnuteľnosť ponúka?
| Pivnica 6 m² | |
| Výťah |
| Garáž | |
| Lodžia 7 m² |
V okolí nehnuteľnosti nájdete


Prenájom bytuNovovysočanská, Praha - Vysočany- 1+kk
- 54 m²
21 000 CZK + 4 000 CZK23 000 CZK
Ušetríte 2 000 CZK


Stále hľadáte to pravé?
Nastavte si strážneho psa. Ponuky vybrané na mieru dostanete súhrnne 1× denne e-mailom. S Premium profilom máte po ruke rovno 5 strážcov a keď sa niečo objaví, informujú vás obratom.


















