
Predaj bytu 3+1 • 114 m² bez realitkyHalle Giebichenstein Sachsen-Anhalt 06114
Obidva remízne domy sa nachádzajú centrálne na dvore. Boli postavené v rokoch 2023 až 2025 vybudovaním nadstavieb existujúcich remíz a ponúkajú moderný dizajn, kvalitné materiály, ako aj energeticky efektívne vybavenie s tepelné čerpadlo a tepelnou izoláciou v klinkerovom prevedení (energetický štítok A+).
Môže sa priamo pred vchodom voliteľne zakúpiť parkovacie miesto alebo miesto v garáži.
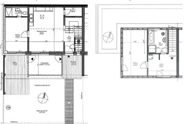
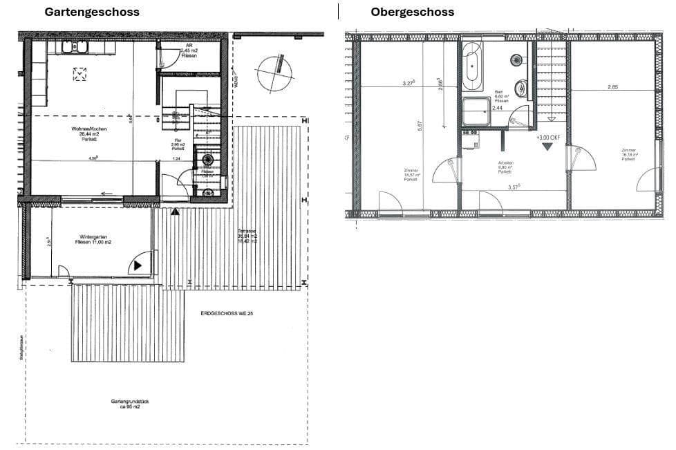
Pravý dom (WE 25) sa rozprestiera na dvoch podlažiach: V záhradnom podlaží sa nachádza otvorená obývacia a jedálenská časť s predinštalovanými kuchynskými prípojkami. K tomu nasleduje kvalitná zimná záhrada, vybavená podlahovým kúrením a všetkými mediálnymi prípojkami. Zimnou záhradou sa dá dostať dvoma spôsobmi na terasu a do záhrady. Záhrada je osadená trávnikom a živým plotom. Už tu stojí ovocný strom aj magnólia.
Pre zabezpečenie súkromia sú v prízemí inštalované textilné obrazovky so zamedzením pohľadu a slnečnej ochrany. Obrazovky je možné elektricky ovládať pomocou diaľkových ovládačov. Sú navrhnuté tak, aby z vnútra von umožňovali prehľad.
Návrh domu dopĺňa aj toaleta pre hostí vo vstupnej oblasti. Veľké okná od podlahy až po strop, ako aj strešné okno nad kuchyňou, zabezpečujú dostatok denného svetla a cirkuláciu vzduchu.
V hornom podlaží sa nachádzajú dve spálne, moderná kúpeľňa s oknom vybavená vaňou a sprchovacím kútom, ako aj izbový priestor pre práčovňu s prípojkou pre práčku a sušičku a ďalšími úložnými možnosťami.
Podlahy sú vybavené kvalitnou dubovou parketou. Kúpeľňa je vybavená podlahovým kúrením a vyhrievačom uterákov.
Mozartova ulica prebieha horizontálne z východne umiestneného Paulusviertelu smerom k západne ležiacej Saale cez mestskú štvrť Giebichenstein v severnej časti centra.
Mestská štvrť Giebichenstein získala svoj názov z hradnej budovy Giebichenstein, ktorá leží priamo pri rieke Saale a bola postavená už v 12. storočí. Na jej území sa od roku 1919 dodnes nachádza časť umeleckého kampusu umeleckej vysokej školy Halle. Výstavba tejto časti mesta pochádza prevažne z 19. storočia a od roku 1990 bola postupne rekonštruovaná. V blízkosti centra a smerom k brehu Saale prevažujú vila-podobné budovy s predzáhradami a cenným stromovým porastom. Vďaka blízkosti rieky Saale a čiastočne historickým parkovým a zeleným plochám (Amtsgarten, Reichardts Garten, Heinrich-Heine-Park) patrí táto štvrť medzi najzelenšie mestské štvrte. Štvrť má približne 10 000 obyvateľov.
Dom číslo 18 na Mozartovej ulici je veľmi pokojnou adresou, priamo oproti zadnej časti prírodovedného múzea.
V nedalekej Reilovej ulici sa nachádza niekoľko zastávok električiek a autobusov.
Občiansky park, ako aj ďalšie záujmové parky a samotná Saale, sú dostupné pešo do 500 metrov.
Domy na Mozartovej ulici číslo 16, 17 a 18 boli postavené v 30. rokoch minulého storočia jednotným stavebným štýlom a dnes tvoria zmodernizovanú, pamätníkovú obytnú zónu. Tri predné domy boli postavené bez bočných krídel alebo priečnych budov, takže za domami vznikla veľkorysá dvorová plocha. Remízy, ktoré sa tu ponúkajú, patria k domu číslo 18.
Remízy boli prepracované na moderný dvojdom. Samotný dvor je veľkorysý a zelený. V ďalších remízach sa nachádzajú cykloparkoviská, domová technika a garáž. K remízam je pristupovať možno cez bránu domu číslo 18.
V rámci nadstavby strešných podlaží troch predných domov boli okrem novej krytiny upravené aj fasády, vstupné priestory, schodiská, spoločná elektrická inštalácia, priepust brány a ďalšie prvky.
Garáž alebo/a parkovacie miesto na dvore je možné (pozri expozíciu).
Parametre nehnuteľnosti
| Vek | Nad 50 rokov |
|---|---|
| Stav | Po rekonštrukcii |
| Číslo inzerátu | 1017704 |
| Úžitková plocha | 114 m² |
| Dostupné od | 29. 4. 2026 |
|---|---|
| Dispozícia | 3+1 |
| PENB | A - Mimoriadne úsporné |
| Cena za jednotku | 4 342,11 € / m2 |
Čo táto nehnuteľnosť ponúka?
| Pivnica | |
| Parkovanie | |
| Terasa |
| Garáž | |
| MHD 2 minúty pešo |
V okolí nehnuteľnosti nájdete
Stále hľadáte to pravé?
Nastavte si strážneho psa. Ponuky vybrané na mieru dostanete súhrnne 1× denne e-mailom. S Premium profilom máte po ruke rovno 5 strážcov a keď sa niečo objaví, informujú vás obratom.
































