Predaj bytu 3+1 • 104 m² bez realitkyHalle Giebichenstein Sachsen-Anhalt 06114
Obe remisenové domy sa nachádzajú centrálne vo vnútornom dvore. Boli postavené medzi rokmi 2023 a 2025 rozšírením existujúcich remisen a môžu sa pochváliť moderným dizajnom, kvalitnými materiálmi a energeticky efektívnym vybavením vrátane tepelného čerpadla a tepelnej izolácie v klinkerovom prevedení (energetický preukaz A+).
Parkovacie miesto alebo miesto v garáži je možné voliteľne zakúpiť priamo pred domovými dverami.
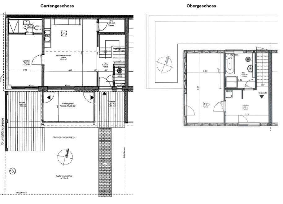
Ľavý dom (WE 24) sa rozprestiera na dvoch poschodiach: Na prízemí sa nachádza spálňa s vlastnou sprchovacou kúpeľňou a priamym prístupom na záhradnú terasu, ako aj otvorený obývací a jedálenský priestor s predinštalovanými kuchynskými prípojkami. Nadväzuje na neho kvalitná zimná záhrada vybavená podlahovým kúrením a všetkými mediálnymi prípojkami. Prostredníctvom zimnej záhrady je možné získať prístup na terasu a do záhrady dvoma spôsobmi.
Na zabezpečenie súkromia sú na oknách inštalované textilné rolety s funkciou ochrany pred pohľadom a slnkom. Rolety je možné ovládať elektricky pomocou diaľkových ovládačov a sú navrhnuté tak, aby z vnútra umožňovali prehľad von.
Prízemie dopĺňa aj hosťovská toaleta vo vstupnej časti. Veľké okná z podlahy až po strop a stropné okno nad kuchyňou zaisťujú dostatok denného svetla a prúdenie vzduchu.
Na poschodí sa nachádza veľká spálňa, pracovná miestnosť a moderná kúpeľňa s vaňou a sprchou, ako aj práčovňa s prípojkou pre práčku a sušičku a ďalšími úložnými priestormi.
Podlahy sú vybavené kvalitným dubovým parketom. Kúpeľňa disponuje podlahovým kúrením a ohrievačom na uteráky.
Mozartova ulica prechádza horizontálne od východne položeného Paulusviertelu smerom k západne umiestnenej Saale, pričom priečne pretína mestskú časť Giebichenstein v severnom centre.
Mestská časť Giebichenstein získala svoje meno podľa hradu Giebichenstein, ktorý stojí priamo pri rieke Saale a bol postavený už v 12. storočí. Na jej areáli sa od roku 1919 až dodnes nachádza časť umeleckého kampusu umeleckej vysokej školy v Halle. Zástavba tejto mestskej časti pochádza prevažne z 19. storočia a bola postupne rekonštruovaná od roku 1990. V oblastiach blízko zóny a smerom k brehu Saale dominujú vila podobné budovy s predzáhradami a cenným stromovým porastom. Vďaka blízkosti rieky a čiastočne historickým parkovým a zeleným plochám (Amtsgarten, Reichardts Garten, Heinrich-Heine-Park) patrí táto časť mesta medzi najzelenšie štvrte. Celkový počet obyvateľov mestskej časti sa pohybuje okolo 10 000.
Číslo domu 18 na Mozartovej ulici predstavuje veľmi tichú adresu, priamo oproti zadnej časti Prírodovedného múzea.
V blízkej Reilovej ulici sa nachádza niekoľko zastávok električiek a autobusov.
Občiansky park, ďalšie verejné parky a aj rieka Saale sú v dosahu pešo, v menej ako 500 metroch.
Domy na Mozartovej ulici č. 16, 17 a 18 boli postavené v 30. rokoch v jednotnom stavebnom štýle a dnes tvoria modernizovanú, chránenú historickú obytnú zónu. Tri predné domy boli postavené bez bočných krídiel alebo priečnych budov, čo vytvorilo priestranný vnútorný dvor. Ponúkané remisen patria k domu číslo 18.
Remisen boli premenené na moderný dvojdom. Samotný dvor je priestranný a zeleňou upravený. V ďalších remisen sa nachádzajú bicyklové stojany, domáca technika a garáž. Remisen sú prístupné cez prechod bránou čísla domu 18.
Pri rozšírení striech pri troch predných domoch sa okrem kompletnej výmeny krytín reštaurovali aj fasády, vstupné priestory, schodiská, spoločná elektroinštalácia, priechod bránou a ďalšie časti.
Možnosť parkovacieho miesta a/alebo garáže na dvore je dostupná (viac v expozícii).
Parametre nehnuteľnosti
| Vek | Nad 50 rokov |
|---|---|
| Stav | Po rekonštrukcii |
| Číslo inzerátu | 1017698 |
| Úžitková plocha | 104 m² |
| Dostupné od | 29. 4. 2026 |
|---|---|
| Dispozícia | 3+1 |
| PENB | A - Mimoriadne úsporné |
| Cena za jednotku | 4 519,23 € / m2 |
Čo táto nehnuteľnosť ponúka?
| Pivnica | |
| Parkovanie | |
| Terasa |
| Garáž | |
| MHD 2 minúty pešo |
V okolí nehnuteľnosti nájdete
Stále hľadáte to pravé?
Nastavte si strážneho psa. Ponuky vybrané na mieru dostanete súhrnne 1× denne e-mailom. S Premium profilom máte po ruke rovno 5 strážcov a keď sa niečo objaví, informujú vás obratom.





























