
Prenájom bytu 3+1 • 104 m² bez realitkyAm Steinkart 5b, , Bavorsko
Am Steinkart 5b, , BavorskoMHD 5minút pešo • Výťah • GarážSnové bývanie a život v Bad Griesbach
Tu sa architektúra a pocit domova spájajú. Byty spájajú príjemný pocit kvality a istého štýlu. Priestranné, svetlom naplnené priestory zaujmú vďaka kvalitným materiálom a nadčasovej nádhernej estetike.
V krásnom rezidenčnom prostredí Bad Griesbach pre Vás realizujeme náročný projekt novostavby na najatraktívnejšej lokalite, pozostávajúci zo štyroch viacfamilijných budov s celkovým počtom 44 bytov osobitného a moderného typu. Okrem vysokej kvality kladieme pri plánovaní a výstavbe veľký dôraz aj na súčasnú a pre región vhodnú architektúru. Pozemok sa nachádza bájne, vo vyvýšenej polohe na konci osady, a ponúka voľný výhľad na hory. Mestské námestie, lekári a všetky zariadenia dennej potreby sú pohodlne dostupné pešo.
Byty oslovia svojimi priestrannými balkónmi, strešnými terasami a terasami so záhradami. Záhrady prízemných bytov sú určené výlučne pre ich vlastníkov. Penthouse byty a byty v horných poschodiach ponúkajú bájný a nezakryiteľný výhľad s pohľadom na Alpy. Výťahy pohodlne prepravujú všetkých obyvateľov z podzemnej garáže na každé poschodie. Veľká časť bytov je bezbariérová.
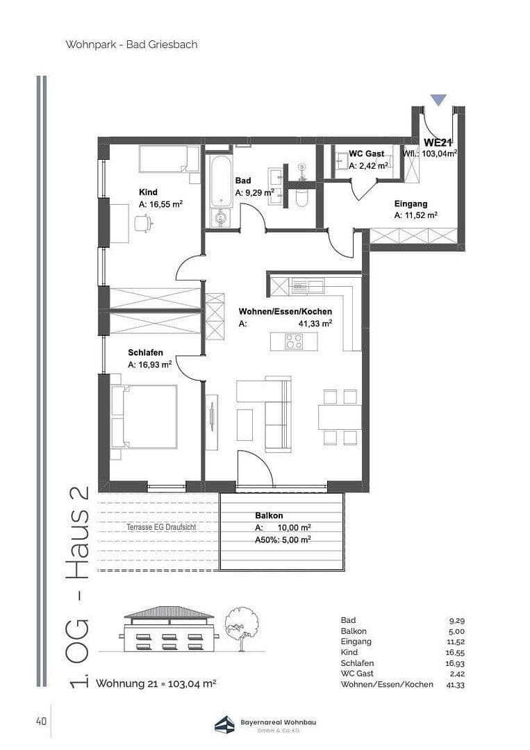
Náš slnečný 3-izbový byt s južným balkónom, spálňou, kúpeľňou a priestranným otvoreným obývačkovo-jedálenským a kuchynským priestorom je ideálny pre rodiny a páry, ktoré hľadajú miesto na oddych a pohodu! Veľká záhrada je určená výlučne pre príslušného vlastníka.
Samozrejme, projekt ponúka parkovacie miesta TG, miesta v carporte aj vonkajšie parkovacie miesta. Každý byt má navyše vlastný pivničný priestor.
Štandard KFW 40 QNG:
Stavba spĺňa všetky kritériá aktuálnej EnEV v triede energetickej efektívnosti KfW40 QNG a svojou tepelnou obálkou budovy podčiarkuje udržateľný spôsob výstavby. Tým je stavba veľmi energeticky úsporná, udržateľná a ekologická. Vďaka stavebným riešeniam sú budúce prevádzkové náklady držané na veľmi nízkej úrovni. Energetický koncept je navyše podporený fotovoltaickou inštaláciou s výkonom 10 kWp.
Zloženie nájomného:
- Nájomné 2-izbového bytu: 1170,00 EUR
- Nájomné za 2 parkovacie miesta v podzemnej garáži: 130,00 EUR
- Nájomné za vstavanú kuchyňu: 65,00 EUR
- Prevádzkové náklady: 190,00 EUR
= Celkové nájomné (vrátane tepla): 1555,00 EUR
JE K DISPOZÍCIÍ VIAC BYTOV, KTORÉ JE MOŽNÉ SI PREHLIADNUŤ PRI ODHLIADKE NA BÝVACÍCH PRIEMERÍACH!
Bývanie a život v Bad Griesbach
V nepremožiteľnej špičkovej lokalite s bájnym výhľadom a v bezprostrednej blízkosti centra Bad Griesbach vznikajú štyri viacfamilijné budovy s celkovým počtom 44 bytov osobitného a moderného typu.
360-stupňová prehliadka:
https://bayernarealwohnbau.viewin360.co/share/collection/7bQ8V?logo=bWVkaWEvNTQxNTIyLzY2ZTQtMDI1Ni00MTViLWYxOTIucG5n&info=0&logosize=160&fs=1&vr=1&sd=1&thumbs=1&inst=de
Moderné a štýlové vybavenie:
+ Moderná výstavba a kvalitné vybavenie podľa štandardu KfW 40 NH Effizienzhaus
+ Teploizolačné tehly
+ Vstavaná kuchyňa
+ Fotovoltaická inštalácia s výkonom 10 kWp
+ Prízemné byty s terasami a záhradným areálom
+ Každá viacfamilijná budova má výťah
+ Energeticky úsporné kúrenie pomocou kotlov na pelety
+ Byty väčšinou bezbariérové
+ Kvalitné parketové podlahy z masívneho dreva / moderné dlaždice
+ Individuálne nastaviteľné podlahové kúrenie pre príjemný pocit komfortu bývania
+ Priamo pristupné sprchovacie kúty a dizajnové kúpeľňové vybavenie
+ Miestami aj s hosťovým WC
+ Alu-plastové okná: vonkajšie v antracitovej farbe, vnútorné biele (trojité izolačné sklo)
+ Elektricky ovládané rolety a lamely
+ Decentralizované vetranie obytných priestorov s rekuperáciou tepla
+ Parkovacie miesta v carporte
+ Vonkajšie parkovacie miesta
Každý byt má 1 pivničný priestor.
Parametre nehnuteľnosti
| Vek | Nad 50 rokov |
|---|---|
| Stav | Novostavba |
| Číslo inzerátu | 1017458 |
| Úžitková plocha | 104 m² |
| Dostupné od | 15. 11. 2025 |
|---|---|
| Dispozícia | 3+1 |
| PENB | A - Mimoriadne úsporné |
| Cena za jednotku | 11,25 € / m2 |
Čo táto nehnuteľnosť ponúka?
| Balkón | |
| Pivnica | |
| Výťah |
| Bezbariérový prístup | |
| Garáž | |
| MHD 5 minút pešo |
V okolí nehnuteľnosti nájdete
Stále hľadáte to pravé?
Nastavte si strážneho psa. Ponuky vybrané na mieru dostanete súhrnne 1× denne e-mailom. S Premium profilom máte po ruke rovno 5 strážcov a keď sa niečo objaví, informujú vás obratom.




















