
Prenájom bytu 1+kk • 31 m² bez realitkyJaroslava Foglara, Praha - Stodůlky
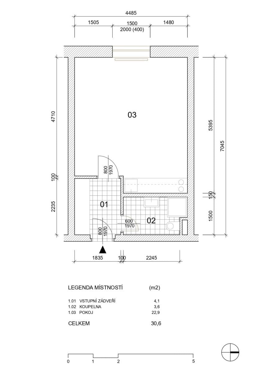
Nabízím k pronájmu svůj útulný 1+kk byt o rozloze 31 m² nacházející se v souboru nízkopodlažních bytových domů, v klidné zástavbě nedaleko Dalejského parku. Obsahuje vstupní zádveří s vestavěnou šatní skříní, koupelnu se sprchou, wc a pračkou, hlavní obytnou místnost a kuchyňský kout /varná deska, trouba, lednička/ s jídelním stolem a židlemi. Jedná se o světlý, hezký byt s výhledem na západ do zeleně. Byt je částečně vybavený a k nastěhování od 1.5.2026. Bezplatné parkování před domem. Bezbariérový vstup do domu i bytu.
V blízkém okolí se nachází potřebná občanská vybavenost /supermarket, restaurace, pekárna, sportovní centrum, myčka aut, knihovna/. Metro "B" stanice Lužiny / Luka v docházkové vzdálenosti do 15minut.
Nájemné 17.500 Kč + zúčtovatelné zálohy 4.000 Kč /voda, TUV, teplo, odpad včetně elektřiny/ . Elektřina se nepřepisuje na nájemníka. Zálohy jsou každoročně zúčtovány.
Kauce 2nájmy x 17.500 = 35.000 Kč
Pro bližší informace či sjednání prohlídky mě neváhejte kontaktovat prostřednictvím zpráv na komunikační platformě.
Parametre nehnuteľnosti
| Dostupné od | 1. 5. 2026 |
|---|---|
| Konštrukcia budovy | Tehla |
| Vybavené | Čiastočne |
| Číslo inzerátu | 1016919 |
| Úžitková plocha | 31 m² |
| Stav | Veľmi dobrý |
|---|---|
| Dispozícia | 1+kk |
| Poschodie | 1. poschodie z 2 |
| Umiestnenie | Tichá lokalita |
| Cena za jednotku | 564,52 CZK / m2 |
Čo táto nehnuteľnosť ponúka?
| Bezbariérový prístup |
| Parkovanie |
V okolí nehnuteľnosti nájdete
Stále hľadáte to pravé?
Nastavte si strážneho psa. Ponuky vybrané na mieru dostanete súhrnne 1× denne e-mailom. S Premium profilom máte po ruke rovno 5 strážcov a keď sa niečo objaví, informujú vás obratom.










