
Predaj domu 4+1 • 127 m² bez realitkyDenkendorf Dörndorf Bayern 85095
Denkendorf Dörndorf Bayern 85095MHD 1 minúta pešo • GarážCena499 990 €
Preložené AI
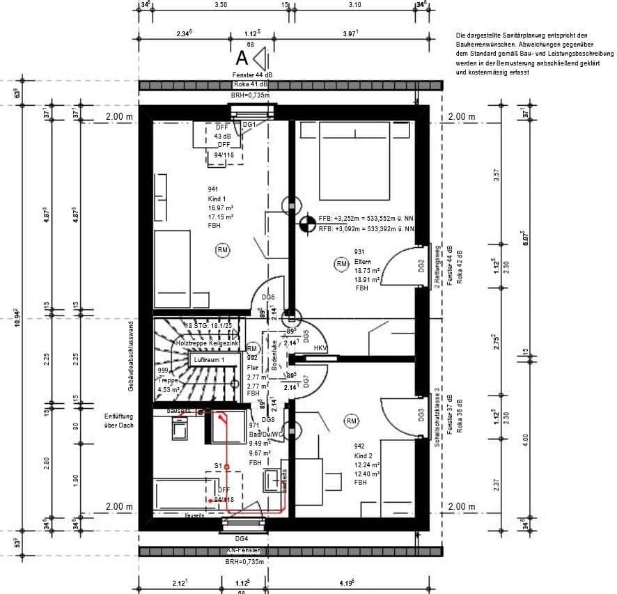
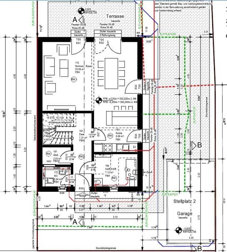
Predávame našu takmer novú dvojdomov s garážou, záhradou a terasou. 3 spálne, hosťovské WC, kúpeľňa s prirodzeným denným svetlom. Drevená konštrukcia, terasa z prírodného kameňa. Lokalita: Dörndorf. Záruka do roku 2028. Pre ďalšie otázky volajte na číslo 0178 144 6292 alebo píšte e-mail. Dopyty od maklérov nie sú vítané.
Parametre nehnuteľnosti
| Vek | Nad 50 rokov |
|---|---|
| Dispozícia | 4+1 |
| PENB | A - Mimoriadne úsporné |
| Plocha pozemku | 337 m² |
| Cena za jednotku | 3 936,93 € / m2 |
| Stav | Veľmi dobrý |
|---|---|
| Číslo inzerátu | 1016392 |
| Úžitková plocha | 127 m² |
| Celkové poschodia | 2 |
Čo táto nehnuteľnosť ponúka?
| Garáž | |
| Terasa |
| MHD 1 minúta pešo |
V okolí nehnuteľnosti nájdete
MHDDenkendorf, Hauptstraße
🚶 98 m (1 min)
PoštaSchreibwaren Renate Gürtner
🚘 6 379 m (7 min)
ObchodBäckerei Sipl
🚶 26 m (0 min)
BankaSparkasse
🚶 77 m (1 min)
ReštauráciaZur Post
🚶 39 m (0 min)
LekáreňBavaria Aphoteke
🚶 294 m (4 min)
ŠkolaGrund- und Mittelschule Denkendorf
🚶 710 m (9 min)
Materská škola
🚶 188 m (2 min)
ŠportoviskoPumptrack Denkendorf
🚘 956 m (2 min)
Ihrisko
🚘 1 063 m (3 min)
Vzdialenosť k:
Cena499 990 €
Stále hľadáte to pravé?
Nastavte si strážneho psa. Ponuky vybrané na mieru dostanete súhrnne 1× denne e-mailom. S Premium profilom máte po ruke rovno 5 strážcov a keď sa niečo objaví, informujú vás obratom.












