
Predaj bytu 2+1 • 43 m² bez realitkyCoventrystraße 57 Frankfurt am Main Nied Hessen 65934
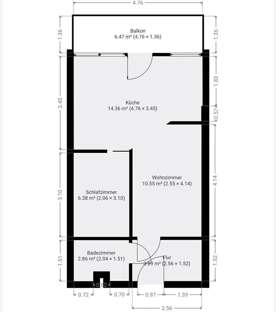
Coventrystraße 57 Frankfurt am Main Nied Hessen 65934MHD 3 minúty pešo • Výťah • ParkovanieNa predaj je čerstvo zrekonštruovaný 2-izbový byt v udržiavanom viacrodinnom dome z roku 1971 vo Frankfurt-Nied.
Byt zaujme svojou kompaktnou a dobre prenajímateľnou veľkosťou cca 43 m², premysleným pôdorysom a stabilnými príjmami z prenájmu. Vďaka už existujúcemu prenájmu je tento objekt ideálny pre kapitálových investorov, ktorí chcú okamžité príjmy.
Carport (samostatne za 10 000 €) dopĺňa ponuku a zvyšuje atraktivitu pre nájomcov.
Ekonomickosť / Výnosnosť
Studený nájom: 850 € / mesiac
Ročný studený nájom: 10 200 €
Spoločné náklady: 351 € / mesiac
Záťaž, ktorá sa môže premietnuť do nájomného: 235 €
Nepremietnuteľné: 116 €
Kúpne ceny:
Byt: 169 000 €
Carport: 10 000 €
Celková kúpna cena: 179 000 €
Hrubá výnosnosť: cca 5,7 % – 6 %
Solídna kapitálová investícia so stabilným cashflow a potenciálom rastu.
Kľúčové údaje na prvý pohľad
Rok výstavby: 1971
Bytová plocha: cca 43 m²
Izby: 2
Stav: čerstvo zrekonštruovaný
Prenajatý: Áno
Parkovacie miesto: Carport (samostatne)
Byt sa nachádza v obľúbenom mestskom štvrti Frankfurt-Nied, v žiadanej lokalite s veľmi dobrou infraštruktúrou.
Obchodné možnosti v bezprostrednej blízkosti
Dobrá dostupnosť verejnej dopravy
Rýchly prístup do centra Frankfurtu
Blízkosť priemyselných a obchodných zón (vysoký dopyt po prenájme)
Obzvlášť atraktívny pre pendlerov a pracujúcich – stabilná prenajímateľnosť zaručená
Svetlé a príjemné priestory
Funkčný 2-izbový pôdorys
Modernizovaná výbava po rekonštrukcii
Kúpeľňa so súčasným vybavením
Jednoducho udržiavateľné podlahy
K dispozícii je pivničné úložisko
Vybavená kuchyňa s kompletne zaisteným nábytkom
Parkovacie miesto typu Carport
Táto nehnuteľnosť je vynikajúcou voľbou pre investorov, ktorí hľadajú solídnu a dlhodobú kapitálovú investíciu v ekonomicky silnom regióne.
Prehliadka je možná na krátku dobu. Radi Vám poskytneme ďalšie podklady.
Dopyty od maklérov nie sú vítané!
Podľa § 7 UWG sú nevyžiadané kontakty od maklérov bez výslovného súhlasu príjemcu zakázané!
Parametre nehnuteľnosti
| Vek | Nad 50 rokov |
|---|---|
| Stav | Po rekonštrukcii |
| Poschodie | 2. poschodie z 6 |
| PENB | E - Nehospodárne |
| Cena za jednotku | 3 930,23 € / m2 |
| Dostupné od | 29. 4. 2026 |
|---|---|
| Dispozícia | 2+1 |
| Číslo inzerátu | 1016366 |
| Úžitková plocha | 43 m² |
Čo táto nehnuteľnosť ponúka?
| Balkón | |
| Pivnica | |
| Parkovanie |
| Bezbariérový prístup | |
| Výťah | |
| MHD 3 minúty pešo |
V okolí nehnuteľnosti nájdete
Stále hľadáte to pravé?
Nastavte si strážneho psa. Ponuky vybrané na mieru dostanete súhrnne 1× denne e-mailom. S Premium profilom máte po ruke rovno 5 strážcov a keď sa niečo objaví, informujú vás obratom.






