
Prenájom bytu 2+kk • 74 m² bez realitkyMünchen Au Bayern 81543
Štýlový a veľmi udržiavaný, svetlý byt v historickej budove s vysokým štandardom, so stropmi vo výške 290 cm, s prvotriednym parketom v rybom kost vzore, najmodernejšou technikou a juhozápadným balkónom na prvom poschodí v pamiatkovom obytnom dome, ktorý bol v roku 2018 mimoriadne a náročne zrekonštruovaný a má 7 bytov, v centrálnom, ale veľmi pokojnom prostredí, priamo pri stanici metra a len 200 m od rieky Isar.
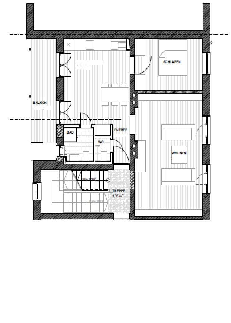
Byt pozostáva z veľkého obývacieho priestoru s integrovanou kuchyňou (s Miele spotrebičmi), jednej veľkej obývacej miestnosti alebo spálne a ďalšej spálne, pričom je vybavený sprchovým kúpeľňou a samostatným hosťovským WC.
Obytné priestory:
– Kuchyňa s obývačkou: 20,9 m²
– Spálňa: 12,5 m²
– Obývacia miestnosť alebo spálňa: 29,1 m²
– Kúpeľňa: 4,0 m²
– Hosťovské WC: 1,4 m²
– Chodba: 2,8 m²
– Balkón: 3,5 m² (=50 %)
Okrem toho patrí k bytu pivnica (3 m²), samostatné miesto na práčku a sušičku v práčovni v pivnici a kryté miesto na parkovanie bicyklov vo vnútornom nádvorí.
Lokalita je centrálná, ale veľmi pokojná – v Untergiesing / Au, v blízkosti Edlingerplatzu, cca 50 m od stanice metra a 200 m od rieky Isar. Byt disponuje vnútroštátnou, ale zároveň veľmi pokojnou polohou s celoročným slnečným balkónom orientovaným na juhozápad do vnútorného nádvoria.
Pamiatkovým spôsobom zrekonštruovaný byt má stropy vo výške 290 cm, veľký obývací priestor s integrovanou kuchyňou, veľkú obývaciu miestnosť a spálňu, ako aj sprchovú kúpeľňu a samostatné hosťovské WC. Vybavenie zahŕňa vysoko kvalitný dubový parket (rybí kost vzor) v obytných miestnostiach a dlaždice značky Solnhofer v sanitárnych priestoroch, kompletné sanitárne vybavenie vrátane kúrenia (radiátory) a podlahového kúrenia v kúpeľni (sklenená sprchová kabína, sprchový držiak, zrkadlo, umývadlová batéria so skrinkou a kompletná WC výbava), radiátory v obytných miestnostiach, integrovanú kuchyňu so spotrebičmi Miele, bohatú elektroinštaláciu, internet (M-Net optické vlákno), drevené okná vo farbe „okienovo sivá“ (RAL 7014) a dvere, ako aj historicky spracované biele drevené parapety. Všetky závese na záclony (dvojriadkové) sú už namontované v bielej kovovej farbe. Závesný zámok platí pre celý dom – každá jednotka má vlastný kľúč k dverám bytu, hlavným dverám, pivničnej miestnosti a poštovému schránke.
K budove:
Budova bola postavená v roku 1880 a v roku 1902 rozšírená do svojej súčasnej podoby. Ide o pamiatkovú budovu s dreveným schodiskom z roku 1880, ktorého únosnosť je obmedzená, a preto sa z bezpečnostných dôvodov nedoporučuje prepravovať veľmi ťažký nábytok, ako napríklad klavíry. Aj drevené stropy budovy zostali čiastočne v pôvodnom stave napriek rekonštrukcii v roku 2018, a preto nie je možné ich neobmedzene zaťažovať (viď fotografia schodiska).
Výnimočné sú najmä vysoko kvalitné vybavenie a veľmi pokojná poloha svetlého bytu v 1. poschodí s juhozápadným balkónom, ktorý je slnečný celý rok.
Chov domácich zvierat nie je povolený.
Jedná sa o pamiatkový, celkovo zrekonštruovaný starý bytový dom bez výťahu.
Z konštrukčných dôvodov nie je možné v byte umiestniť klavír.
Používanie práčky je možné len v práčovni v pivnici, nie priamo v byte.
Postupné zvyšovanie nájomného: Zvýšenie o 150 € po 2 a 4 rokoch.
Parametre nehnuteľnosti
| Vek | Nad 50 rokov |
|---|---|
| Stav | Po rekonštrukcii |
| Poschodie | 1. poschodie z 4 |
| Úžitková plocha | 74 m² |
| Dostupné od | 1. 6. 2026 |
|---|---|
| Dispozícia | 2+kk |
| Číslo inzerátu | 1016184 |
| Cena za jednotku | 26,76 € / m2 |
Čo táto nehnuteľnosť ponúka?
| Balkón | |
| MHD 3 minúty pešo |
| Pivnica |
V okolí nehnuteľnosti nájdete
Stále hľadáte to pravé?
Nastavte si strážneho psa. Ponuky vybrané na mieru dostanete súhrnne 1× denne e-mailom. S Premium profilom máte po ruke rovno 5 strážcov a keď sa niečo objaví, informujú vás obratom.

























