
Prenájom bytu 2+1 • 64 m² bez realitkyMörikestraße 22, , Bádensko-Wurttembersko
Mörikestraße 22, , Bádensko-WurttemberskoMHD 4 minúty pešo • ParkovanieTáto zmodernizovaná byty zaujme svojou vysoko kvalitnou výbavou a komplexnou energetickou rekonštrukciou. Nehnuteľnosť bola pôvodne postavená v roku 1965 a je momentálne sériovo kompletne rekonštruovaná v rokoch 2025/2026, takže spĺňa dnešné štandardy bývania a energetickej efektívnosti.
Poznámka: Zobrazené obrázky interiéru bytu sú vizualizácie generované umelou inteligenciou. Keďže sa byt aktuálne stále nachádza vo fáze výstavby, obrázky slúžia len na znázornenie možného priestoru a jeho zariadenia. Byt sa prenajíma nezaľudnený.
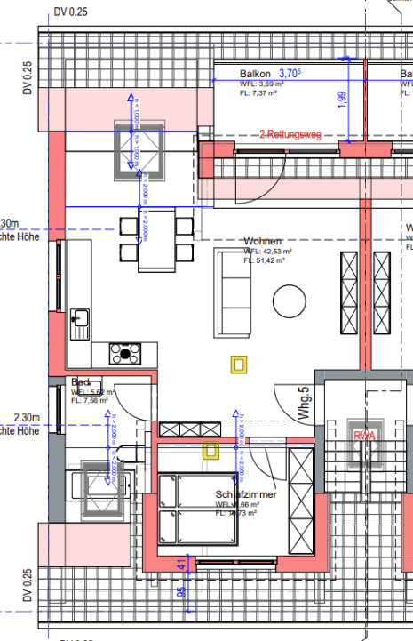
Byt disponuje parketovou podlahou a novou zabudovanou kuchyňou, čo vytvára modernú a útulnú atmosféru bývania. Balkón na západnej strane poskytuje dostatočný priestor pre usporiadanie sedenia.
Pre dodatočný komfort sú k dispozícii moderné ventilačné zariadenie, tepelné čerpadlo a podlahové kúrenie vo všetkých obytných priestoroch. Všetky strešné okná sú vybavené rolety alebo markízami, ktoré poskytujú optimálnu ochranu pred slnkom a teplom.
K bytu patria aj sklepný úložný priestor a parkovacie miesto, ktoré poskytujú dodatočný priestor na uskladnenie a zvyšujú komfort.
Byt bude pripravený na nasťahovanie od polovice až do konca marca 2026 a je ideálny pre nájomníkov, ktorí si cenia moderné, energeticky efektívne bývanie s vysoko kvalitnou výbavou.
Na okraji obce Erdmannhausen, v blízkosti školy a materskej školy, v kľudnej lokalite. Centrum obce so obchodmi, lekáreňou, ordináciou a radnicou je veľmi dobre dostupné pešo a dá sa dosiahnuť za krátky čas.
Obývacia izba vrátane kuchyne a spálňa sú vybavené kvalitnou dubovou parketovou podlahou a vyžarujú teplú, modernú atmosféru bývania. Kúpeľňa zaujme vkusnými dlaždicami v elegantnej béžovo-sivej farbe a disponuje kvalitnou sprchovou zástierkou zo skla. Moderná zabudovaná kuchyňa s umývačkou riadu a kvalitnými značkovými spotrebičmi dopĺňa atraktívny koncept bývania.
Obrázky sú čiastočne generované umelou inteligenciou, aby vizualizovali možné zariadenie.
Parametre nehnuteľnosti
| Vek | Nad 50 rokov |
|---|---|
| Stav | Novostavba |
| Poschodie | 2. poschodie |
| PENB | A - Mimoriadne úsporné |
| Cena za jednotku | 15,63 € / m2 |
| Dostupné od | 15. 3. 2026 |
|---|---|
| Dispozícia | 2+1 |
| Číslo inzerátu | 1015343 |
| Úžitková plocha | 64 m² |
Čo táto nehnuteľnosť ponúka?
| Balkón | |
| Parkovanie |
| Pivnica | |
| MHD 4 minúty pešo |
V okolí nehnuteľnosti nájdete
Stále hľadáte to pravé?
Nastavte si strážneho psa. Ponuky vybrané na mieru dostanete súhrnne 1× denne e-mailom. S Premium profilom máte po ruke rovno 5 strážcov a keď sa niečo objaví, informujú vás obratom.















