
Predaj domu 7+1 • 160 m² bez realitky, Hesensko
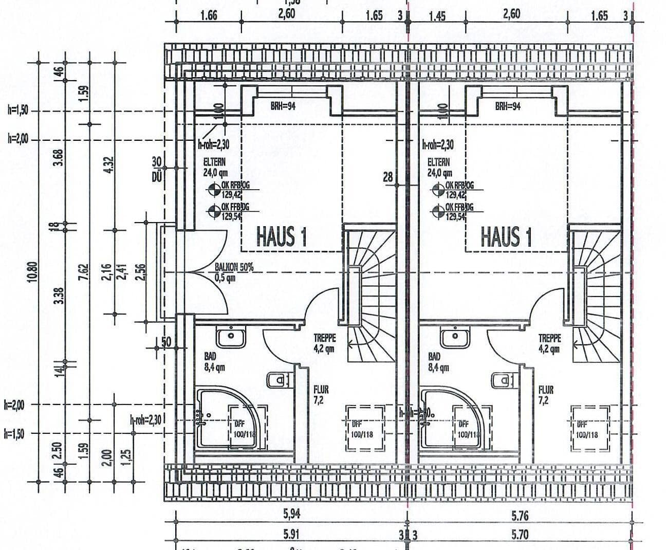
, HesenskoMHD do minúty pešo • ParkovaniePonúka sa radový stredový dom v tejto priestrannej radovej zástavbe s 5 domami, pričom každý dom disponuje 160 m² obytných priestorov a 48 m² užitkových priestorov. V suteréne sa nachádza technická miestnosť a veľká hobby miestnosť. Prízemie sa vyznačuje otvoreným konceptom. Otvorená kuchyňa vedúca do jedálne a veľký obývací priestor vás pozývajú na oddych. Z terasy sa dostanete do vlastnej záhrady. V nadzemnom podlaží sa nachádza kúpeľňa a 2 detské izby, ako aj rodičovská spálňa, pričom veľká terasa dopĺňa celkový obraz tejto úrovne. Podkrovie by mohlo pojať ďalšiu spálňu alebo kanceláriu, a pre kúpeľňu je ešte dosť miesta. V podkroví by však mohli byť umiestnené aj 2 ďalšie detské izby. Rozloženie miestností je možné ešte prispôsobiť vašim potrebám. Vybavenie: Masívna konštrukcia, suterén z železobetónu, trojitostenné okná, elektrické rolety.
Osobitosti nehnuteľnosti: Rozloženie miestností je ešte na výber, existuje aj možnosť zapojiť vlastné práce, atď. Kontaktujte nás, všetko je možné!
Na nádhernom mieste v Gründau Rothenbergen, v peknej obytné oblasti, vznikajú tieto moderné radové domy. Každý dom disponuje 4 priestrannými izbami, kuchyňou, hosťovským WC, kúpeľňou, veľkým štúdiom na podkroví a priestranným tepelnoizolovaným suterénom z železobetónu. Pozemok tvorí stavebná medzera, ktorá sa nachádza v pokojnej obytné oblasti (hrajdovacia ulica), takže tu nie je žiadny letový ani dopravný hluk. Terasa a balkón sú orientované na juh. Gründau ponúka všetko, čo človek potrebuje na život! Obchody sú dostupné pešo za 5 minút. Najbližším väčším mestom je Gelnhausen, kde nájdete školy od základnej školy až po gymnázium. Aj lekárska starostlivosť je zabezpečená – je tu nemocnica a ďalšie ordinácie, atď.
Ostatné: Nehnuteľnosť sa nachádza vo fáze výstavby, hrubá stavba je dokončená. Preto je rozloženie miestností ešte možné podľa želania zákazníka prispôsobiť. Tiež je možné zakúpiť dom ako DOM NA DOPRACOVANIE, stačí nás kontaktovať. Obrázky pochádzajú z nášho posledne dokončeného domu, ktorý je totožný s týmto a je k dispozícii na prehliadku.
Ponúka sa bez vnútorných obkladov a podlahových krytín. Vybavenie je ešte možné zvoliť podľa vlastného vkusu.
Rozloženie miestností je taktiež voľné, postavíme vám osobný dom snov podľa vašich požiadaviek – napríklad pre väčšiu rodinu je bez problémov možné zariadiť 4 detské izby, rodičovskú spálňu a 2 kúpeľne, stačí nás kontaktovať.
Domus Konzepthaus GmbH
Kirchstr.18
63549 Ronneburg
Parametre nehnuteľnosti
| Vek | Nad 50 rokov |
|---|---|
| Dispozícia | 7+1 |
| PENB | A - Mimoriadne úsporné |
| Plocha pozemku | 159 m² |
| Cena za jednotku | 3 437,50 € / m2 |
| Stav | Novostavba |
|---|---|
| Číslo inzerátu | 1015326 |
| Úžitková plocha | 160 m² |
| Celkové poschodia | 4 |
Čo táto nehnuteľnosť ponúka?
| Pivnica | |
| MHD 0 minút pešo |
| Parkovanie | |
| Terasa |
V okolí nehnuteľnosti nájdete
Stále hľadáte to pravé?
Nastavte si strážneho psa. Ponuky vybrané na mieru dostanete súhrnne 1× denne e-mailom. S Premium profilom máte po ruke rovno 5 strážcov a keď sa niečo objaví, informujú vás obratom.














