
Predaj bytu 3+1 • 87 m² bez realitkyWasastraße, , Sasko
Wasastraße, , SaskoMHD do minúty pešo • Parkovanie • GarážDas Mehrfamilienhaus liegt ruhig und idyllisch in einem großen Grundstück mit altem Baumbestand in der Wasastraße 63 in Radebeul.
Viacrodinový dom sa nachádza pokojne a idylicky na veľkom pozemku so starými stromami na ulici Wasastraße 63 v Radebeule.
Die Nachbarbebauung in dieser gehobenen Wohngegend besteht aus stilvollen Villen und aufwändig restaurierten Ein- und Mehrfamilienhäusern mit großzügigen und schön begrünten Gärten.
Susedná výstavba v tejto prestížnej rezidenčnej oblasti pozostáva zo štýlových víl a starostlivo zrekonštruovaných jednorodinných aj viacrodinových domov s priestrannými a nádherne zeleňenými záhradami.
Die 3-Zimmer Wohnung im 3. Stock ist sehr hell und sonnig und besticht durch Ihren gut geschnittenen Grundriss und den vielen großen Fenstern und Türen zur Dachterrasse.
Trojizbový byt v 3. poschodí je mimoriadne svetlý a slnečný a vyniká dobre premyslenou dispozíciou a množstvom veľkých okien a dverí vedúcich na strešnú terasu.
Schon beim Betreten der Wohnung wird man im Flur von dem Tageslicht des Deckenfensters (Oberlicht) angenehm überrascht.
Už pri vstupe do bytu vás v predsieni príjemne prekvapí denný svetelný prúd prenikajúci cez svetlík v strope.
Da die Wohnung nach Osten, Süden und Westen ausgerichtet ist, hat man bei schönem Wetter den ganzen Tag Sonne.
Keďže je byt orientovaný na východ, juh a západ, pri peknom počasí máte počas celého dňa slnko.
Das spart Heizkosten in den kälteren Monaten.
To v chladnejších mesiacoch šetrí náklady na kúrenie.
Von der umlaufenden Dachterrasse genießt man einen traumhaft schönen Ausblick auf Bäume und Gärten und in der Ferne kann man die Elbhänge und die Weinberge sehen.
Zo obklopujúcej strešnej terasy si užijete nádherný výhľad na stromy a záhrady, a v diaľke je možné vidieť brehy Labe a vinice.
Der große gepflegte Garten hinter dem Haus kann von allen Hausbewohnern genutzt werden.
Veľkú upravenú záhradu za domom môžu využívať všetci obyvatelia domu.
Im Haus befinden sich 11 Wohnungen. Die Bewohner sind sehr nett und hilfsbereit. Das Haus wird von einer Hausverwaltung verwaltet und von einem Hausmeister/Reinigungsdienst betreut.
V dome sa nachádza 11 bytov. Obyvatelia sú veľmi milí a ústretoví. Dom spravuje správcovská spoločnosť a o neho sa stará domovník/spoločnosť zaisťujúca upratovanie.
Falls Sie die Wohnung nicht selbst bewohnen, sondern als Kapitalanlage vermieten möchten:
Ak sa v byte nechystáte bývať sami, ale plánujete ho prenajímať ako investíciu:
Bei einer Vermietung wäre eine Grundmiete zwischen 11 und 12 Euro pro qm zzgl. 50 Euro für die PKW-Stellplätze erzielbar.
Pri prenájme by bolo možné dosiahnuť základný nájom vo výške 11 až 12 eur za m², plus 50 eur za parkovacie miesta pre automobily.
Falls Sie noch weitere Fragen haben oder einen Besichtigungstermin ausmachen möchten, können Sie mich per E-Mail erreichen: mail.pittroff(at)gmx.de
Ak máte ďalšie otázky alebo by ste sa chceli dohodnúť na obhliadke, môžete ma kontaktovať prostredníctvom e-mailu: mail.pittroff(at)gmx.de
Die Wasastraße ist eine ruhige, aber trotzdem zentral gelegene Seitenstraße in Oberlößnitz (Radebeul-Ost).
Ulica Wasastraße je pokojným, no zároveň centrálne situovaným vedľajším cestným úsekom v Oberlößnitz (Radebeul-Ost).
Einkaufsmöglichkeiten, sowie Bäckereien, Cafés, Restaurants, Supermärkte und Ärzte sind in unmittelbarer Nähe und gut zu Fuß zu erreichen.
Obchody, pekárne, kaviarne, reštaurácie, supermarkety a lekári sú v bezprostrednej blízkosti a ľahko dostupní pešo.
Außerdem gibt es einige Grün- und Parkanlagen, Bars und Restaurants, Modegeschäfte, Fitnessstudios, zwei Gymnasien, ausreichend Mittel- und Grundschulen, Stadtbibliotheken und Kitas.
Okrem toho tu nájdete niekoľko zelených plôch a parkov, barov a reštaurácií, módne obchody, fitness centrá, dve gymnáziá, dostatočný počet stredných a základných škôl, mestské knižnice a materské školy.
Die Dresdner Innenstadt ist mit der S-Bahn oder der Straßenbahn bequem und schnell zu erreichen.
Drezenské centrum je pohodlne a rýchlo dostupné vlakom S-Bahn alebo električkou.
Als Autofahrer sind Sie in wenigen Minuten an einer der beiden Autobahn-Anschlussstellen "Dresden-Neustadt" oder "Dresden-Wilder Mann".
Ako vodič sa dostanete za pár minút na jeden z dvoch prístupových bodov na diaľnicu – "Dresden-Neustadt" alebo "Dresden-Wilder Mann".
Radebeul zählt zu den begehrtesten Wohnlagen am Dresdner Stadtrand.
Radebeul patrí medzi najžiadanejšie obytné lokality na drezenskom okraji.
Die lebenswerte Villen- und Gartenstadt liegt 2 km nordwestlich von Dresden zwischen der Elbe im Süden und den Weinhängen im Norden.
Mesto plné komfortných vínnych sídel a záhrad leží 2 km severozápadne od Drezna, medzi Labskou riekou na juhu a vinicovými svahmi na severe.
Günstige klimatische Bedingungen erlauben den Weinanbau an den sonnigen Hängen des Elbtals.
Výhodné klimatické podmienky umožňujú pestovanie viniča na slnečných svahoch labskej doliny.
Radebeul wird aufgrund seiner idyllischen Lage an der Lößnitz, seinen schicken Villen, die oftmals Schlössern gleichen und seinen Weinbergen auch gerne "Sächsisches Nizza" genannt.
Radebeul je vďaka svojej idylickej polohe pri Lößnitz, elegantným vilám, ktoré často pripomínajú zámky, a viniciam obľúbený pod prezývkou "Sachsické Nizza".
Beliebt ist Radebeul vor allem wegen seiner phantastischen Lage am Elbhochufer und dem damit verbundenen milden Klima.
Radebeul je obzvlášť obľúbený pre svoju fantastickú polohu na brehu Labe a s tým spojené mierne podnebie.
Erholungs- und Ausflugsmöglichkeiten bieten sich hier ebenso wie Kunst und Kultur.
Ponúka sa tu množstvo možností na oddych, výlety, ale aj umenie a kultúru.
Der Charme der Stadt und die unmittelbare Nähe zu Dresden machen das Wohnen hier so lebenswert.
Pôvab tohto mesta a jeho bezprostredná blízkosť k Dreznu robia bývanie tu mimoriadne príjemným.
Die Wohnung besteht aus dem Wohnzimmer, 2 weiteren Zimmern (Schlaf-, Arbeits- oder Kinderzimmer), der Küche, dem Bad, dem Flur, dem Abstellraum und der großzügigen umlaufenden Dachterrasse (30,2 qm) hauptsächlich zur Süd- und Westseite.
Byt pozostáva z obývacej izby, dvoch ďalších izieb (spálňa, pracovňa alebo detská izba), kuchyne, kúpeľne, predsiene, úložného priestoru a priestrannej obkolesenej strešnej terasy (30,2 m²) prevažne orientovanej na juh a západ.
In allen Zimmern ist hochwertiges Laminat verlegt.
Vo všetkých izbách je položený kvalitný laminátový podlahový kryt.
Küche, Flur und Bad sind mit Fliesen ausgestattet.
Kuchyňa, predsieň a kúpeľňa sú obložené dlažbou.
Die gesamte Wohnung ist mit Rolläden an den Fenstern/Balkontüren ausgestattet.
Celý byt je vybavený žalúziami na oknách a balkónových dverách.
Die Küche ist sehr geräumig, so dass noch ein kleiner Tisch mit 2 Stühlen Platz findet.
Kuchyňa je veľmi priestranná, takže sa do nej zmestí aj malý stôl so 2 stoličkami.
Küche und Wohnzimmer verbindet zusätzlich eine weiße zweiteilige Flügeltüre (links und rechts aufklappbar).
Kuchyňu a obývačku navyše spája biela dvojdverová krídlová dvere (otvárateľné zľava aj sprava).
Die Flügeltüren können geschlossen werden oder auf der Wohnzimmerseite an die Wand geklappt werden, so dass, wenn gewünscht ein direkter freier Durchgang zwischen Wohnzimmer und Küche besteht.
Krídlové dvere sa môžu zatvoriť, alebo dať na stranu obývačky k stene tak, aby vznikol – podľa želania – priamy voľný prechod medzi obývačkou a kuchyňou.
Gleich neben der Küche befindet sich ein praktischer Abstellraum mit zusätzlichem Stauraum.
Hneď vedľa kuchyne sa nachádza praktický úložný priestor s dodatočným úložným objemom.
Das Badezimmer ist mit einer Wanne mit Duschvorrichtung, einem Waschbecken und einem WC ausgestattet und hat ein kleines Fenster Richtung Weinberge.
Kúpeľňa je vybavená vaňou so sprchovým prístrojom, umývadlom a toaletou a má malé okno smerom k viniciam.
Ein Waschmaschinenanschluß ist auch vorhanden.
Je tu aj pripojenie pre práčku.
Die traumhafte Dachterrasse ist von der Küche (Südseite), vom Wohnzimmer (Süd- und Westseite), vom Schlafzimmer (Westseite) und vom Arbeitszimmer (Westseite) aus zugänglich.
Nádherná strešná terasa je prístupná z kuchyne (južná strana), z obývačky (južná a západná strana), zo spálne (západná strana) a z pracovnej izby (západná strana).
Dort oben genießt man einen herrlichen Rundum-Ausblick auf viel Grün, schöne Häuser und Villen mit großzügigen Gärten, die Elbhänge und die Weinberge.
Odtiaľ hore si môžete vychutnať nádherný panoramatický výhľad na množstvo zelene, pekné domy a vily s priestrannými záhradami, na brehy Labe a vinice.
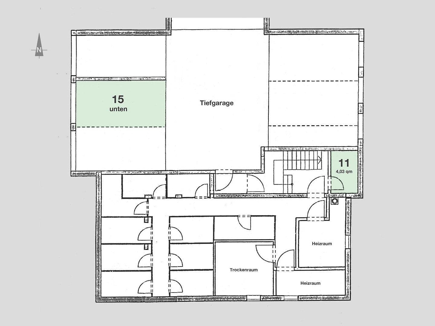
Zur Wohnung gehört ein gemauerter und dadurch uneinsehbarer trockener Kellerraum.
K bytu patrí zdivný a z tohto dôvodu nepriehľadný suchý pivničný priestor.
Für das Trocknen der Wäsche kann man den Trockenraum im Keller benutzen.
Na sušenie prádla je možné využiť sušiareň v pivnici.
Im Haus gibt es keinen Aufzug.
V dome nie je výťah.
Dadurch sparen Sie sich zusätzliche Nebenkosten für den Betrieb und die Wartung des Aufzugs.
Tým si ušetríte dodatočné prevádzkové náklady spojené s chodom a údržbou výťahu.
Ihre Fahrzeuge können Sie auf dem zur Wohnung gehörenden Duplex-Stellplatz in der Tiefgarage und auf dem zur Wohnung gehörenden eigenen Stellplatz auf dem Grundstück vor dem Haus parken.
Svoje vozidlá môžete zaparkovať na dvojúrovňovom parkovacom mieste v podzemnej garáži patriacom bytu a na vlastnom parkovacom mieste na pozemku pred domom, ktorý patrí k bytu.
Kein Problem also, wenn Sie zwei Autos parken möchten.
Takže žiadny problém, ak si chcete zaparkovať dve autá.
Der Duplex-Stellplatz (10.000 Euro) und der Außen-Stellplatz vor dem Haus (5.000 Euro) sind nicht im Kaufpreis enthalten.
Dvojúrovňové parkovacie miesto (10 000 eur) a vonkajšie parkovacie miesto pred domom (5 000 eur) nie sú zahrnuté v kúpnej cene.
Die Grundfläche der Wohnräume beträgt 71,7 qm (siehe auch Grundriss mit qm-Angaben aller Zimmer).
Základná plocha obytných priestorov je 71,7 m² (pozri aj dispozíciu s rozmermi všetkých izieb).
Die Grundfläche des Balkons beträgt 30,2 qm und wurde zur Hälfte (15,1 qm) zur Wohnfläche dazu gerechnet.
Plocha balkónu je 30,2 m², z čoho sa polovica (15,1 m²) započítava do obytných priestorov.
Die Gesamt-Wohnfläche beträgt somit 86,8 qm.
Celková obytná plocha tak je 86,8 m².
Das Hausgeld beträgt monatlich 375 €. Darin enthalten sind 75 € für die Rücklagen.
Mesačné domové poplatky vo výške 375 € zahŕňajú 75 € určených na záložný fond.
Die Wohnung wurde laufend gepflegt und renoviert:
Byt bol priebežne udržiavaný a renovovaný:
- neue Bodenbeläge 2015
nové podlahové krytiny v roku 2015
- teilweise Dämmung der äußeren Außenwand 2016
čiastočná izolácia vonkajšej steny v roku 2016
- Fenster- und Türrahmen renoviert und außen gestrichen 8/2019
okná a rámiky dverí boli zrekonštruované a exteriér prefarbený v auguste 2019
- Oberlicht im Flur neu 2/2020
svetlík v predsieni vymenený v februári 2020
- Wände und Decken gestrichen 11/2025
steny a stropy prefarbené v novembri 2025
- Heizkörper gestrichen 11/2025
kúrenárske telesá prefarbené v novembri 2025
Das Anwesen wurde laufend gepflegt und renoviert:
Komplex bol priebežne udržiavaný a renovovaný:
- neues Garagentor 2011
nové garážové dvere v roku 2011
- Dachsanierung 2014
rekonštrukcia strechy v roku 2014
- Fassadeninstandsetzung 2018
oprava fasády v roku 2018
- Erneuerung der Antriebstechnik des Tiefgaragentors 2020
obnova pohonnej techniky podzemných garážových dverí v roku 2020
- Erneuerung Pflasterung Eingangsbereich 2020
obnova dlažby vo vstupnej oblasti v roku 2020
- Erneuerung des zur Wohnung gehörenden Tiefgaragenplatzes 2024
obnova podzemného parkovacieho miesta patriaceho bytu v roku 2024
Zusammenfassend nochmals alle Highlights:
Zhrnutie všetkých hlavných predností:
- absolut ruhige und grüne Lage
absolútne pokojná a zelená lokalita
- gehobene Wohngegend
prestížna rezidenčná oblasť
- schöner Ausblick im 3. Stock
pekný výhľad v 3. poschodí
- umlaufende Dachterrasse mit 30 qm hauptsächlich zur Süd- und Westseite
obkolesená strešná terasa s rozlohou 30 m² prevažne orientovaná na juh a západ
- viele große Fenster und 4 Balkontüren zur Dachterrasse
množstvo veľkých okien a 4 balkónových dverí vedúcich na strešnú terasu
- Rolläden an allen Fenstern
žalúzie na všetkých oknách
- Oberlichtfenster im Flur
svetlík v predsieni
- Bad mit Fenster
kúpeľňa s oknom
- hochwertiges Laminat in allen Zimmern
kvalitný laminát vo všetkých izbách
- zusätzlicher Abstellraum in der Wohnung
dodatočný úložný priestor v byte
- teilweise wärmegedämmte Außenmauern
čiastočne tepelnoizolované vonkajšie múry
- Kellerraum trocken und uneinsehbar
pivničný priestor je suchý a nepriehľadný
- Tiefgaragenplatz und eigener Stellplatz vor dem Haus
podzemné garážové miesto a vlastné parkovacie miesto pred domom
- großer schöner Garten für alle Hausbewohner
veľká pekná záhrada pre všetkých obyvateľov domu
Das Angebot ist freibleibend und unverbindlich.
Ponuka je nezáväzná a bez povinnosti.
Alle Informationen und Daten wurden nach bestem Wissen gemacht.
Všetky informácie a údaje boli poskytnuté podľa najlepšieho vedomia.
Parametre nehnuteľnosti
| Vek | Nad 50 rokov |
|---|---|
| Stav | Dobrý |
| Poschodie | 3. poschodie z 3 |
| Úžitková plocha | 87 m² |
| Dostupné od | 25. 4. 2026 |
|---|---|
| Dispozícia | 3+1 |
| Číslo inzerátu | 1015188 |
| Cena za jednotku | 3 425,29 € / m2 |
Čo táto nehnuteľnosť ponúka?
| Balkón | |
| Garáž | |
| MHD 0 minút pešo |
| Pivnica | |
| Parkovanie |
V okolí nehnuteľnosti nájdete
Stále hľadáte to pravé?
Nastavte si strážneho psa. Ponuky vybrané na mieru dostanete súhrnne 1× denne e-mailom. S Premium profilom máte po ruke rovno 5 strážcov a keď sa niečo objaví, informujú vás obratom.























